
|
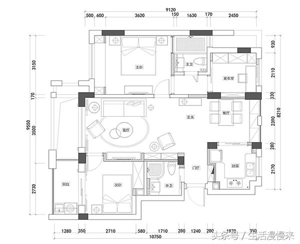
年輕人家裝修,最看中的是什么? 除了氛圍溫馨,細節精致之外,最重要的就是能將原本不理想的布局,在巧妙改造中,換發新的感覺。這套89平簡約風三房,每個房間經過改造后,都很通透敞亮,值得學習。
整個戶型還算方正,功能區大小合適,滿足日常需求。
玄關的位置,用成品的藝術鞋柜,和淘來的個性裝飾畫組成,簡約而不簡單。
簡約風的客廳具有十足的時尚感。電視背景墻以兩面做到頂的衣柜和文化磚組成,好看又實用。黃色的窗簾是點綴整個空間的亮色,也是增強采光的好方法。
灰色沙發,藍色單椅和粉色懶人沙發,讓整個客廳空間顯得既多彩,又不會太雜亂。樹杈燈是近幾年的流行單品,很好看。
餐廳設置在窗邊,保證了采光和通風。實木材質的餐桌椅,經久耐用。搭配鐵藝吊燈,藝術感強。
廚房的空間不大,L型的櫥柜組合,符合日常習慣。
主臥通過軟裝搭配,呈現出不一樣的感覺。灰色的布藝軟包床,綠色的墻面,自然清新,是年輕人喜歡的Style~
書房的裝飾簡單,一物兩用的書桌椅,收納空間充足的柜子,實用性很強。
次臥的風格也獨特些,背景墻選的是一整面的城市風景圖,搭配米白色床和床頭柜,簡單大方。
衛生間的灰黑色調,非常耐臟防滑。原木色的浴室柜,作為跳色也是不錯的。 轉載請注明出自別墅設計網:http://www.bjcyqiyejia.com/ 千套別墅設計帶別墅圖片 |
農村最好看兩層小樓圖及全套CAD施工圖紙,新中式風格,簡潔大氣
占地:150平方米
農村自建三間三層樓房設計圖,帶露臺,經典實用
占地:135平方米
農村二層住宅設計圖,大窗戶客廳,一起享受大面積采光的溫暖
占地:220平方米
帶車庫的一層雙拼別墅設計方案,出入方便保安全,大氣優雅還長
占地:179.7平方米
2024新款三層小別墅設計圖,占地150平米,帶地下室
占地:150平方米
進深14米的二層小別墅設計圖,農村自建房好方案
占地:144平方米左右
占地130平三層現代別墅設計圖方案,帶電梯和地下室設計
占地:134.75平方米
10套農村經典二層樓房設計圖紙,多戶型,多尺寸,總有一款適合
占地:多種
造價15萬經濟美觀一層農村別墅設計圖,占地150平米
占地:多戶型可選
獨棟經濟型二層小別墅房屋設計圖,含全套施工圖效果圖
占地:多種戶型
3款挑空客廳的二層小樓房設計圖,款款漂亮
閱讀次數:48516次
立邦油漆哪個系列好?小編一一對比分析
閱讀次數:31501次
2024十大環保油漆,中國十大環保油漆排名榜
閱讀次數:11505次
手上的油漆怎么洗-快速洗掉油漆小竅門
閱讀次數:7981次
無味油漆到底對人有沒有害?真實曝光
閱讀次數:7922次
8款不同風格樓梯設計效果圖,我最喜歡第8款
閱讀次數:7024次
立邦油漆價格表,立邦油漆一般多少錢一桶?
閱讀次數:6809次
為大家分享一套兩層農村自建房裝修案例,15萬搞定裝修
閱讀次數:6111次
2024年紫荊花油漆價格一般是多少錢一桶?品牌怎么樣
閱讀次數:6012次
嘉寶莉油漆價格一般是多少錢一桶?
閱讀次數:5765次
