
|
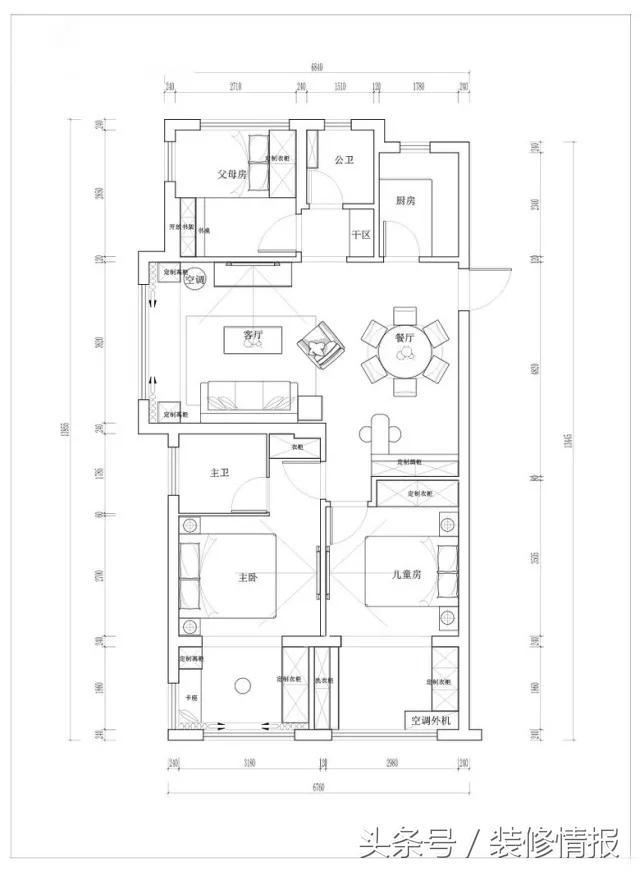
業主爸媽很久以前購買的精裝房,隨著時間的流逝,房子的裝修風格也已經不符合現在的審美。除了天花和地板保留,其他部分都基本打掉了,重新裝修成了現在的樣子。
業主在裝修前看了不少裝修帖子,總結出了自己的裝修方法——設計前不前衛、潮不潮流不重要,最重要的是要實在,適合過日子;設計師必須負責任。精裝房,也要認真對待。
簡約質感的客廳,環保的竹質線條和精致的背景墻布,木紋質感強烈的實木電視柜和茶幾,簡單的吊頂。有些房子的橫梁、管道,裸露在外面很不美觀,可以通過吊頂來掩蓋起來,使天花板看起來不再雜亂。吊頂也可以增強室內的裝飾效果,通過吊頂設計輔以燈光的作用,立體化的體現房子的裝修風格。
地小東西多原本就讓人頭疼,所以設計師在客廳創造了很多收納空間,除卻茶幾、電視柜之外,還設計了飄窗柜和邊柜。這樣的空間設計也讓這成為業主比較喜歡的地方,完美的超出了她的預算,雖然超出預算但是也在能接受的范圍內。
飄窗柜可以說在改動基礎結構最小的情況下,空間利用最大化的一個設計,關鍵是完全沒有遮擋光源,家里的柜子都看環保性。 提醒:環保主要由板材決定,板材一般都是板材廠家生產,而整體定制衣柜商家只是一個加工的角色。板材的環保性一般要至少達到E1級,好的是E0級(不過感覺市面上是個牌子都自稱E0級)。這個板材的環保級別都是要看國家權威檢測部門的相關證書的,口頭說是沒用的。如果商家宣傳自己的板材是進口的一定要看海關進口憑證、授權中國銷售代理書等。不過真正進口的板材鳳毛麟角,價格高昂。
客廳最滿意的還有色彩搭配,沙發跟電視柜、茶幾的顏色和材質真是配的一臉,出來的效果很棒。電視柜有種老家具的味道,喜歡老家具的讀者們,私信編輯拉你進老家具交流社群。
逼仄狹小的一些小戶型,總讓人覺得不夠釋放自我。既然暫時沒法改變房子的大小,只能從家具下手。圓形的桌臺完全滿足一家人的日常需求,畢竟小空間,所有家具夠用就好,何必過度追求高大上。而且別看圓桌現在是四人座,來客時還能分分鐘變成六人座。
吧臺算是裝修中最大的計劃之外。業主看了不少案例美式風總是少不了吧臺,所以就在餐廳任性的擠一擠,設計師還另送了個酒柜,真是把業主沒考慮到的情調都考慮周全了。
原本的構造主臥里面放個1.8米的床,兩邊再加個柜子基本就沒有其他空間了,所以將陽臺與臥室打通最是明智不過,陽臺部分現在成為了主臥的功能擔當。
主臥是落地窗配置,陽臺的左側與兒童房緊緊相連,所以在主臥和兒童房連著的那一面定做了個衣柜,家人的衣物就不愁無處可去了。另外面沿著窗戶的形狀做了個類似飄窗的柜子,這樣既沒有擋住外面的光,又解決了基本的收納問題。
雖然業主還沒有寶寶,但是兒童房還是需要提前準備的。兒童房有外陽臺,所以內部采光不是很好,設計師給挑了淺色作為主色,家具也是象牙白的,搭著看有種感覺空間還是很大的錯覺感。
除去客餐廳、陽臺的面積,留給臥室的空間并不多,最小的就屬這書房了,考慮父母偶爾會來住又不喜歡睡軟床,索性給他們布置了個榻榻米房。冬天的棉被還能放在床尾的柜子里,收納和睡覺一舉兩得。
衛生間基本沒有做大的改動,算不得出眾。只是在買浴室柜的時候同樣考慮到了收納問題,所以買了有儲物功能的鏡柜。 衛生間淋浴房玻璃隔斷相對比較美觀上檔次;保溫效果更好,冬天洗澡更暖和一些,適合面積比較大的衛生間。價格要比浴簾貴的多,而且太便宜的可能會有安全問題,玻璃隔斷一定要買3C認證的鋼化玻璃,好的鋼化玻璃也有千分之三的自爆率。 如果用浴簾看上去比較廉價;如果空間小,洗澡的時候有時候不小心還會粘到身上來。清洗起來很方便,水一沖就行,價格才幾十元,比起幾千元的玻璃隔斷來說每年換一個都不是問題。衛浴空間小的話,浴簾不占空間。
外面的陽臺暫時作為一個生活陽臺來用,兩邊都做了柜子,一邊放了洗衣機,另外一邊的柜子可以做儲存柜,旁邊放了個空調外機,這個陽臺的功能性很強,平時洗洗刷刷就挺方便的。編輯最近得知,倍科的家電有內賣活動哦,需要的讀者們私信編輯進群。 轉載請注明出自別墅設計網:http://www.bjcyqiyejia.com/ 千套別墅設計帶別墅圖片 |
背面不開窗二層別墅設計圖,對稱設計簡單好看,眾多建房者的選
占地:183.79平方米
2024新款三層小別墅設計圖,占地150平米,帶地下室
占地:150平方米
農村三層別墅設計圖紙,造價50萬左右,中式風格,沉穩內斂
占地:160平方米
適合農村自建四合院圖片,中式二層四合院別墅設計施工圖紙
占地:232平方米
農村自建三層別墅設計圖,開間17米進深13米,外觀對稱設計
占地:187.6平方米
左右對稱的歐式高端三層別墅設計圖,外觀氣派、豪華
占地:200平方米
農村三間三層半別墅設計圖,舒適寬敞時尚經濟,居住生活方便舒
占地:168.29平方米
農村一層平房別墅設計圖紙,130平米左右,主體十幾萬
占地:130平方米左右
120平方米帶地下室三層復式別墅戶型圖,現代風格
占地:120.78平方米左
110平左右二層小洋樓設計圖,含效果圖片
占地:108平方米
3款挑空客廳的二層小樓房設計圖,款款漂亮
閱讀次數:48516次
立邦油漆哪個系列好?小編一一對比分析
閱讀次數:31501次
2024十大環保油漆,中國十大環保油漆排名榜
閱讀次數:11505次
手上的油漆怎么洗-快速洗掉油漆小竅門
閱讀次數:7981次
無味油漆到底對人有沒有害?真實曝光
閱讀次數:7922次
8款不同風格樓梯設計效果圖,我最喜歡第8款
閱讀次數:7024次
立邦油漆價格表,立邦油漆一般多少錢一桶?
閱讀次數:6809次
為大家分享一套兩層農村自建房裝修案例,15萬搞定裝修
閱讀次數:6111次
2024年紫荊花油漆價格一般是多少錢一桶?品牌怎么樣
閱讀次數:6012次
嘉寶莉油漆價格一般是多少錢一桶?
閱讀次數:5765次
