
|
今天繼續為大家推薦兩款一層別墅的設計,希望大家喜歡!
現在農民生活品質不斷提高,農村別墅設計水平也日趨時尚,今天這款方案外立面簡單大氣,采用對稱造型、坡屋頂,形成端莊大氣的外觀,主入口突出的外廊,打造室內外過渡空間,豐富建筑造型。大家也可以根據自己的需要,調整外立面材質(可用淺黃色真石漆、涂料或者石材),屋頂形式檐口層次也可根據需要變化!
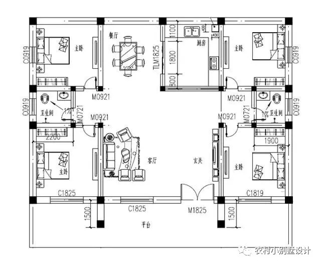
平面設計考慮到村鎮居民兩代人一起居住的習慣比較普遍,客廳空間加大,位于建筑中間,兩側各設兩間房,可為兩代人分別提供相對私密的居住空間,打造更為舒適的生活空間。
下面還有另一個方案推薦,略有差別
從立面材質、屋頂造型可以看出,只是形式、材質的改變,建筑造型就發生很大的變化,各位業主可以根據自己的喜好,自己搭配!
這個設計與上一個相比面寬略大,16.00m*12.00m,190平方米左右。好處是入戶空間更為舒適,與客廳分隔開來,使客廳更為完整。同時廚房和餐廳空間變大,更為舒適。 圖紙之家-專注農村別墅/自建房設計18年,集合國內200余位經驗豐富的設計師,被評為口碑最好的農村建筑設計公司! |

鄉村兄弟二層小戶型雙拼房屋別墅設計圖,造價低,面積小
占地:多種戶型
小平米四層自建房屋設計圖紙,戶型簡單實用,占地80平方米
占地:80平方米
帶庭院中式二層四合院別墅設計效果圖片,方方正正
占地:404平方米
90平-100平小戶型一層三間平房農村別墅設計圖方案戶型
占地:多戶型可選
四開間2層別墅設計圖,外觀圖配色清新淡雅,占地200平米
占地:200平方米
150平農村二層復式別墅房屋設計方案圖,帶外觀效果圖片
占地:150平方米
2026年新款二層半農村自建小別墅設計圖紙,占地150平方米
占地:150平方米
農村三層半別墅設計圖及外觀效果圖,三層半樓房設計方案推薦
占地:100平方米
樓中樓客廳挑高二層別墅設計圖,復式別墅方案推薦
占地:122平方米
歐式風格高檔三層別墅設計圖紙,帶高清外觀效果圖
占地:105平方米
地中海風格二層別墅設計圖及效果圖,外觀有格調
占地:125平方米
新中式二層別墅設計圖,農村最適合建的兩層小樓,13×12米
占地:143平方米
二層現代風格雙拼別墅設計圖,平屋頂,帶地下室設計
占地:192.47平方米
最漂亮的一層平房圖片,全套設計圖+高清效果圖
占地:145平方米
三層新農村140平方米房屋設計圖紙,全套施工圖及效果圖
占地:140平方米
120平方米帶地下室三層復式別墅戶型圖,現代風格
占地:120.78平方米左
四開間一層自建房設計圖,四臥二廳+棋牌室+書房
占地:181.29平方米
簡約精致的二層房子設計圖,農村自建經濟實用
占地:89.76平方米
70平農村小戶型二層別墅設計圖,小宅基地的福音
占地:70平方米
16x14米三層雙拼別墅設計圖,外觀精致大氣內里實用,兄弟建房上
占地:217.28平方米
推薦:10套新農村自建房設計圖,2026年最新設計
閱讀次數:4825737次
100套鄉村別墅圖片大全,2026年最新設計
閱讀次數:2492203次
6款農村蓋一層平房的設計圖,10萬元就能建起來
閱讀次數:1852637次
這11個一層農村自建房別墅火爆了朋友圈!我最喜歡戶型十!你呢
閱讀次數:750268次
農村6萬元建一層小別墅圖,你敢相信嗎
閱讀次數:567686次
農村5萬塊就能自建房,6套普通房子設計圖分享,你沒看錯!
閱讀次數:419410次
8套農村漂亮三間平房圖片,非常適合在農村修建!
閱讀次數:411197次
農村自建房化糞池怎么做?附方案及施工過程
閱讀次數:391783次
農村一層三間平房設計圖,告別土氣養老房,讓人忍不住點贊
閱讀次數:350581次
新農村二層樓房圖片造價12萬,挑一套回家建房吧!
閱讀次數:349126次
