
|
浙江臺州歐式三層農村別墅,帶有空中花園,會生活
項目名稱:浙江臺州三層歐式別墅 項目地點:浙江臺州 項目建筑面積:330m² 建筑尺寸:10X11m 項目造價:49.5W 建筑結構:框架 圖紙中心 該建筑共有兩層,整個基地較為方正,南北10米,東西11米,整體風格為歐式風格,屋頂采用紅褐色,外立面采用墻磚和文化石做涂裝,一層入口雨棚也是二層的陽臺,合適使用布局,別墅一側用大落地窗做裝飾,讓室內的光線更加充足;
△效果圖
△效果圖
△效果圖 一層入門便是寬敞的客廳,封閉式廚房緊挨開敞的餐廳,設有兩處臥室,一處套房可做老人臥使用,一處可做客房,使用客衛,布局簡單實用,空間使用沒有一絲的浪費;
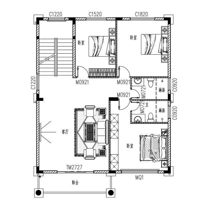
△一層平面圖 二層設有三處臥室,一處主臥帶有主衛,兩處臥室共用一處客衛;寬敞的客廳帶有一處小陽臺,使得室內采光更好;
△二層平面圖 三層設有兩處臥室,共用一處客衛,設有一處休閑娛樂室,剩下的空間作為空中花園和小涼臺使用,在上面種點花花草草,陶冶情操;
△三層平面圖 圖紙之家-專注農村別墅/自建房設計18年,集合國內200余位經驗豐富的設計師,被評為口碑最好的農村建筑設計公司! |

簡單時尚二層住宅設計圖紙,簡單的設計,不平凡的視覺感受
占地:110平方米
適合小面寬宅基地的兩開間別墅設計圖,8.5米乘13.5米
占地:107.66平方米
鄉村三層別墅CAD建筑設計圖,110平方米戶型,帶效果圖和全套施工
占地:110平方米
面寬8米多的三層農村別墅設計圖,小開間宅基地推薦
占地:112.82平方米
80平方米二層房屋設計圖,造價10萬左右
占地:80平方米
110平米一層小別墅設計方案,布局四室兩廳一廚兩衛
占地:110.5平方米
農村三間兩層樓房設計圖,背面不開窗,氣勢上就勝人一籌
占地:153.7平方米
四層別墅豪宅外觀效果圖及全套施工圖,高端歐式風格
占地:176.97平方米
高端三層別墅設計圖紙,客廳中空,帶地下室,設置多個套間
占地:220平方米
110平方米新農村二層別墅設計圖及效果圖,12.36x9.36米
占地:115平方米
三層平頂現代風格,農村自建房設計圖,可帶電梯,百看不厭
占地:259.55平方米
140平三層自建房別墅設計圖,外觀圖大氣、美觀
占地:140平方米
農村30萬別墅款式三層設計圖紙,帶地下儲藏室,挑空客廳
占地:110平方米
帶車庫農村二層雙拼別墅設計圖,外觀現代
占地:235平方米
歐式大氣三層小別墅設計圖紙,外觀、造型大方,色彩明快
占地:140平方米
五開間農村豪華三層別墅設計圖,大格局大氣派,大家庭建房首選
占地:227.04平方米
130平方米農村兩層別墅圖紙及效果圖12X11米
占地:133平方米
大氣、簡約三層雙拼別墅設計圖,適合和父母同住,既相互關照又
占地:260平方米
兄弟雙拼別墅設計戶型圖及設計方案圖,帶外觀效果圖,外觀好看
占地:185平方米(單棟)
230平方農村雙拼別墅設計圖,26x11米自建房屋戶型
占地:230平方米
推薦:10套新農村自建房設計圖,2026年最新設計
閱讀次數:4825737次
100套鄉村別墅圖片大全,2026年最新設計
閱讀次數:2492203次
6款農村蓋一層平房的設計圖,10萬元就能建起來
閱讀次數:1852637次
這11個一層農村自建房別墅火爆了朋友圈!我最喜歡戶型十!你呢
閱讀次數:750268次
農村6萬元建一層小別墅圖,你敢相信嗎
閱讀次數:567686次
農村5萬塊就能自建房,6套普通房子設計圖分享,你沒看錯!
閱讀次數:419410次
8套農村漂亮三間平房圖片,非常適合在農村修建!
閱讀次數:411197次
農村自建房化糞池怎么做?附方案及施工過程
閱讀次數:391783次
農村一層三間平房設計圖,告別土氣養老房,讓人忍不住點贊
閱讀次數:350581次
新農村二層樓房圖片造價12萬,挑一套回家建房吧!
閱讀次數:349126次
