
|
出生在農村的孩子,年輕氣盛的時候心懷夢想,只想揚眉吐氣,一頭扎進城市的里。每天起早貪黑,在燈紅酒綠里打滾,紙醉金迷即使拖著疲憊不堪的身體,也一如既往勇往直前。但是當自己到了一定的年紀,就會向往鄉村生活的恬靜舒適。 現在農村的經濟條件越來越好了,空氣清新,景色迷人,越來越多的人選擇回農村建房。下面小編給大家分享5款10約受歡迎三層占地面積約130㎡農村自建房(全套)施工效果圖,來看看有沒有適合您的建房標準! 【戶型1】 開間進深:13m×10.2m 占地面積:134.41㎡ 建筑面積:321.97㎡ 結構形式:框架結構 參考造價:27萬元
戶型點評 外立面采用經典的紅色為主調,搭配純白的護欄、窗套、門廊、線腳,可能很多人會覺得這種顏色太張揚太騷氣,其實再多看幾眼,你會覺得這款別墅十分耐看,越看越好看,采用的色彩炙熱濃烈,呈現出對生活的熱情和積極向上的態度。 平面圖展示
一層平面圖 一層:挑空客廳、臥室、餐廳(廚房操作臺)、洗衣間、衛生間
二層平面圖 二層:主臥(帶衛生間)、次臥、書房+儲藏室)、衛生間、陽臺 三層:臥室、書房、儲藏室、衛生間、露臺 【戶型2】 開間進深:10.6m×11.86m 占地面積:125㎡ 建筑面積:340.76㎡ 結構形式:框架結構 參考造價:35萬元
戶型2 戶型點評 本設計屬于豪華型獨棟別墅,外觀十分奢華大氣,四面窗戶非常多,增大室內的采光。正立面左側設計為弧形,減弱了線條的硬實感,使得整棟房子更柔美。
戶型2背面效果圖 平面圖展示
一層平面圖 一層:入室玄關、客廳、廚房、餐廳、公用衛生間、棋牌室、主臥帶內衛
二層平面圖 二層:主人房(附衣帽間,衛生間)、前面大臥室、公用衛生間、后小臥室、起居室、書房
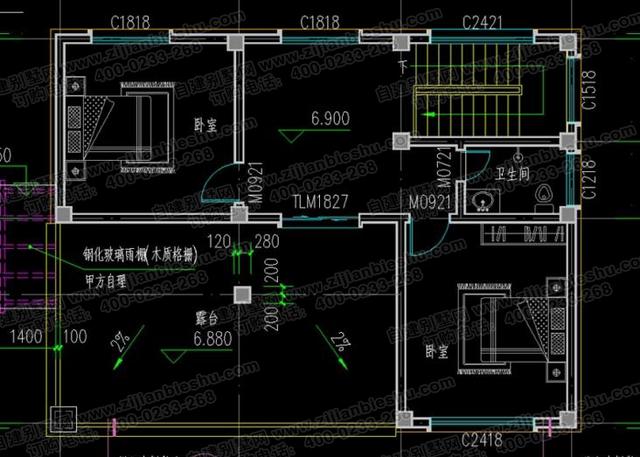
三層平面圖 三層:主臥室(附衛生間,露臺、陽臺)、次臥室、起居室、書房、大露臺 【戶型3】 開間進深:15m×10m 占地面積:132.36㎡ 建筑面積:316.95㎡ 結構形式:框架結構 參考造價:30萬元
戶型3 戶型點評 本戶型最大的特點是三層樓房均設有向外擴展的大露臺,延伸了空間,一層有架空車庫,也可作為儲物使用,功能多樣化。 平面圖展示
一層平面圖 一層:玄關、客廳、餐廳、廚房、臥室、衛生間、車庫
二層平面圖 二層:客廳(帶露臺)、臥室(帶露臺)、臥室×2、衛生間
三層平面圖 三層:臥室×2、衛生間、露臺 【戶型4】 開間進深:12m×11.8m 占地面積:132.24㎡ 建筑面積:319.23㎡ 結構形式:框架結構 參考造價:32萬
戶型4
戶型4俯視圖 功能設計: 一層:玄關、客廳、餐廳、廚房、臥室(帶衛生間)、臥室、衛生間、花池 二層:臥室(帶衛生間)、臥室(帶書房)、臥室、客廳、衛生間、露臺 三層:臥室(帶書房)、臥室、衛生間、休閑區、露臺 【戶型5】 開間進深:10.7m×11.7m 占地面積:130㎡ 建筑面積:349㎡ 結構形式:磚混結構 參考造價:32萬元
戶型5
戶性5背面效果圖 一層:堂屋、客廳、臥室廚房、餐廳、儲藏室、公共衛生間、樓梯 二層:主臥(附衛生間)、2個次臥室、客廳帶陽臺、公共衛生間、書房。 三層:主臥(附衛生間)、2次臥室、書房、公共衛生間、露臺。 圖紙之家-專注農村別墅/自建房設計18年,集合國內200余位經驗豐富的設計師,被評為口碑最好的農村建筑設計公司! |

帶車庫現代三層房屋別墅設計圖,占地110平米左右,功能齊全
占地:110平米
三層獨棟帶露臺房屋設計圖,含外觀圖片大全
占地:110平方米
農村二層住宅設計圖,大窗戶客廳,一起享受大面積采光的溫暖
占地:220平方米
140平二層帶閣樓別墅設計方案圖,外觀圖片色彩明快
占地:140平方米
農村10萬元一層小別墅設計圖,農村一層自建房屋設計圖
占地:多種戶型
10X13米新款歐式三層別墅樓房設計圖,外觀清新明亮
占地:140平方米
農村建房的“面子天花板”!新中式簡歐結合三層別墅,進門就被
占地:225.98平方米
最漂亮的農村二層小樓房自建別墅設計圖紙及效果圖
占地:168平方米
農村15萬元二層小樓設計圖,造價低,簡潔、好看
占地:90平方米
帶陽光房的二層簡歐別墅圖紙,戶型經典實用
占地:147.2平方米
被包工頭夸爆的二層別墅戶型!建好未來幾年必火
占地:189.98平方米
農村三層雙拼別墅戶型圖設計圖,整體外觀氣派
占地:220平方米
2026二層農村新款別墅新式二層樓房設計圖,非常時尚
占地:多種戶型
四層巴洛克別墅設計圖,旋轉樓梯搭配超大挑空客廳,很有氣勢
占地:146平方米
農村一層中式別墅設計圖,經典大氣,布局舒適,面寬20米
占地:192.92平方米
進深9米的農村自建一層養老房戶型方案,三室二廳兩衛
占地:133.2平方米
簡約現代的二層別墅自建房設計圖,13米乘9米
占地:124平方米
二層小型簡單四合院設計圖,戶型方正,左右對稱,傳統文化的傳
占地:470平方米
90平方米新農村住宅設計二層小別墅設計圖紙11x9米
占地:90平方米
二層中式四合院別墅設計圖,經典、漂亮(全套施工圖)
占地:350平方米
推薦:10套新農村自建房設計圖,2026年最新設計
閱讀次數:4825737次
100套鄉村別墅圖片大全,2026年最新設計
閱讀次數:2492203次
6款農村蓋一層平房的設計圖,10萬元就能建起來
閱讀次數:1852637次
這11個一層農村自建房別墅火爆了朋友圈!我最喜歡戶型十!你呢
閱讀次數:750268次
農村6萬元建一層小別墅圖,你敢相信嗎
閱讀次數:567686次
農村5萬塊就能自建房,6套普通房子設計圖分享,你沒看錯!
閱讀次數:419410次
8套農村漂亮三間平房圖片,非常適合在農村修建!
閱讀次數:411197次
農村自建房化糞池怎么做?附方案及施工過程
閱讀次數:391783次
農村一層三間平房設計圖,告別土氣養老房,讓人忍不住點贊
閱讀次數:350581次
新農村二層樓房圖片造價12萬,挑一套回家建房吧!
閱讀次數:349126次
