
|
現在的自建房設計方案都是別墅的形式,所以設計方案中都是建筑本身,而農村有一個實際情況,那就是要有一個小院的空間,本期,我們推薦一款二層半結構的農村小別墅設計方案,預留農家小院非常大方。 外觀效果圖:
一款層次分明的二層半小別墅,外觀經典大方,屬于現代中式風格,戶型帶小庭院和堂屋,逐層設計露臺,屋頂還預留了用于放置水箱和太陽能的小平臺,二層設封閉式陽臺,整個造型別致;建筑外墻裝飾也按照層次要求,分層裝飾,采用不同樣色的外墻裝,并用深紅墻磚做分層處理,和深紅色的屋頂搭配得當。 立面示意圖:
建筑設計尺寸:開間9米,進深15米,大開間小進深的地基設計成錯層的結構非常合適,不會影響室內的采光,還能保證建筑的整體造型;建筑占地面積115平米,小院面積20平米,建筑檐口高度8.5米,總高度11米。
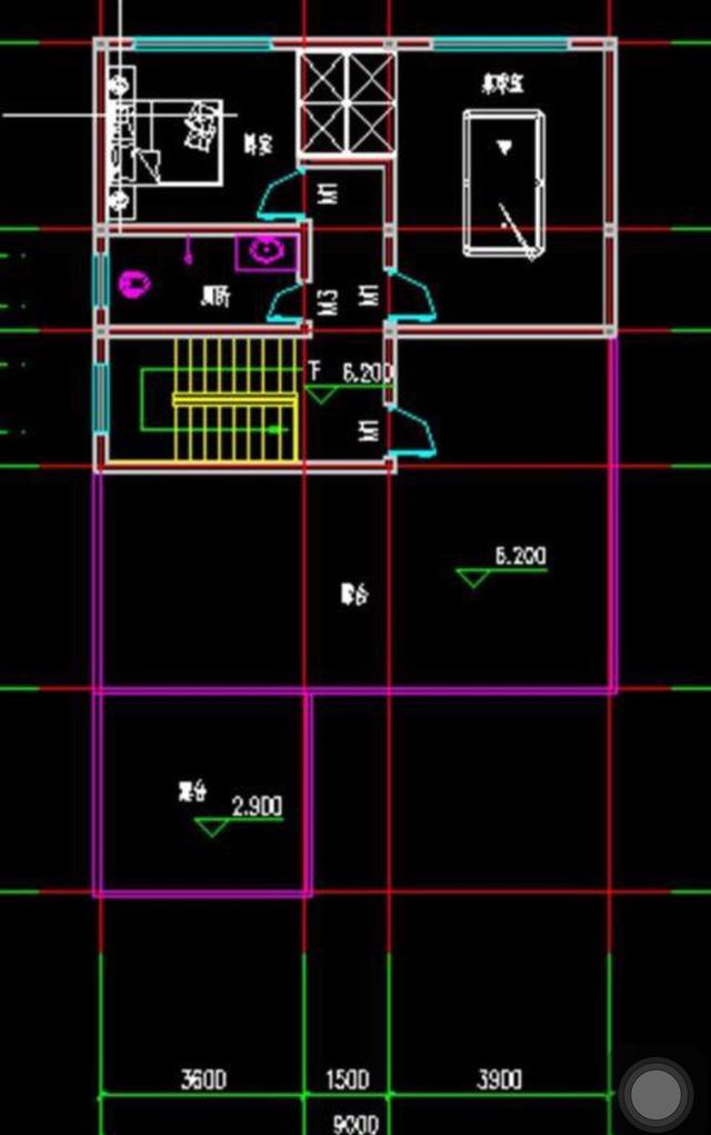
建筑占地、高度、樣式都符合現階段政策規定,外觀也非常符合農村的審美要求,如果小院不能滿足室外活動需求,還有露臺做補充,二層露臺更是休閑娛樂、待客聚餐的絕佳地點。 平面布局圖:
建筑主體入戶設實用的堂屋,預留待客廳,廚房和餐廳共處一室,設計車庫和衛生間,在主體建筑外設棋牌室,也可做儲藏室使用;二層設獨立的五間臥室和衛生間,室外有露臺,三層設一間臥室、一個娛樂室,室外有超大面積的露臺。 該方案不管是臥室數量,還是其他功能設計,完全符合農村實際生活需求,屬于非常實用級的設計方案,戶型占地小,功能全,堪稱完美。 圖紙之家-專注農村別墅/自建房設計18年,集合國內200余位經驗豐富的設計師,被評為口碑最好的農村建筑設計公司! |

農村新戶型房子設計圖二層,占地120平米,布局實用
占地:120.29平方米
中式四合院風格別墅設計圖,平屋頂,書房、茶室、健身房一應俱
占地:370平方米
簡單實用農村自建四層小別墅設計圖(三層半),95平米
占地:95平方米
帶小院新農村房屋設計圖紙,三層別墅推薦
占地:115平方米
140平方米三層半新農村房屋別墅設計圖,帶車庫
占地:140平方米
大戶型三層別墅設計圖,高貴大氣,占地面積將近300平
占地:273.33平方米
2026年簡單實用二層農村別墅,經典大氣真的香
占地:165.98平方米
方方正正的二層農村別墅設計圖,普通農村人都能建
占地:201.05平方米
180平方農村二層別墅施工設計圖紙,15.8x11.7米
占地:180平方米
新農村復試兩層半樓房設計圖,帶大露臺,簡單經濟實用大氣
占地:190平方米
三層兩開間小面寬別墅設計圖紙帶外觀效果圖,95平方米
占地:94.61平方米
農村三層帶地下室小樓房設計圖,客廳中空,帶書房,旋轉樓梯
占地:130平方米
大氣農村一層自建別墅方案,絕對讓人羨慕的“平房”
占地:158.39平方米
復式客廳挑空三層別墅設計圖,帶外觀效果圖片,推薦
占地:150平方米
農村三間三層半別墅設計圖,舒適寬敞時尚經濟,居住生活方便舒
占地:168.29平方米
全新農村簡歐風格三層房屋別墅效果圖,110和210兩個戶型,帶電梯
占地:多種戶型
小型四合院二層別墅設計圖方案,對稱設計,頂層大露臺
占地:114平方米
二層復式農村別墅設計圖,進深12米,戶型堪稱完美
占地:193.2平方米
新農村二層半房屋設計圖紙及效果圖,別墅設計圖精選
占地:113平方米
80平方米農村四層房屋設計圖紙及效果圖
占地:80平方米
推薦:10套新農村自建房設計圖,2026年最新設計
閱讀次數:4825737次
100套鄉村別墅圖片大全,2026年最新設計
閱讀次數:2492203次
6款農村蓋一層平房的設計圖,10萬元就能建起來
閱讀次數:1852637次
這11個一層農村自建房別墅火爆了朋友圈!我最喜歡戶型十!你呢
閱讀次數:750268次
農村6萬元建一層小別墅圖,你敢相信嗎
閱讀次數:567686次
農村5萬塊就能自建房,6套普通房子設計圖分享,你沒看錯!
閱讀次數:419410次
8套農村漂亮三間平房圖片,非常適合在農村修建!
閱讀次數:411197次
農村自建房化糞池怎么做?附方案及施工過程
閱讀次數:391783次
農村一層三間平房設計圖,告別土氣養老房,讓人忍不住點贊
閱讀次數:350581次
新農村二層樓房圖片造價12萬,挑一套回家建房吧!
閱讀次數:349126次
