
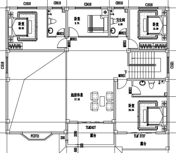
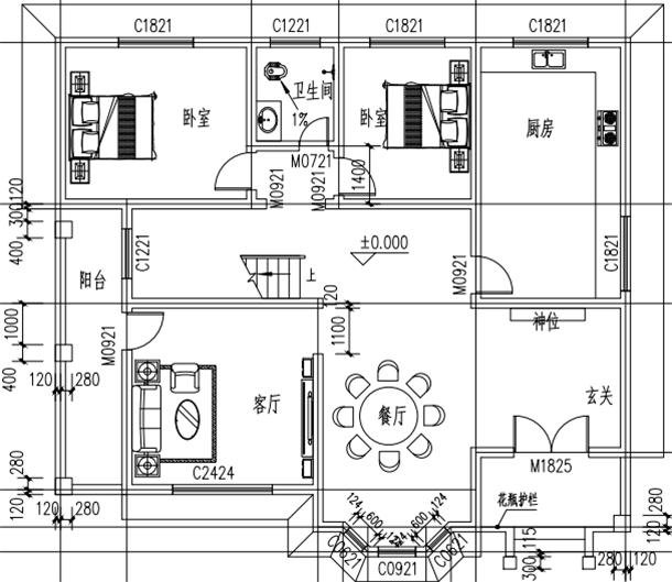
圖紙設計圖一:120平米房子設計圖及外觀圖片圖紙介紹:本戶型為占地120平方米的二層鄉村樓房設計圖,帶屋頂花園,內部設計考慮風水布局,絕對風水好,戶型是經典戶型,設計師主推。 ![]() 占地面積:12m*10m,120平方米左右; 建筑層高:二層; 建筑高度:8.60米(含屋頂); 設計功能: 一層戶型設計:客廳(堂房)、臥室、廚房、餐廳、衛生間、雜物房 二層戶型設計:客廳、娛樂室、臥室x3、露臺; ![]() ![]() 圖紙設計圖二:多臥室復式二層別墅房屋設計圖圖紙介紹:本方案為多臥室復式二層別墅房屋設計圖,含外觀效果圖,臥室比較多,功能齊全,戶型布局合理,外觀精致。新穎,最新設計。 ![]() 占地面積:15.10m*11.70m,175平方米左右; 建筑層高:二層; 建筑高度:9.90米(含屋頂); 設計功能: 一層設計:門廳、客廳、餐廳、廚房、衛生間、臥室x3(2個臥室帶衛生間,衛生間建造時可以根據需求調整); 二層設計:客廳上空、休息區、臥室x3(其中2個臥室帶衛生間,衛生間建造時可以根據需求調整)、衛生間、露臺x2; ![]() ![]() 圖紙設計圖三:二層農村小別墅設計圖圖紙介紹:二層農村小別墅設計圖,所用的占地面積都不 ![]() 占地面積:13.6m*12.3m,140平方米左右; 建筑層高:二層; 建筑高度:9.9米(含屋頂); 設計功能: 一層戶型:玄關、客廳、餐廳、廚房、衛生間、臥室x2、衛生間,戶外平臺; 二層戶型:客廳、臥室x4、露臺、衛生間; ![]() ![]() 以上就是農村二層自建房圖紙,喜歡的朋友歡迎下方討論。
圖紙之家-專注農村別墅/自建房設計18年,集合國內200余位經驗豐富的設計師,被評為口碑最好的農村建筑設計公司! |

鄉村高檔四層別墅樓設計圖,二三層復式挑空客廳
占地:148.992平方米
140平方米新農村復式自建房子,三層別墅建筑圖紙及效果圖
占地:138平方米
新農村住宅設計圖紙含效果圖,方方正正的別墅方案
占地:134平方米左右
兄弟倆二層雙拼別墅設計圖紙,一層共用,設計新穎
占地:180平方米
豪華高端三層帶地下室別墅設計圖,可帶電梯
占地:210平方米
一層農家雙拼自建房設計圖,左右對稱四平八穩
占地:219.05平方米
35萬內三層自建別墅設計圖,外觀美觀,戶型舒適
占地:135平方米
帶中式小院的二層仿古別墅設計圖,小戶型自建房設計,外觀美極
占地:82.94
二層復式雙拼別墅設計圖(客廳中空),含外觀效果圖
占地:195平方米
簡歐風格別墅設計圖帶外觀效果圖,三層140平米戶型方案
占地:140平方米
一層帶閣樓農村別墅設計圖,多得一層可變空間,太值了!
占地:165.89平方米
農村二層別墅設計圖,帶外觀效果圖,兄弟自建推薦
占地:多種戶型
豪華新中式兩層半農村別墅設計圖,繁華之外,心之所向
占地:290.4平方米
三層新中式別墅建筑設計圖紙及圖片,11.66m*9.76m,典雅耐看
占地:114平方米
三層帶挑空客廳旋轉樓梯,農村這樣建別墅高檔大氣
占地:130.51平方米
二層農村兄弟雙拼別墅設計圖,一墻之隔互不干擾,鄰居看了都喜
占地:164.24平方米
100平客廳挑高三層樓房設計圖,復式結構
占地:100平方米
建一棟就成了村里的門面擔當!三層歐式別墅,左右對稱太氣派
占地:173.67平方米
不帶廚房的一層別墅設計圖,三臥二廳超巴適,室外獨立廚房
占地:120平方米
110平預算20萬內三層別墅設計圖,含效果圖
占地:110平方米
推薦:10套新農村自建房設計圖,2026年最新設計
閱讀次數:4825737次
100套鄉村別墅圖片大全,2026年最新設計
閱讀次數:2492203次
6款農村蓋一層平房的設計圖,10萬元就能建起來
閱讀次數:1852637次
這11個一層農村自建房別墅火爆了朋友圈!我最喜歡戶型十!你呢
閱讀次數:750268次
農村6萬元建一層小別墅圖,你敢相信嗎
閱讀次數:567686次
農村5萬塊就能自建房,6套普通房子設計圖分享,你沒看錯!
閱讀次數:419410次
8套農村漂亮三間平房圖片,非常適合在農村修建!
閱讀次數:411197次
農村自建房化糞池怎么做?附方案及施工過程
閱讀次數:391783次
農村一層三間平房設計圖,告別土氣養老房,讓人忍不住點贊
閱讀次數:350581次
新農村二層樓房圖片造價12萬,挑一套回家建房吧!
閱讀次數:349126次
