
|
現在農村建房確實是如火如荼,所以很多人都把這個計劃提前了,說到農村自建房,應該很多人都有非常多的苦惱,就是希望建一款時尚大方適合農村居住的,那到底什么樣的農村別墅適合?今天給大家推薦一套外觀大氣及非常實用的輕鋼別墅效果圖及戶型圖給大家!
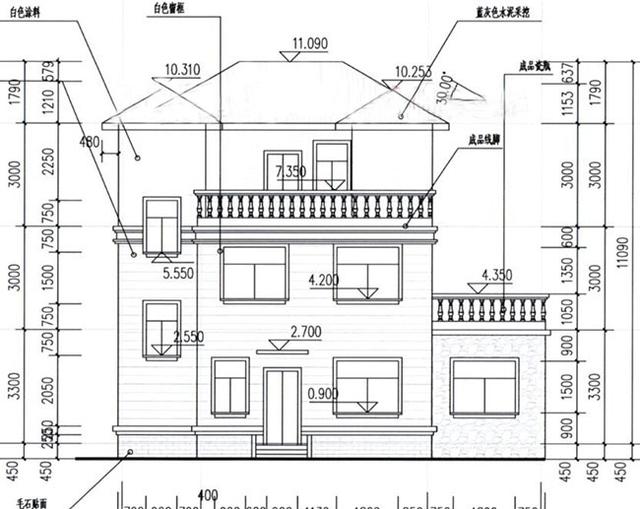
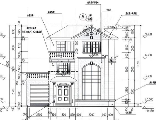
本戶型為歐式三層樓中樓輕鋼別墅設計圖,帶車庫,帶屋頂花園,外觀效果圖時尚、精致,施工時可以建車庫,可以不建車庫,建車庫占地130平左右,不建車庫占地120平左右,大小適中,很適合農村自建。 占地面積:12.2m*13.5m(尺寸含左側獨立車庫),
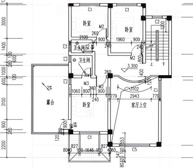
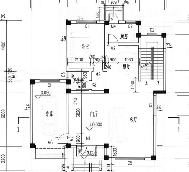
設計功能:首層:門廳、客廳、臥室、廚房、餐廳、衛生間、車庫;二層:主臥(帶衛生間)、臥室x2(小臥室可以做書房)、衛生間、露臺;三層:休閑廳、臥室、露臺。
立面圖:
![]() 圖紙之家-專注農村別墅/自建房設計18年,集合國內200余位經驗豐富的設計師,被評為口碑最好的農村建筑設計公司! |

150平左右新農村自建房設計圖,含外觀效果圖
占地:150平方米
農村10萬元一層小別墅設計圖,農村一層自建房屋設計圖
占地:多種戶型
帶架空層的三層農村別墅設計火了!雨季不怕返潮
占地:147.15平方米
給爸媽建養老房?100 平人字坡一層房太合適!簡約低調還實用
占地:102.6平方米
90平方米農村二層房屋設計圖紙(施工圖+效果圖)
占地:90平方米
爆款農村兄弟雙拼自建房設計圖,占地不大舒適宜居
占地:147.2平方米
新農村二層自建房設計圖帶外觀圖片,自建戶型大全
占地:160平方米
170平方米歐式農村兩層小別墅設計圖紙帶外觀圖,精致好看
占地:多種戶型
經典美式風100平米二層小別墅設計方案,鄉村建房首選
占地:100.17平方米
30萬農村小別墅設計圖片,30萬別墅設計戶型推薦
占地:130平方米
村里三層新中式風自建別墅圖,對稱設計,氣派好看
占地:135.3平方米
中式一層仿古自建平房設計圖,灰墻青瓦,外觀古香古色
占地:168.48平方米
簡約精致的二層房子設計圖,農村自建經濟實用
占地:89.76平方米
兩層三間農村房屋設計圖,新農村住宅方案推薦
占地:155平方米
私家二層農村自建房設計圖及效果圖,造價20萬左右
占地:125平方米
一層半帶閣樓別墅設計圖,悠閑舒適,養老度假皆可
占地:161.94平方米
農村三間兩層樓房設計圖,背面不開窗,氣勢上就勝人一籌
占地:153.7平方米
帶商鋪挑高的三層別墅房屋設計圖,商鋪挑高,層高比較高
占地:118平方米
二層新中式小別墅設計圖紙,舒適實用,16米乘12米
占地:189.88平方米
面寬14米農村別墅二層別墅戶型設計,經濟實用
占地:107.1平方米
推薦:10套新農村自建房設計圖,2026年最新設計
閱讀次數:4825737次
100套鄉村別墅圖片大全,2026年最新設計
閱讀次數:2492203次
6款農村蓋一層平房的設計圖,10萬元就能建起來
閱讀次數:1852637次
這11個一層農村自建房別墅火爆了朋友圈!我最喜歡戶型十!你呢
閱讀次數:750268次
農村6萬元建一層小別墅圖,你敢相信嗎
閱讀次數:567686次
農村5萬塊就能自建房,6套普通房子設計圖分享,你沒看錯!
閱讀次數:419410次
8套農村漂亮三間平房圖片,非常適合在農村修建!
閱讀次數:411197次
農村自建房化糞池怎么做?附方案及施工過程
閱讀次數:391783次
農村一層三間平房設計圖,告別土氣養老房,讓人忍不住點贊
閱讀次數:350581次
新農村二層樓房圖片造價12萬,挑一套回家建房吧!
閱讀次數:349126次
