
|
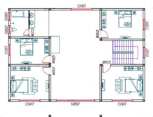
這款三層農村自建房設計圖外墻采用粉色為主,灰、白、紅三色為輔,優雅精致,首層占地約210㎡,毛坯房53萬左右可以建成,室內共設有1廳10臥,帶有堂屋,特別適合農村大家庭居住。
效果圖 層數:三層(含閣樓層) 開間:16.14米 進深:12.84米 首層占地面積:209..83平方米 總建筑面積:586.35平方米 結構形式:磚混結構 主體造價:53萬 功能設計
一層平面圖 一層:客廳、堂屋、餐廳、廚房、臥室、衛生間×2、洗漱間
二層平面圖 二層:臥室×5、衛生間、洗漱間、陽臺
三層平面圖 三層:臥室×4、衛生間、洗漱間 圖紙之家-專注農村別墅/自建房設計18年,集合國內200余位經驗豐富的設計師,被評為口碑最好的農村建筑設計公司! |

210平左右三層(兩層半)雙拼新農村別墅設計圖紙及外觀效果圖
占地:206.712平方米
農村中式二層雙拼四合院別墅設計圖,兄弟父母三戶典雅大氣
占地:360平方米
一層5間歐式平房小洋樓建筑設計圖紙,大戶型一層別墅戶型
占地:216平方米
精致簡歐一層別墅設計圖,經典大氣百看不厭
占地:139.57平方米
一層農房別墅設計圖紙,140平方米,面寬15米
占地:140平方米
11X10米三層別墅農村自建房設計圖,復式挑空客廳
占地:119.08平方米
新中式農村三層樓房設計圖紙,全套圖紙設計,線條錯落有致
占地:130平方米
村里三層新中式風自建別墅圖,對稱設計,氣派好看
占地:135.3平方米
農村二層住宅別墅設計圖,貼心實用,12.8米乘14.5米
占地:156.16平方米
新農村二層帶庭院的小別墅設計圖及效果圖
占地:137平方米
2026兩層半20多萬農村自建房圖,簡歐風格,美觀大氣
占地:120平方米
豪華大氣農村三層別墅圖紙,帶車庫、露臺,占地200平方米左右
占地:207平方米
簡單大氣的農村二層樓設計圖,二層歐式農村別墅設計圖
占地:180平方米
四層豪華別墅設計圖及效果圖,高端房屋設計方案
占地:250平方米
歐式二層別墅設計圖,漂亮實用性價比還高,13米乘10米
占地:130平方米
面寬18米二層新中式別墅圖紙設計,復式戶型,帶堂屋
占地:269.83平方米
115平漂亮的三層別墅設計方案,外觀圖片大氣、精致
占地:115平方米
150平方米的新農村自建三層小別墅設計施工圖紙及效果圖
占地:150平方米
2026年新款二層半農村自建小別墅設計圖紙,占地150平方米
占地:150平方米
最新農村三層樓房設計圖紙,客廳中空,采用暖黃色為主色
占地:160平方米
推薦:10套新農村自建房設計圖,2026年最新設計
閱讀次數:4825737次
100套鄉村別墅圖片大全,2026年最新設計
閱讀次數:2492203次
6款農村蓋一層平房的設計圖,10萬元就能建起來
閱讀次數:1852637次
這11個一層農村自建房別墅火爆了朋友圈!我最喜歡戶型十!你呢
閱讀次數:750268次
農村6萬元建一層小別墅圖,你敢相信嗎
閱讀次數:567686次
農村5萬塊就能自建房,6套普通房子設計圖分享,你沒看錯!
閱讀次數:419410次
8套農村漂亮三間平房圖片,非常適合在農村修建!
閱讀次數:411197次
農村自建房化糞池怎么做?附方案及施工過程
閱讀次數:391783次
農村一層三間平房設計圖,告別土氣養老房,讓人忍不住點贊
閱讀次數:350581次
新農村二層樓房圖片造價12萬,挑一套回家建房吧!
閱讀次數:349126次
