
|
看了那么多圖紙,想必大家會覺得坡屋頂的房屋看起來比平屋頂好看很多,不過如果在結構上巧妙設計,平屋頂的房屋也可以漂亮,今天小編給大家介紹的這款二層平屋頂設計圖就很大氣美觀,看看效果圖就知道了! 這是一款難得的平屋頂房屋設計圖,很少能看到平屋頂的房屋這么漂亮,本戶型在結構設計上,利用層層凸出的設計手法,為我們展現了一棟富有立體感的房屋,門廊突出,其次到中間部分稍稍外凸,再到外凸飄窗的設計,富有層次感。一層采用仿原始灰磚的墻磚裝飾,二層采用黃色真石漆涂刷,邊線使用白色修飾,合理搭配,協調美觀。
效果圖 圖紙詳情 層數:二層 結構形式:框架結構 開間:14.18米 進深:9.76米 占地面積:142.29平方米 一層建筑面積:136.46平方米 二層建筑面積:132.93平方米 總建筑面積:281.45平方米 主體造價:28萬 屋頂大露臺空間開闊,四面均可欣賞室外的美景,也方便農家晾曬,采用白色欄桿維護,與整體外觀搭調。 設計功能:
一層平面圖 一層:玄關、客廳、餐廳、廚房、主臥(帶主衛)、次臥、儲藏間、公衛
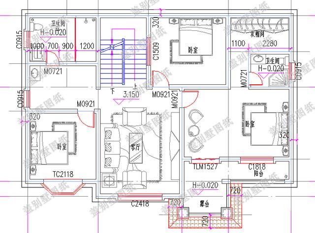
二層平面圖 二層:客廳、主臥(帶主衛、書房、陽臺、露臺、衣帽間)、次臥×2、公衛 二樓的主臥豪華配套,帶有書房、衣帽間、獨立衛生間,還有陽臺及露臺,是非常舒適的臥室環境,為主人考慮周到。 圖紙之家-專注農村別墅/自建房設計18年,集合國內200余位經驗豐富的設計師,被評為口碑最好的農村建筑設計公司! |

鄉村兩層半150平帶閣樓別墅房屋設計圖,客廳大、臥室多
占地:150平方米
一層農村小平房設計圖,功能齊全造價低,兩款戶型可選
占地:多戶型可選
小戶型經濟農村雙拼自建房別墅設計圖紙,二層簡約造價低
占地:138平方米
45萬新中式二層雙拼自建房別墅設計圖,平屋頂設計
占地:210平方米
超實用的農村一層別墅設計圖,經濟實惠養老自住都不錯,
占地:128.35平方米
客廳中空的三層豪華小別墅設計圖,時尚靚麗,鄉下建一棟有面子
占地:171.25平方米
帶堂屋二層小別墅設計圖紙帶外觀圖,13.6米x9米
占地:122.4平方米
10萬內2層小洋樓設計圖,平屋頂,戶型設計合理
占地:90平方米
現代風平屋頂三層半農村小別墅設計圖,面寬僅7米
占地:90平方米
巴洛克風格農村二層別墅設計圖(偏法式),對稱式設計,太講究
占地:210.25平方米
130平氣派美觀的二層別墅房屋設計圖,含效果圖
占地:130平方米
農村一層7字型平房別墅設計圖,“L”自行戶型,外觀簡約低調
占地:213.39平方米
中式四合院農村自建房設計圖,白墻黛瓦,四水歸堂
占地:137.72平方米
歐式風格三層自建房設計圖,外觀高端大氣,彰顯業主的高貴品質
占地:180平方米
160平方米二層小別墅設計圖紙及效果圖大全,12X13米
占地:162平方米
簡單平房農村自建一層別墅設計圖,時尚大氣,造價經濟
占地:166平方米
110平方米農村三層復式房屋施工圖,通透時尚,低調又奢華
占地:107.98平方米
獨棟二層別墅cad設計圖紙,平屋頂自建別墅方案精選
占地:190平方米
歐式三層小洋樓設計圖,外觀氣派,典雅、高貴
占地:145平方米
200平方米穩重大氣三層雙拼別墅建筑設計圖紙,含效果圖19.04米
占地:200平方米
推薦:10套新農村自建房設計圖,2026年最新設計
閱讀次數:4825737次
100套鄉村別墅圖片大全,2026年最新設計
閱讀次數:2492203次
6款農村蓋一層平房的設計圖,10萬元就能建起來
閱讀次數:1852637次
這11個一層農村自建房別墅火爆了朋友圈!我最喜歡戶型十!你呢
閱讀次數:750268次
農村6萬元建一層小別墅圖,你敢相信嗎
閱讀次數:567686次
農村5萬塊就能自建房,6套普通房子設計圖分享,你沒看錯!
閱讀次數:419410次
8套農村漂亮三間平房圖片,非常適合在農村修建!
閱讀次數:411197次
農村自建房化糞池怎么做?附方案及施工過程
閱讀次數:391783次
農村一層三間平房設計圖,告別土氣養老房,讓人忍不住點贊
閱讀次數:350581次
新農村二層樓房圖片造價12萬,挑一套回家建房吧!
閱讀次數:349126次
