
|
近年來,在農村建別墅越來越時興。好多農村人,離開農村很多年,早已在城市里安家立業。三層別墅的設計方案我們推薦的不少,小戶型的設計方案也不少,但是同時具備小戶型和三層結構這兩個要素的設計方案不多,那其中優秀的設計方案就更少了,可這恰恰是當下人們重點關注的對象,本期,今天小編就在這里給大家推薦7套實用形的農村三層小別墅,戶型既漂亮又實用,造價也不貴。 三層農村別墅第一套別墅戶型:
田園風格的三層小別墅,他的美不是說出來的,而是看出來的,入戶門設計走廊,建筑外形層次分明,各項裝飾效果完美,建筑設計尺寸:開間9.9米,進深13米,建筑占地116平米,總建筑面積280.2平米,建筑高度12.6米。
建筑入戶設計玄關,右側設計復式客廳加旋轉樓梯,一層陽面設計一間臥室,可供父母實用,免去上下樓的困擾,除了廚房、餐廳、公衛這些基本配置外,還預留兼儲藏室功能的洗衣房和棋牌室,廚房開后門;二層設計小型會客廳和三間臥室陽面臥室帶小書房和衛生間,三層任然保留小型會客廳,另設計兩間臥室和公衛,室外設計大露臺。 三層農村別墅第二套別墅戶型: 效果圖
戶型基本信息 開間:11.7米,進深:11.4米 占地面積:138.98平方米 建筑面積:376.37平方米 建筑高度:11.5米 結構類型:磚混結構 主體造價參考:30萬左右
平面圖
一層平面圖:四開門設計,非常大氣,設有車庫,從車庫的后門可通一層餐廳位置也可直接上二層,非常方便。
二層平面圖:設有5個臥室,還有個小的家庭廳,樓梯與客廳之間有裝修隔斷。
三層平面圖:類似于二層的布局,多了個大露臺,主臥室帶衛生間。
三層農村別墅第三套別墅戶型: 效果圖
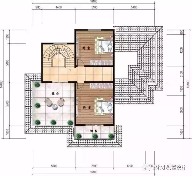
戶型基本信息 開間:16.1米,進深:14.4米 占地面積:182.36平方米 建筑面積:466.23平方米 建筑高度:13.1米 結構類型:框架結構 主體造價參考:55萬左右
平面圖
一層平面圖:入門右手邊可做老人房,餐廳前面的隔斷墻可供擺放神位,客廳挑空。
二層平面圖:實際可利用面積比一層少很多,多了個小露臺和客廳陽臺。
三層平面圖:在二層的基礎上有又少了不少面積,沒有衛生間,三層一般用的人少,一二層就能滿足基本生活,除非遇到特殊情況。
該戶型設計層層遞減,層次感分明,又避免了空間過大帶來的浪費,房間和衛生間數量都控制在比較合理的范圍內,多露臺和多陽臺,可以打造更多的休閑空間。
三層農村別墅第四套別墅戶型:
效果圖
戶型基本信息 開間:9米,進深:10.3米 占地面積:78平方米 建筑面積:213.16平方米 建筑高度:11.1米 結構類型:磚混結構 主體造價參考:21萬左右
平面圖
一層平面圖:占地面積較小,為了不過于緊湊,設計了個老人房和一些基本的設施。
二層平面圖:兩個臥室和一個家庭廳,客廳外有個陽臺,是個很好的休閑場所。
三層平面圖:大露臺設計,無論是美觀還是實用角度考慮,這個是現在農村建房必備了。
該戶型占地面積和總建筑面積都較小,適合宅基地小的,或者家里人口少,只需要建個小戶型的,房間數量和布局也合理,雖然面積不大,但是不會感覺到緊湊,造價也經濟,一般地區主體20來萬就可拿下。 三層農村別墅第五套別墅戶型:
很有層次感的一款三層小別墅,富有現代氣息,典型的文化石和外墻磚的裝飾效果,配上紅色屋頂非常顯眼;建筑設計尺寸:開間9.6米,進深10.8米,建筑占地103.2平米,總建筑面積287.8平米,建筑高度12.04米。
建筑入戶設計玄關,右側設計客廳,左側設計一間臥室,一層都是基本配置,保證廚房、餐廳和衛生間的寬敞;二層設計小客廳和三間臥室,另有帶陽臺的小書房;三層布局和二層類似,設計兩間臥室和一間獨立書房,不同的是在室外預留大露臺。 三層農村別墅第六套別墅戶型:
本戶型為三層帶露臺別墅。占地面積:111.68平方米,建筑面積:305.6平方米,本圖紙戶型合理,采光通風良好,推薦新農村自建使用。
一 層:客廳(中空)、臥室、廚房、餐廳、衛生間、車庫; 二 層:小客廳、臥室(附陽臺)、2臥室、衛生間; 三 層:小客廳、臥室(附陽臺)、2臥室、衛生間、露臺; 三層農村別墅第七套別墅戶型:
本戶型為三層復式別墅,客廳中空,帶車庫和屋頂花園,空間利用極高,采光通風良好;坡頂造型簡潔,美觀大方,富有現代氣息。
一 層:客廳、2臥室、廚房、餐廳、衛生間; 二 層:客廳、3臥室、書房、衛生間、陽臺; 三 層:3臥室、書房、衛生間、露臺; 以上7款戶型一個比一個美,大家覺得哪一套是最美的呢?在你們家鄉建一套這樣的房子又要多少錢呢?
農村蓋房子對戶型的要求特別多,既要實用還要好看,傳統的大院戶型雖然占地多,但很適合農村生活,尤其在現在這么緊張的用地下,有一個院子可以說是很厲害了,不過農村人都喜歡把廁所單獨設計在院子里, 圖紙之家-專注農村別墅/自建房設計18年,集合國內200余位經驗豐富的設計師,被評為口碑最好的農村建筑設計公司! |

經典簡約三層農村自建房設計圖,功能實用簡單大氣,比城里鴿子
占地:144平方米
高端三層別墅設計圖紙,客廳中空,帶地下室,設置多個套間
占地:220平方米
獨棟兩層歐式別墅設計圖紙(效果圖+建筑施工圖)
占地:125平方米
3款簡單舒適二層別墅設計圖,低調配色,造型簡單大氣
占地:多戶型可選
最新歐式三層別墅設計圖紙,超漂亮,預算30到40萬
占地:160平方米
農村小別墅一層設計圖紙,全套施工圖兩款戶型可選
占地:多種戶型可選
農村小別墅設計圖二層,占地不大顏值高,最適合農村建造。
占地:108.66平方米
造價25萬農村二層小別墅設計圖,外觀效果圖美觀、精致
占地:165平方米
新農村小開間三層樓房設計圖,占地100平米左右
占地:多種戶型
農村15萬元二層小樓設計圖,造價低,簡潔、好看
占地:90平方米
超大氣的農村一層雙拼自建別墅設計方案,絕對讓人羨慕的“平房
占地:424平方米
帶架空層的農村一層小別墅設計圖,大氣穩重又很實用
占地:123.5平方米
現代風格二層別墅設計圖,外觀時尚、大氣
占地:153平方米
四開間一層半別墅設計圖,帶閣樓設計的戶型方案
占地:190.7平方米
農村30萬別墅款式三層設計圖紙,帶地下儲藏室,挑空客廳
占地:110平方米
方方正正的二層農村別墅設計圖,普通農村人都能建
占地:201.05平方米
最新農村三層樓房設計圖紙,客廳中空,采用暖黃色為主色
占地:160平方米
經濟實用型二層農村小別墅設計圖,造價25萬內,外觀看起來時尚
占地:120平方米
美式二層別墅設計圖,含外觀效果圖,造型精美
占地:144平方米
辦公居住共用的一層別墅設計圖,簡約優雅,精致生活新體驗
占地:265.3平方米
推薦:10套新農村自建房設計圖,2026年最新設計
閱讀次數:4825737次
100套鄉村別墅圖片大全,2026年最新設計
閱讀次數:2492203次
6款農村蓋一層平房的設計圖,10萬元就能建起來
閱讀次數:1852637次
這11個一層農村自建房別墅火爆了朋友圈!我最喜歡戶型十!你呢
閱讀次數:750268次
農村6萬元建一層小別墅圖,你敢相信嗎
閱讀次數:567686次
農村5萬塊就能自建房,6套普通房子設計圖分享,你沒看錯!
閱讀次數:419410次
8套農村漂亮三間平房圖片,非常適合在農村修建!
閱讀次數:411197次
農村自建房化糞池怎么做?附方案及施工過程
閱讀次數:391783次
農村一層三間平房設計圖,告別土氣養老房,讓人忍不住點贊
閱讀次數:350581次
新農村二層樓房圖片造價12萬,挑一套回家建房吧!
閱讀次數:349126次
