
|
在鄉(xiāng)下建房并不是所有的地基開間和進深都在一定的比例,因為國家政策的限制有時候有個地基可以建房,已經是令人羨慕的事情。有想法的人一般都會因地制宜,根據不同的開間進深來按需建房,今天小編給大家推薦一款開間大進深小的農村自建房,如果你家的地基也面臨這樣的情況,那一定要看看了。
外墻上半部分淺黃色調清新雅致,下半部分深色調樸素大方,兩者如此撞色卻意外的柔和恬靜。屋頂鋪蓋的是灰色西瓦,考慮到了農村耐臟性,白色的線條輕盈靈動,多窗設計充分保證室內的采光、通風、透氣。
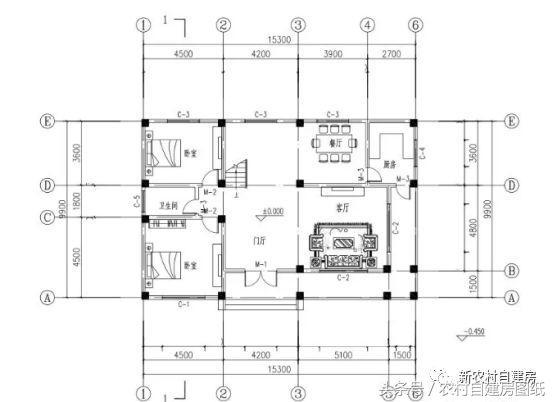
一層設計門廳、客廳、餐廳、2間臥室、衛(wèi)生間、廚房。進門的門廳可以作為堂屋,符合農村人的生活習慣。廚房和客廳、餐廳是獨立的,可以隔絕油煙污染。雖然臥室沒有帶衛(wèi)生間,但是公共衛(wèi)生間處于兩個臥室中間,使用起來非常便利。
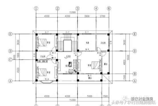
二層是客廳、主臥(帶書房、衛(wèi)生間、露臺)、2間臥室、公共衛(wèi)生間、露臺,二樓的客廳方便一家人的情感交流,主臥的配置給主人提供了安靜私密的休息環(huán)境,且給了戶主上乘的居住體驗。露臺可以用來作為景觀臺,平時還可以看看星星喝喝茶,也可以晾曬衣物和糧食。總共設計了5間臥室,家里三代同堂,且有二胎的家庭,也完全能夠住得下。 該建筑開間15.3米,進深9.9米,占地面積133.15平方米,建筑面積266.3平方米,建筑結構為框架結構,主體預算在25萬左右。 圖紙之家-專注農村別墅/自建房設計18年,集合國內200余位經驗豐富的設計師,被評為口碑最好的農村建筑設計公司! |

帶小院新農村房屋設計圖紙,三層別墅推薦
占地:115平方米
新款漂亮農村三層別墅建筑設計圖紙帶效果圖片,3種戶型
占地:125平方米
100平方米實用二層半小別墅設計圖紙(帶閣樓層),住著安逸
占地:100平方米左右
120平米三層30萬別墅圖片大全及全套施工圖,外觀簡潔大方
占地:120平方米
農村二層帶電梯別墅設計圖,歐式風格,避免老人上下樓的麻煩
占地:179.94平方米
110平方米新農村三層別墅設計圖,含外觀效果圖
占地:109平方米
農村20萬左右三層住房設計圖,小宅基地首選
占地:95平方米
平屋頂四間一層農村自建房設計圖紙,經濟時尚
占地:144平方米
新中式二層雙拼樓房設計圖,單戶面積100平米左右,實用美觀
占地:200平方米
100來平復式旋轉樓梯二層簡歐別墅設計圖,戶型實用
占地:101.523平方米
帶車庫帶露臺二層農村小別墅設計圖,宅基地大小適中,外觀造型
占地:180平方米
帶地下室獨棟三層高端別墅房圖紙設計圖,復式客廳旋轉樓梯
占地:146.145平方米
小型四合院二層別墅設計圖方案,對稱設計,頂層大露臺
占地:114平方米
帶架空層一層農村別墅設計圖,回鄉(xiāng)建房優(yōu)選,家有豪宅幸福來敲
占地:124.76平方米
160-170平方米二層自建別墅設計CAD圖紙帶效果圖,田園風
占地:167平方米左右
140平方米兩層別墅CAD設計圖紙及效果圖,13x11米
占地:138平方米
新農村二層房屋設計圖紙(全套建筑施工圖紙+外觀效果圖)
占地:85平方米
農村中式四合院房屋圖片及設計圖,白墻黛瓦的江南風格
占地:337平方米
美式二層別墅設計圖,含外觀效果圖,造型精美
占地:144平方米
新中式別墅一層自建房設計,戶型實用緊湊
占地:170.54平方米
推薦:10套新農村自建房設計圖,2026年最新設計
閱讀次數:4825737次
100套鄉(xiāng)村別墅圖片大全,2026年最新設計
閱讀次數:2492203次
6款農村蓋一層平房的設計圖,10萬元就能建起來
閱讀次數:1852637次
這11個一層農村自建房別墅火爆了朋友圈!我最喜歡戶型十!你呢
閱讀次數:750268次
農村6萬元建一層小別墅圖,你敢相信嗎
閱讀次數:567686次
農村5萬塊就能自建房,6套普通房子設計圖分享,你沒看錯!
閱讀次數:419410次
8套農村漂亮三間平房圖片,非常適合在農村修建!
閱讀次數:411197次
農村自建房化糞池怎么做?附方案及施工過程
閱讀次數:391783次
農村一層三間平房設計圖,告別土氣養(yǎng)老房,讓人忍不住點贊
閱讀次數:350581次
新農村二層樓房圖片造價12萬,挑一套回家建房吧!
閱讀次數:349126次
