
|
農村自建房已經別墅化,叫鄉村別墅一點不夸張,2層或者3層小樓,露臺庭院家家都有,在住房上,農村已經領先城市很多了。可是一眼望過去,十棟房子有9棟都是歐式風格,建筑的樣式那么多,怎么就不能來電新穎的呢?傳統的四合院我們蓋不起,那這種新中式建筑風格建筑你一定喜歡。
依托于新農村特點,并糅合黛瓦白墻的徽派院墅美學,打造出古雅并富有神韻的農村自建別墅
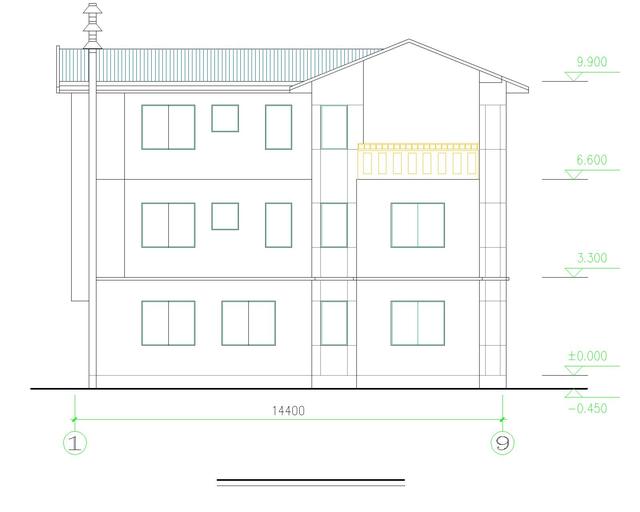
開間:14.4米,進深:11.0米,占地面積:110平方米,建筑面積:330平方米,建筑層數:三層;建筑高度:9.9米(不帶坡屋頂);
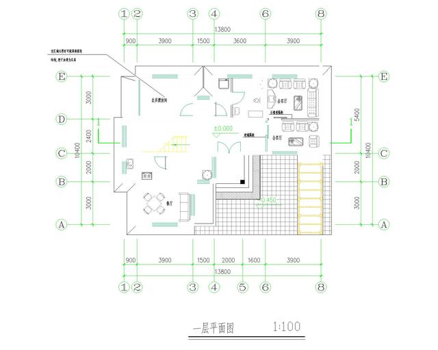
設計功能: 一層:廚房、餐廳、農具間、衛生間、會客廳; 二層:次臥室、衛生間、活動室、書房、主臥室、儲物間、衛生間; 三層:次臥、衛生間、書房、主臥室、儲物間、衛生間、露臺。 圖紙之家-專注農村別墅/自建房設計18年,集合國內200余位經驗豐富的設計師,被評為口碑最好的農村建筑設計公司! |

闊氣高端的三層別墅設計圖,亮得恰到好處,永遠也住不膩
占地:160平方米
歐式二層小別墅設計圖紙(含外觀效果圖)
占地:141平方米
140平三層復式別墅設計圖及外觀效果圖
占地:140平方米
130平方米復式三層別墅房屋設計圖,含外觀效果圖
占地:130平方米
高顏值又實用的一層雙拼鄉村別墅設計圖,舒適度堪比豪宅
占地:217.3平方米
兩層樓房設計圖,兩層新農村樓房圖紙,外觀典雅古樸
占地:140平方米
歐式大氣新農村三層別墅豪宅設計圖,外觀高端,對稱設計
占地:225平方米左右
帶地下室三層別墅設計圖紙(含外觀效果圖),別墅設計方案
占地:134平方米
面寬22米的高端三層自建房別墅設計圖,功能齊全
占地:222.47平方米
新農村三層自建樓房設計圖,帶大露臺,外觀大氣
占地:136平方米
二開間小戶型設計三層農村自建房方案,經濟型適合小宅基地建房
占地:107.02平方米
二層樓房圖片及施工圖紙,占地160平米左右,帶車庫
占地:160平方米
80平方米二層房屋設計圖,造價10萬左右
占地:80平方米
二層平頂別墅設計圖,漂亮經濟實用二層農村小別墅最新房屋設計
占地:多種戶型
現代四合院別墅設計圖紙,二層戶型,外觀時尚漂亮
占地:287.97平方米
二層歐式農村小別墅設計圖,9.5米乘13米,戶型好到鄰居求圖紙
占地:118.32平方米
簡單實用二層自建房子設計圖,主體造價僅17萬
占地:106.387平方米
16米X12米四開間二層別墅設計圖,造型美觀經濟實用
占地:198平方米
80-90平米二層經典小別墅房屋設計圖,左右對稱外觀
占地:88.46平方米
12.8x10米二層自建房別墅設計圖,大氣美觀實用,建造無憂
占地:128平方米
推薦:10套新農村自建房設計圖,2026年最新設計
閱讀次數:4825737次
100套鄉村別墅圖片大全,2026年最新設計
閱讀次數:2492203次
6款農村蓋一層平房的設計圖,10萬元就能建起來
閱讀次數:1852637次
這11個一層農村自建房別墅火爆了朋友圈!我最喜歡戶型十!你呢
閱讀次數:750268次
農村6萬元建一層小別墅圖,你敢相信嗎
閱讀次數:567686次
農村5萬塊就能自建房,6套普通房子設計圖分享,你沒看錯!
閱讀次數:419410次
8套農村漂亮三間平房圖片,非常適合在農村修建!
閱讀次數:411197次
農村自建房化糞池怎么做?附方案及施工過程
閱讀次數:391783次
農村一層三間平房設計圖,告別土氣養老房,讓人忍不住點贊
閱讀次數:350581次
新農村二層樓房圖片造價12萬,挑一套回家建房吧!
閱讀次數:349126次
