圖紙介紹:本戶型為130平方米復式三層別墅房屋設計圖,含外觀效果圖,本戶型帶車庫,復式結構,戶型合理,功能齊全,采光好,外觀造型美觀,富有現代氣息。
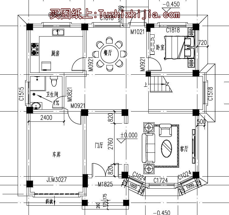
占地面積:11.40m*12.00m,一層建筑面積130平方米左右;
建筑層高:三層;
建筑高度:11.54米(含屋頂);
設計功能:
一 層:門廳、客廳、廚房、餐廳、臥室、衛生間、車庫;
二 層:客廳上空、主臥、臥室x3、衛生間、陽臺;
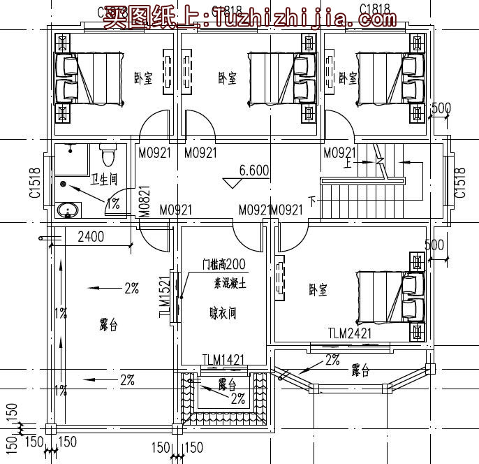
三 層:臥室x4、衛生間、曬衣間、露臺、陽臺;
圖紙目錄:
建 筑 圖:建筑設計說明、一層平面圖、二層平面圖、三層平面圖、屋頂平面圖、正立面圖、背立面圖、左立面圖、右立面圖、1-1剖面圖、樓梯大樣圖、門斗大樣圖、節點大樣圖、門窗詳圖、門窗表等;
結 構 圖:結構設計說明、基礎平面布置圖、基礎大樣圖、一層梁結構平面圖、二層梁結構平面圖、三層梁結構平面圖、屋頂梁結構平面圖、二層板結構平面圖、三層板結構平面圖、屋面板結構平面圖、樓梯大樣圖、節點大樣圖等;
給排水圖:給排水設計說明、一層給排水平面圖、二層給排水平面圖、三層給排水平面圖、屋頂給排水平面圖、衛生間大樣圖、給排水系統圖等;
電 氣 圖:電氣設計說明、配電系統圖、弱電系統圖、配電干線系統圖、一層照明平面圖、二層照明平面圖、三層照明平面圖、一層插座平面圖、二層插座平面圖、三層插座平面圖、一層弱電平面圖、二層弱電平面圖、三層弱電平面圖、接地平面圖、屋頂防雷平面圖等;



































































































