
|
郴州的吳先生家里有塊宅基地,17米X13米的,在村里來說面積已經算是不小了,最近看著天氣好想抓緊時間趕緊建房子。因為在他們那里款式基本都差不多,所以吳先生找了一個設計師根據自家的情況專門設計了一下,想與眾不同一點,
這是一款歐式風格的兩層建筑,顯眼的就是它不規則的玻璃設計,通透明亮又溫暖。因為吳先生家地處南方,所以采用傳統的斜屋頂設計,不僅可以組織排水,而且設計師設計出的層次感,讓它看起來美觀又如此有個性。
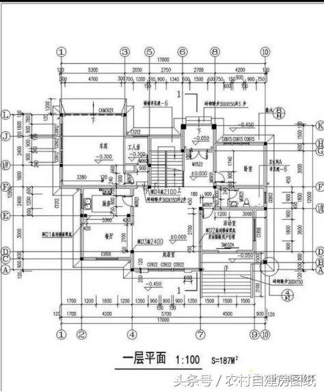
一層設計餐廳、廚房、起居室、活動室、車庫、工人房、臥室、衛生間,一層功能豐富,設計齊全,家里有老人家的,臥室可以作為老人房。車庫在動線區,不會對生活區造成噪音打擾。廚房遠離生活區,隔絕油煙污染,可以作為單獨的柴火灶。
二層設置起居室、臥室(帶衛生間、衣帽間)、臺、臥室、衛生間,起居室在兩個臥室的中間,方便一家人感情交流,主臥的套間全面提高了生活品質,也有利于隱秘。陽臺雖然面積不大,但是作為一個景觀臺還是綽綽有余的。可以種上一些花花草草,春秋之時,陽臺成為綠野花池,盛放繽紛美麗。
開間17米,進深12.9米,結構為磚混結構,大家看看這個布局是否合理呢,雖然花了幾千塊錢設計費,但是房子卻要住幾十年的,吳先生覺得還是要謹慎點。目前鄉下施工隊主體報價45萬,包工包料,大家覺得這個價格合理嗎?
圖紙之家-專注農村別墅/自建房設計18年,集合國內200余位經驗豐富的設計師,被評為口碑最好的農村建筑設計公司! |

樓中樓客廳挑高二層別墅設計圖,復式別墅方案推薦
占地:122平方米
農村二層帶閣樓四間別墅設計圖,外觀美觀,戶型實用
占地:175平方米
堂屋共用五間雙拼別墅設計圖,適合二兄弟的二層別墅
占地:292.5平方米左右
帶車庫二層別墅設計圖及效果圖,帶車庫的農村二層樓房推薦
占地:123平方米
農村二層半別墅設計圖,簡單實用,造價低
占地:140平方米
兩間二層農村自建房設計圖,面積雖小功能齊全,布局緊湊。
占地:118.75平方米
170平方米歐式農村兩層小別墅設計圖紙帶外觀圖,精致好看
占地:多種戶型
三層獨棟別墅設計圖紙帶效果圖,全套施工方案(建筑圖+結構圖
占地:144平方米
10X13米新款歐式三層別墅樓房設計圖,外觀清新明亮
占地:140平方米
造價40萬三層大氣自建房設計圖紙,鄉村別墅建造圖
占地:159.609平方
12.5乘12米大氣優雅二層自建房設計圖,精美舒適布局實用
占地:149.27平方米
面寬13米帶堂屋三層農村別墅圖,新中式大氣風格
占地:151.58平方米
簡歐風格二層別墅設計圖,經典不過時大氣時尚,漂亮的不像話!
占地:205.68平方米
農村二層小樓的設計圖紙,整體外觀凹凸有致,紅色的坡面屋頂
占地:180平方米
爆款二層自建房別墅設計圖,不追求奢華,建個溫馨實用的家
占地:100平方米
二層半房子設計圖及效果圖,客廳中空,南北通透
占地:160平方米
農村三層帶露臺、帶車庫房屋設計圖,含外觀圖片
占地:155平方米
兩層平屋頂帶地下室別墅設計方案(全套自建房施工圖+效果圖)
占地:152.55平方米
二層樓房設計圖,占地120平米左右,符合現代農村的建房政策
占地:120平方米
一層半房屋別墅設計圖,帶閣樓圖、帶露臺,外觀新穎時尚
占地:130平方米
推薦:10套新農村自建房設計圖,2026年最新設計
閱讀次數:4825737次
100套鄉村別墅圖片大全,2026年最新設計
閱讀次數:2492203次
6款農村蓋一層平房的設計圖,10萬元就能建起來
閱讀次數:1852637次
這11個一層農村自建房別墅火爆了朋友圈!我最喜歡戶型十!你呢
閱讀次數:750268次
農村6萬元建一層小別墅圖,你敢相信嗎
閱讀次數:567686次
農村5萬塊就能自建房,6套普通房子設計圖分享,你沒看錯!
閱讀次數:419410次
8套農村漂亮三間平房圖片,非常適合在農村修建!
閱讀次數:411197次
農村自建房化糞池怎么做?附方案及施工過程
閱讀次數:391783次
農村一層三間平房設計圖,告別土氣養老房,讓人忍不住點贊
閱讀次數:350581次
新農村二層樓房圖片造價12萬,挑一套回家建房吧!
閱讀次數:349126次
