
|
過去的農村,在建造房子方面都沒有一個統一的規劃,只要認為這個地方好,是塊建房的風水寶地,便建起了一座房子,致使整個村寨顯得雜亂無章,連一條主要的交通要道都沒有。過去農村建的多數是木樓,防火性能極差,一旦發生火災,別說救援,甚至連逃生的機會都沒有。 不過,經過這幾十年的改革開放,農村生活大有改善,人們的生活水平提高了,環保意識也增強了。每村每寨都有專人統一收積垃圾,房屋建設也規劃的井然有序,而且交通也變得十分便利。吃穿方面也大有改觀。有些地方還裝上了太陽能路燈,組建有自己的文藝隊,逢年過節的時候,全村人都聚在一起觀看文藝演出,搞得熱鬧非凡。 打算回農村老家蓋別墅的朋友們不妨看看下面的這2款別墅設計圖~ 戶型一 圖紙詳情 面寬:12.0米 進深:12.5米 占地面積:135平方米左右; 建筑層高:三層; 建筑高度:12.2米(含屋頂); 主體造價:35萬
農村三層樓房設計圖三層別墅圖片,外觀造型和裝飾效果均非常見的風格,一款尊貴典雅,一款不拘一格,其戶型設計更是小巧實用 設計功能:
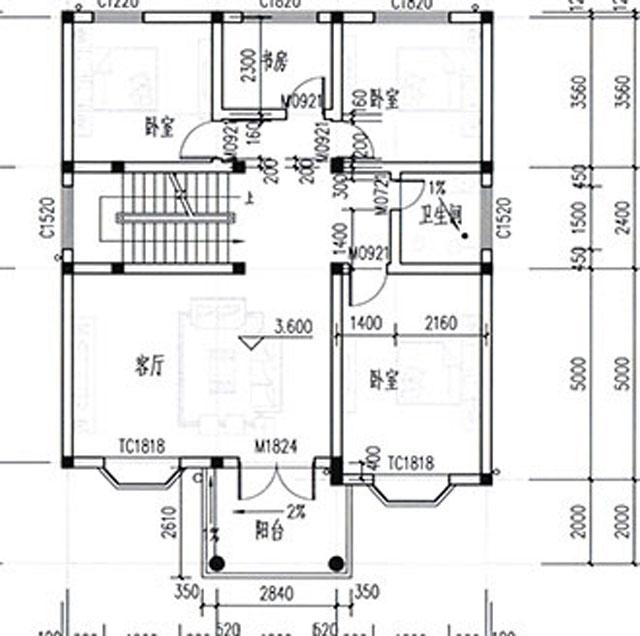
一層平面圖 一 層:客廳、廚房、餐廳、娛樂室、衛生間、茶室;
二層平面圖 二 層:客廳上空、起居室、臥室(帶衛生間)×2、臥室、衛生間、陽臺;
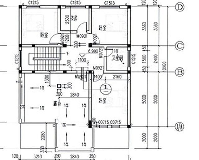
三 層:臥室(帶衛生間)×2、臥室、衛生間、書房、露臺 02 圖紙屬性 層數:三層 結構形式:磚混結構 主體造價:20-25萬 開間:9.96米 進深:10.96米 占地面積:111.68平方米 建筑面積:305.6平方米 效果圖:
這套戶型整體造型大氣典雅明亮,飄窗的設計顯得空間延伸了不少,室內的房間尺寸方正適宜,拿到圖紙,即可施工。 實景圖:
設計功能
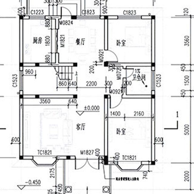
一 層:客廳、2臥室、廚房、餐廳、衛生間
二 層:客廳、3臥室、書房、衛生間、陽臺
三 層:3臥室、書房、衛生間、露臺 圖紙之家-專注農村別墅/自建房設計18年,集合國內200余位經驗豐富的設計師,被評為口碑最好的農村建筑設計公司! |

160平方米左右二層自建別墅設計圖,對稱設計,23萬建好
占地:157平方米左右
實用三層新農村住宅設計圖,鄉村別墅設計圖(含外觀效果圖)
占地:102.34平方米
145平方米新農村二層別墅設計效果圖及施工圖,12.6米x11.4米
占地:147平方米
140平米二層半帶露臺別墅圖片及圖紙,戶型極佳
占地:140平方米
現代風格四合院別墅設計圖,回老家建一棟吧
占地:177.89平方米
新農村三層自建房屋設計圖,含外觀圖片
占地:136平方米
2026新款三層小別墅設計圖,占地150平米,帶地下室
占地:150平方米
二層農村自建小別墅設計圖,歐式風格,占地160平方米
占地:160平方米
造價40萬三層大氣自建房設計圖紙,鄉村別墅建造圖
占地:159.609平方
農村自建一層房子設計圖,大開間小進深,20米x10米
占地:188平方米
三層現代平頂別墅設計圖,簡約時尚百看不厭,外觀令人驚艷!
占地:125.142平方米
好看精致的三層自建房別墅設計圖,開間12米進深12米左右
占地:125.73平方米
二層復式農村別墅設計圖,進深12米,戶型堪稱完美
占地:193.2平方米
帶地下室的一層別墅設計圖,農村自建很實用
占地:192平方米
農村16萬一層平房小院設計圖,左右對稱布局好,南北方都能建
占地:195.9平方米
新農村三層房屋設計圖紙(含效果圖),農村小別墅圖紙推薦
占地:116.15平方米
歐式風二層別墅設計圖,帶陽光房設計,時尚美觀還很實用
占地:多戶型可選
農村兩層帶地下室別墅設計圖,還帶庭院規劃,適合農村建
占地:144.5平方米
100平方米新農村住宅二層小別墅設計CAD圖紙及效果圖,10x10米
占地:96平方米
130平方米別墅設計圖紙(含外觀效果圖,)三層別墅設計方案
占地:135平方米
推薦:10套新農村自建房設計圖,2026年最新設計
閱讀次數:4825737次
100套鄉村別墅圖片大全,2026年最新設計
閱讀次數:2492203次
6款農村蓋一層平房的設計圖,10萬元就能建起來
閱讀次數:1852637次
這11個一層農村自建房別墅火爆了朋友圈!我最喜歡戶型十!你呢
閱讀次數:750268次
農村6萬元建一層小別墅圖,你敢相信嗎
閱讀次數:567686次
農村5萬塊就能自建房,6套普通房子設計圖分享,你沒看錯!
閱讀次數:419410次
8套農村漂亮三間平房圖片,非常適合在農村修建!
閱讀次數:411197次
農村自建房化糞池怎么做?附方案及施工過程
閱讀次數:391783次
農村一層三間平房設計圖,告別土氣養老房,讓人忍不住點贊
閱讀次數:350581次
新農村二層樓房圖片造價12萬,挑一套回家建房吧!
閱讀次數:349126次
