
|
本套戶型采用框架結構,共有三層樓,開間進深23.6米×13.5米,占地面積275.20㎡,建筑面積842.91㎡,主體參考造價85萬左右。 這套戶型設計看起來比較復雜,外立面豐富,戶型對稱,占地面積非常大,適合農村兩兄弟建造,這樣平攤一人出資也不用太多,可以減輕壓力,還能建造起豪華大氣的房子。
該戶型采用多個外挑陽臺設計,延伸室內的空間,增加日常晾曬及休閑空間。兩邊獨門入戶,三層的大露臺共用,合理優化布局,提升空間利用率。 布局展示 注:以下功能布局僅指左邊(或右邊)一戶。
一層平面圖 一層:前室、餐廳、臥室、淋浴間、廚房、洗衣房、2衛生間 大堂共用,空間開闊,方便農村舉辦聚會及紅白事,也可以用墻面分隔,左右兩邊均有上樓的樓梯。
二層平面圖 二層:客廳、臥室(帶陽臺)、臥室(帶陽臺、衛生間)、餐廳、娛樂房、淋浴間、洗衣房、衛生間
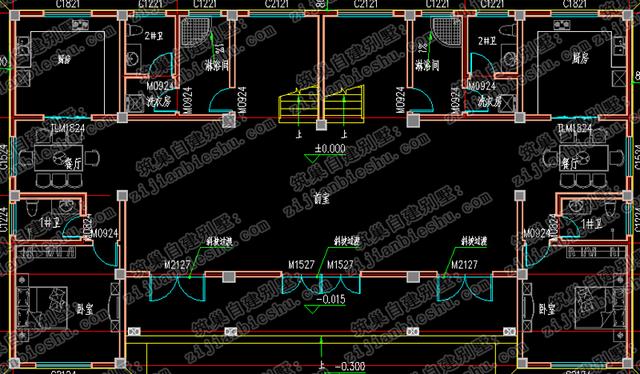
三層平面圖 三層:客廳(帶陽臺)、露臺、書房、臥室(帶陽臺、衛生間)、臥室、衛生間、淋浴間、洗衣房 圖紙之家-專注農村別墅/自建房設計18年,集合國內200余位經驗豐富的設計師,被評為口碑最好的農村建筑設計公司! |

新農村一層平屋頂簡單自建房別墅設計圖紙,全套設計
占地:130平方米
自建帶電梯的三層豪華別墅設計圖,建好有面子,面寬16米
占地:194平方米左右
140平中式徽派一層別墅設計圖,一層照樣建這樣漂亮
占地:140平方米
50萬以內的歐式三層房屋別墅施工設計圖紙及效果圖
占地:169平方米
帶地下室(車庫)的二層別墅設計圖,外觀效果圖時尚美觀
占地:149平方米左右
150平米農村兩層樓房設計圖,簡單大氣時尚
占地:150平方米
全新農村簡歐風格三層房屋別墅效果圖,110和210兩個戶型,帶電梯
占地:多種戶型
簡單時尚二層住宅設計圖紙,簡單的設計,不平凡的視覺感受
占地:110平方米
復式別墅新農村二層房屋設計圖紙,屋頂錯落有致
占地:多戶型可選
四層豪華歐式別墅自建樓房設計圖紙,帶效果圖和全套施工圖
占地:300平方米
新中式農村兄弟合建三層雙拼別墅全套設計圖紙,3款戶型方案
占地:多種戶型
二層復式農村別墅設計圖,進深12米,戶型堪稱完美
占地:193.2平方米
農村二層帶車庫樓房設計圖,帶外觀效果圖片
占地:125平方米
歐式小型二層別墅效果圖片,帶全套Cad別墅設計圖紙
占地:120平方米
新中式三層別墅設計圖紙(含效果圖),110平農村自建房施工圖推
占地:110平方米
帶閣樓的一層半平房設計圖,比樓房還舒適,12米×13米
占地:170.1平方米
三層復式別墅設計圖紙(含效果圖),復式住宅設計圖精選
占地:147.7平方米
農村一層平房別墅設計施工圖效果圖,外觀簡約時尚,17萬到19萬
占地:168平方米
三層兄弟雙拼別墅設計圖,外觀大氣漂亮,顏色搭配協調,一層為
占地:270平方米
自建二層獨棟別墅建筑施工圖,含效果圖和全套設計圖紙
占地:198.72平方米
推薦:10套新農村自建房設計圖,2026年最新設計
閱讀次數:4825737次
100套鄉村別墅圖片大全,2026年最新設計
閱讀次數:2492203次
6款農村蓋一層平房的設計圖,10萬元就能建起來
閱讀次數:1852637次
這11個一層農村自建房別墅火爆了朋友圈!我最喜歡戶型十!你呢
閱讀次數:750268次
農村6萬元建一層小別墅圖,你敢相信嗎
閱讀次數:567686次
農村5萬塊就能自建房,6套普通房子設計圖分享,你沒看錯!
閱讀次數:419410次
8套農村漂亮三間平房圖片,非常適合在農村修建!
閱讀次數:411197次
農村自建房化糞池怎么做?附方案及施工過程
閱讀次數:391783次
農村一層三間平房設計圖,告別土氣養老房,讓人忍不住點贊
閱讀次數:350581次
新農村二層樓房圖片造價12萬,挑一套回家建房吧!
閱讀次數:349126次
