
|
陽臺是一個生活必需的一個區域,也是一個房子所必有的功能區域,在我們農村地區雖說地廣,但也有不少家庭宅基地占地面積小,這就需要更多的空間區域來增加家庭成員們的活動范圍,陽臺、露臺就起到這樣的作用。許多人在糾結到底陽臺怎么設計為好,全封閉還是半封閉呢?小編覺得半封閉較好,半封閉陽臺能夠搭建起一個很好的室內與外界溝通橋梁,增加了住戶與自然的親密度,雖然防潮防雨功能不是很強,但也具有一定的防雨功能,而且在節省裝修資金的同時又具備了一定的實用性。 今天小編就分享一款帶有半封閉陽臺+露臺的農村三層房屋設計圖片,外觀爽朗大氣! 別墅基本信息 開間: 9.5米 進深: 12.5米 占地面積: 121.21平方米 總建筑面積: 312. 15平方米 結構類型:框架 主體造價:30萬 建筑總高度; 12.625米
該戶型外墻采用方塊面磚裝飾,杏色與米白色外墻,深淺兩種顏色過渡搭配,各種腰線,裝飾線,設計的別出心裁,爽朗大氣;有露臺、半封閉陽臺,活動休閑空間充足,半封閉陽臺是一個很好的休閑區、工作區以及景觀區,外觀簡約時尚,室內布局合理化,臟凈分離,動線分區。 室內功能布局圖:
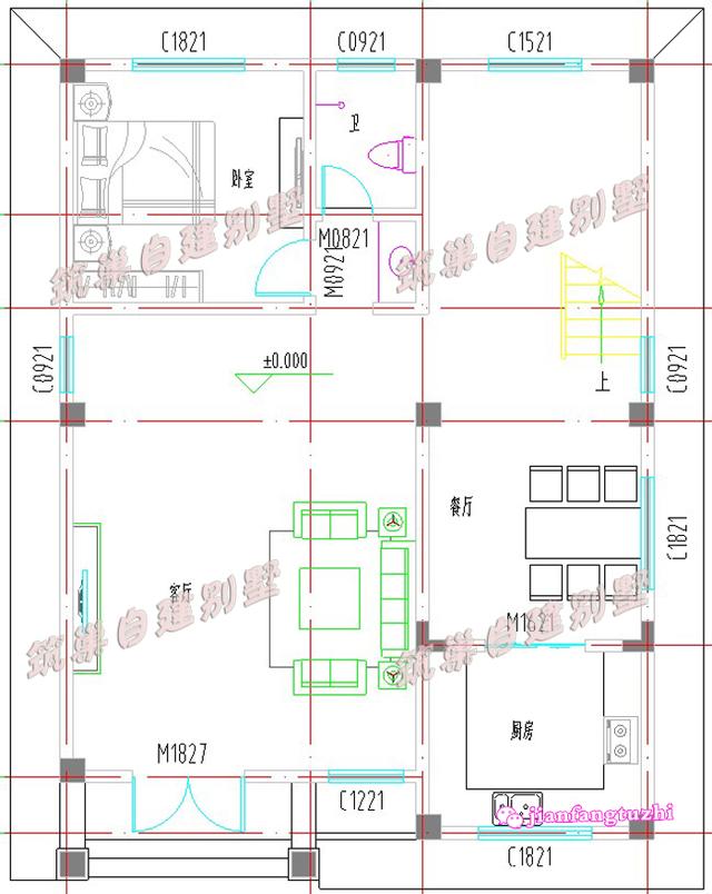
一層平面圖 一層:客廳、臥室、廚房、餐廳、儲物間、衛生間、樓梯
二層平面圖 二層:客廳、臥室(帶陽臺)、臥室(帶內衛)、小臥室、衛生間、樓梯、陽臺
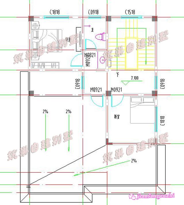
三層平面圖 三層:客廳、2臥室、衛生間、樓梯、露臺
圖紙之家-專注農村別墅/自建房設計18年,集合國內200余位經驗豐富的設計師,被評為口碑最好的農村建筑設計公司! |

面寬13米方正戶型二層小別墅設計方案,南北通透采光好
占地:166.78平方米
農村二層別墅設計圖,帶外觀效果圖,兄弟自建推薦
占地:多種戶型
2026新款農村三層雙拼自建房設計圖,占地150平米左右
占地:150平方米
新農村二層帶露臺經濟型小別墅設計圖紙,含外觀效果圖
占地:120平方米
開間8米的小戶型二層別墅設計圖,2開間占地不到60平
占地:56平方米左右
160平小開間大進深農村三層別墅設計圖紙
占地:158.73平方米
95平方米農村四層房屋設計圖,8米X11米 ,預算37萬
占地:95平方米
帶閣樓的二層半別墅設計圖和效果圖,外飾簡單但不失奢華
占地:210平方米
一層時尚農村自建別墅方案,低至10萬的造價,適合住家養老
占地:131.04平方米
鄉村兩層半別墅設計圖,一層160平,主體30萬左右
占地:168平方米左右
三層平頂現代風格,農村自建房設計圖,可帶電梯,百看不厭
占地:259.55平方米
一層鄉村自建別墅設計方案推薦,含外觀圖片
占地:148平方米
造價33萬左右超漂亮的三層別墅圖紙設計圖,旋轉樓梯戶型設計
占地:121.59平方米
巴洛克風格別墅設計圖紙及效果圖,農村建一棟想低調都難
占地:256平方米左右
大氣的美式三層別墅設計圖,外觀效果圖氣派、美觀
占地:148平方米
高端三層帶地下室別墅房屋設計圖方案及效果圖
占地:135平方米
農村二層帶車庫樓房設計圖,帶外觀效果圖片
占地:125平方米
人字坡紅磚一層別墅設計圖,簡約低調超實用,這樣的房子人人能
占地:136.51平方米
經典三層雙拼樓房設計圖,經典外觀,經典戶型
占地:225平方米
小型新中式二層小別墅圖紙設計方案,好看造價不高
占地:232.98平方米
推薦:10套新農村自建房設計圖,2026年最新設計
閱讀次數:4825737次
100套鄉村別墅圖片大全,2026年最新設計
閱讀次數:2492203次
6款農村蓋一層平房的設計圖,10萬元就能建起來
閱讀次數:1852637次
這11個一層農村自建房別墅火爆了朋友圈!我最喜歡戶型十!你呢
閱讀次數:750268次
農村6萬元建一層小別墅圖,你敢相信嗎
閱讀次數:567686次
農村5萬塊就能自建房,6套普通房子設計圖分享,你沒看錯!
閱讀次數:419410次
8套農村漂亮三間平房圖片,非常適合在農村修建!
閱讀次數:411197次
農村自建房化糞池怎么做?附方案及施工過程
閱讀次數:391783次
農村一層三間平房設計圖,告別土氣養老房,讓人忍不住點贊
閱讀次數:350581次
新農村二層樓房圖片造價12萬,挑一套回家建房吧!
閱讀次數:349126次
