
|
因為各方面的限制,我們常見的自建房設計方案一般都是三開間的,但是農村的實際情況卻是,好多的宅基地更適合建四開間的建筑,尤其是三層的自建房,四開間的結構會顯得更加的大氣,結構和功能也會更加的全面的合理。本期,我們就推薦一款這樣的設計方案,帶立面效果圖,看起來更加的直觀,磚混結構在農村施工更加的便利,建成之后,必定會成為村里的一大亮點。 外觀效果圖:
帶車庫的三層四開間別墅,建筑采用多層次的設計理念,飄窗、陽臺、露臺層次分明,正立面凹凸有致,充分體現建筑線條美感,正面拱形和方形的結合效果更加的美觀,用常見的鐵質欄桿取代傳統的花瓶柱,更符合農村的施工習慣;建筑裝飾以簡潔為主,采用兩色外墻磚裝飾,再以深藍色瓦片做屋頂,整體效果美觀。 立面示意圖:
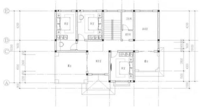
建筑設計尺寸:開間14.7米,進深10.3米,建筑占地152.2平米,總建筑面積429.4平米。建筑屋檐高度10.21米總高度12.3米。建筑采用前后多開窗的設計方式,保證室內的采光和通風,兩側開窗較少,基本是為衛生間準備,也符合農村建房的實際情況。 平面布局圖:
建筑入戶設門廳,左側設生活區,復式客廳、廚房、餐廳、公衛均在此方位布局,門廳和餐廳之間做隔斷,右側設兩間臥室,其中一間設私衛,另有車庫和樓梯雜物間;二層設起居室戶外四間臥室,其中兩間是套房,陽面套房帶不僅帶衛生間,還設計有帶衣帽間的書房和陽臺;三層設三間臥室,同樣設一間套房,預留一間娛樂室、一間活動室和東西兩處露臺。 四開間的三層設計方案,共設9間臥室,其中一間大套房,三間小套房,另有復式客廳和休閑娛樂的場所,布局合理功能齊全。
圖紙之家-專注農村別墅/自建房設計18年,集合國內200余位經驗豐富的設計師,被評為口碑最好的農村建筑設計公司! |

占地90平新中式經濟二層小別墅自建房設計圖,僅15萬
占地:89.3平方米
超漂亮的二層別墅設計圖,外觀對稱設計,建好很大氣
占地:255平方米
最漂亮的農村二層小樓設計圖紙,簡約又大氣時尚
占地:120平方米
雙拼豪華高端三層別墅設計圖,外觀效果圖大氣
占地:300平方米
二層精美偏法式風格別墅設計圖,不但顏值高,品質還高
占地:154.17平方米
好看又簡單的二層樓房設計圖紙,戶型還實用
占地:150平方米
時尚四開間二層農村別墅,經典大氣,引領建房新潮流!
占地:159.6平方米
豪華三層別墅設計圖紙,全套施工方案帶效果圖
占地:130平方米
農村三層15萬自建房圖,小戶型別墅設計方案圖
占地:60平方米
帶地下室的三層歐式別墅戶型設計圖,帶地下室農村自建房
占地:139.256平方米
占地110平米兩層半農村房子設計圖,簡單實用
占地:110.25平方米
100平簡單三層房屋設計圖紙,新農村自建推薦圖紙
占地:100平方米
農村五間房子設計圖,大戶型別墅設計圖推薦
占地:240平方米
30萬以下的經典二層新農村別墅設計圖紙及效果圖,簡單大氣
占地:170平方米
面寬18米二層新中式別墅圖紙設計,復式戶型,帶堂屋
占地:269.83平方米
三層新農村140平方米房屋設計圖紙,全套施工圖及效果圖
占地:140平方米
簡單平房農村自建一層別墅設計圖,時尚大氣,造價經濟
占地:166平方米
兩戶250平方米農村豪華歐式三層兄弟雙拼別墅設計圖
占地:251平方米
農村三層帶地下室住宅設計圖及圖片,房內設計了兩個套間
占地:210平方米
150平方米大平層別墅設計圖,時尚大氣舒適實用
占地:149.43平方米
推薦:10套新農村自建房設計圖,2026年最新設計
閱讀次數:4825737次
100套鄉村別墅圖片大全,2026年最新設計
閱讀次數:2492203次
6款農村蓋一層平房的設計圖,10萬元就能建起來
閱讀次數:1852637次
這11個一層農村自建房別墅火爆了朋友圈!我最喜歡戶型十!你呢
閱讀次數:750268次
農村6萬元建一層小別墅圖,你敢相信嗎
閱讀次數:567686次
農村5萬塊就能自建房,6套普通房子設計圖分享,你沒看錯!
閱讀次數:419410次
8套農村漂亮三間平房圖片,非常適合在農村修建!
閱讀次數:411197次
農村自建房化糞池怎么做?附方案及施工過程
閱讀次數:391783次
農村一層三間平房設計圖,告別土氣養老房,讓人忍不住點贊
閱讀次數:350581次
新農村二層樓房圖片造價12萬,挑一套回家建房吧!
閱讀次數:349126次
