圖紙介紹:兩戶250平方米農村豪華歐式三層兄弟雙拼別墅設計圖,單戶125平方米左右,豪華型的三層雙拼戶型,外觀大氣經典,將獨棟豪宅的經典裝飾應用到雙拼戶型,門廳、雕花、立柱各種裝飾齊全,外墻用豪華的大理石和墻磚,效果就是不一樣,顏色選用一派富貴氣息,建筑整體完美。
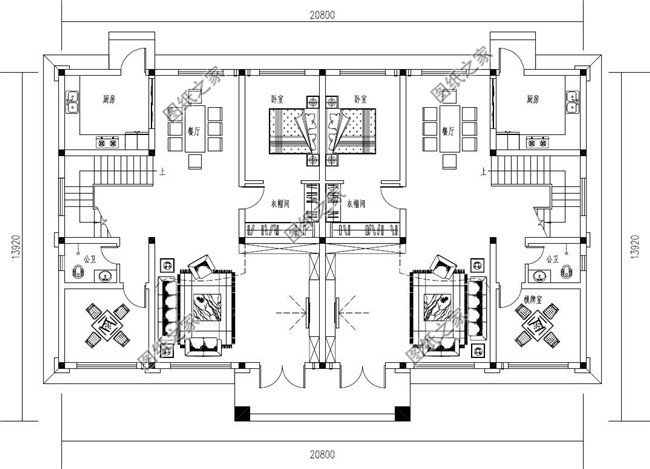
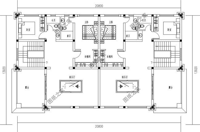
占地面積:20.8m*13.92m,251平方米左右,單戶125平左右;
建筑層高:三層;
建筑高度:13.45米(含屋頂);
設計功能:
一層:客廳、廚房、餐廳、棋牌室、臥室(帶衣帽間)、衛生間;
二層:客廳上空、臥室(帶衣帽間衛生間)、臥室、衛生間、陽臺;
三層:臥室(帶衣帽間衛生間)、臥室、娛樂廳、衛生間、露臺;
圖紙目錄:
建 筑 圖:建筑施工說明、建筑構造設計說明、一層平面圖、二層平面圖、三層平面圖、屋頂平面圖、正立面圖、背立面圖、左立面圖、右立面圖、1-1剖面圖、樓梯大樣圖、節點大樣圖、門窗大樣圖、門窗表等;
結 構 圖:結構設計說明、大樣圖、基礎平面布置圖、一層柱配筋圖、二層柱配筋圖、三層柱配筋圖、一層頂梁平法施工圖、二層頂梁平法施工圖、頂層梁平法施工圖、一層頂板結構平面圖、二層頂板結構平面圖、頂層板結構平面圖、樓梯配筋圖等;
給排水圖:給排水設計說明、一層給排水平面圖、二層給排水平面圖、三層給排水平面圖、衛生間大樣圖、給排水系統圖等;
電 氣 圖:電氣設計說明、電氣設備材料表、等電位聯結做法、配電系統圖、弱電系統圖、配電干線系統圖、一層照明平面圖、二層照明平面圖、三層照明平面圖、一層插座平面圖、二層插座平面圖、三層插座平面圖、一層弱電平面圖、二層弱電平面圖、三層弱電平面圖、基礎接地平面圖、屋頂防雷平面圖等
本方案為A3施工圖+彩色效果圖,拿到即可施工。
































































































