
|
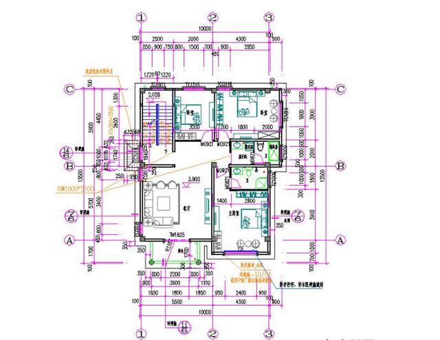
現今城市房價節節攀升,很多人即使有了錢,想要買上地段好的房子也需排隊搖號,于是有不少人選擇回農村自建房,這樣不僅能蓋上寬敞大氣的房屋,還能根據自己的喜好來設計戶型,經濟實惠,可節約不少成本,今天小編給大家分享一款35萬三層10×14米農村簡約大氣自建房圖紙(附全套CAD施工圖)。 圖紙詳情 層數: 三層 結構形式: 框架結構 主體造價: 35萬 開間: 10米 進深: 13.5米 占地面積: 135平方米 建筑面積: 362平方米
效果圖 首先這款戶型還是屬于比較簡單大氣的,簡單的歐式風格,沒有太復雜的設計,施工起來難度不高。其次該戶型利用超大聯體通窗玻璃為房屋外觀增添了一絲光彩,看起來更時尚大氣。屋頂的大露臺設計完全是為了滿足農村的晾曬及賞景需求,也可以打造一個陽光花房,空閑的時候可以約朋友喝喝茶,聊聊天。 設計功能
一層平面圖 一 層: 老人房(附衛生間)、大廳、儲藏間、品茶室、廚房、餐廳、洗手間
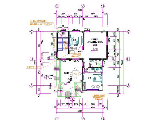
二層平面圖 二 層: 主臥室(附衛生間)、2臥室、客廳、洗手間、陽臺
三層平面圖 三 層: 臥室(附衛生間)、臥室、屋面露臺、家庭活動室(健身房、家庭影院、卡拉ok間) 圖紙之家-專注農村別墅/自建房設計18年,集合國內200余位經驗豐富的設計師,被評為口碑最好的農村建筑設計公司! |

鄉村一層帶閣樓歐式小別墅,“L”型七字設計戶型
占地:194.218平方米
新中式三層樓房設計圖,外觀精致布局也是相當的樸實
占地:140平方米
2026新中式農村三層別墅圖,外觀漂亮,看一眼就愛上
占地:240平方米
農村養老房還是一層好,帶閣樓的一層房子設計圖
占地:135平方米
新農村帶陽臺三層樓房圖紙,占地180平米左右,豪華大氣
占地:180平方米
帶車庫三層自建別墅設計圖紙,客廳中空,外觀洋氣時尚,這款戶
占地:170平方米
農村二層半雙拼別墅設計圖,客廳中空,帶大露臺
占地:270平方米
農村三合院設計圖及效果圖,自建三合院圖紙
占地:470平方米
新農村自建二層樓房戶型設計圖,簡單大氣,外觀漂亮精致
占地:多種戶型
農村160平四間兩層樓房設計圖,全套施工圖+外觀效果圖片
占地:160平方米
3層20萬農村自建房設計圖,占地110平米
占地:110平方米
農村中式二層4開間別墅圖紙設計方案圖,帶車庫戶型
占地:198平方米
經典三層雙拼房屋設計圖,帶效果圖,戶型好,單戶面積120
占地:240平方米
占地70平方米的三層獨棟別墅設計圖,小戶型自建房屋效果圖
占地:70平方米左右
180平米農村二層小別墅設計圖,外觀漂亮,帶露臺
占地:180平方米
2026年新款一層住宅別墅設計圖紙,中式風格漂亮極了
占地:207平方米
200平米二層自建房別墅設計圖,外觀漂亮布局實用
占地:207.09平方米
一層自建別墅設計圖,占地70平不大功能很齊全,非常適合農村養
占地:69.61平方米
帶地下室的農村自建三層半歐式別墅設計圖,看著真豪氣!
占地:142.45平方米
新農村自建二層小樓圖,時尚大方,外型精美,室內布局也很贊
占地:137平方米
推薦:10套新農村自建房設計圖,2026年最新設計
閱讀次數:4825737次
100套鄉村別墅圖片大全,2026年最新設計
閱讀次數:2492203次
6款農村蓋一層平房的設計圖,10萬元就能建起來
閱讀次數:1852637次
這11個一層農村自建房別墅火爆了朋友圈!我最喜歡戶型十!你呢
閱讀次數:750268次
農村6萬元建一層小別墅圖,你敢相信嗎
閱讀次數:567686次
農村5萬塊就能自建房,6套普通房子設計圖分享,你沒看錯!
閱讀次數:419410次
8套農村漂亮三間平房圖片,非常適合在農村修建!
閱讀次數:411197次
農村自建房化糞池怎么做?附方案及施工過程
閱讀次數:391783次
農村一層三間平房設計圖,告別土氣養老房,讓人忍不住點贊
閱讀次數:350581次
新農村二層樓房圖片造價12萬,挑一套回家建房吧!
閱讀次數:349126次
