
|
每個人的審美不同,對于建房子,自然也是不同的家庭喜歡不同的戶型設計,選用自己喜歡的風格,心情肯定是愉悅的,住在自己挑選的戶型里,也會感覺更舒適,不論在外面工作有多辛苦勞累,回到家都會滿心歡喜。今天小編給大家分享一款20萬三層11×12米帶挑空客廳+套房4廳5臥農村自建別墅施工效果圖。 圖紙詳情 層數: 二層 結構形式: 磚混結構 主體造價: 20萬 開間: 10.8米 進深: 12.2米 占地面積: 130.84平方米 建筑面積: 232.58平方米
戶型點評 本戶型是簡歐風格,整體外觀設計精簡時尚,外觀經典,采用藍色屋頂,磚紅色及乳白色的外墻,底部是灰色墻磚,配色美觀大氣。戶型以實用為主,功能齊全,布局合理。有方格拼湊的超大落地窗、拱形門廊、挑空客廳、休息廳等,主臥配套,多露臺設計提供休閑空間。 設計功能
一層平面圖 一 層: 門廳、挑空客廳、廚房、餐廳、臥室(帶衛生間)、臥室、公衛
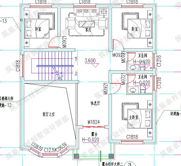
二層 二 層: 休息廳(帶露臺)、客廳、主臥室(帶衛生間)、次臥×2、公衛、露臺 圖紙之家-專注農村別墅/自建房設計18年,集合國內200余位經驗豐富的設計師,被評為口碑最好的農村建筑設計公司! |

農村建房二樓設計圖,占地百平帶配房設計,顏值高布局好
占地:103.11平方米
農村自建超漂亮中式四合院別墅設計圖,22X25米
占地:473平方米
經典小戶型雙拼二層新農村房屋住宅設計圖,含效果圖
占地:80平方米
新農村共用堂屋和樓梯的雙拼別墅設計圖紙,戶型布局空間利用率
占地:207平方米左右
12×12米農村二層經濟型自建房設計圖,設計了6間臥室
占地:140平方米
農村一層中式三合院太香了!白墻黛瓦,有院有景超宜居
占地:364.72平方米
自建房共堂屋雙拼別墅設計圖方案,三層挑空復式戶型
占地:199.5平方米左右
帶地下室二層雙拼別墅設計圖,兄弟和睦又省錢,全家人都滿意!
占地:308平方米
好看精致的三層自建房別墅設計圖,開間12米進深12米左右
占地:125.73平方米
占地180平方米二層鄉村小洋樓設計戶型圖及圖紙,外觀華麗
占地:180平方米
帶柴火房農村一層自建房設計圖,戶型布局接地氣
占地:126.29平方米
120平方房子設計圖帶效果圖,農村自建房戶型推薦
占地:120平方米
簡歐風格別墅設計圖帶外觀效果圖,三層140平米戶型方案
占地:140平方米
13x13米簡單二層帶閣樓最新別墅設計圖,精致美觀
占地:158.5平方米
全新農村簡歐風格三層房屋別墅效果圖,110和210兩個戶型,帶電梯
占地:多種戶型
45萬新中式二層雙拼自建房別墅設計圖,平屋頂設計
占地:210平方米
2026最受歡迎的三層農村小別墅設計圖紙,占地155平方米
占地:155平方米
農村四間一層房屋設計圖,160平方米,用來養老正合適!
占地:160平方米
新式三層別墅設計圖,客廳中空,占地125平米左右
占地:125平米
農村一層平房別墅設計圖,18米乘9米,實實在在的好戶型
占地:162平方米
推薦:10套新農村自建房設計圖,2026年最新設計
閱讀次數:4825737次
100套鄉村別墅圖片大全,2026年最新設計
閱讀次數:2492203次
6款農村蓋一層平房的設計圖,10萬元就能建起來
閱讀次數:1852637次
這11個一層農村自建房別墅火爆了朋友圈!我最喜歡戶型十!你呢
閱讀次數:750268次
農村6萬元建一層小別墅圖,你敢相信嗎
閱讀次數:567686次
農村5萬塊就能自建房,6套普通房子設計圖分享,你沒看錯!
閱讀次數:419410次
8套農村漂亮三間平房圖片,非常適合在農村修建!
閱讀次數:411197次
農村自建房化糞池怎么做?附方案及施工過程
閱讀次數:391783次
農村一層三間平房設計圖,告別土氣養老房,讓人忍不住點贊
閱讀次數:350581次
新農村二層樓房圖片造價12萬,挑一套回家建房吧!
閱讀次數:349126次
