
|
現在的農村可以說是是一年一個模樣了,最明顯的變化就在于房子和以前不一樣了,不再是一模一樣的平房,基本上家家戶戶都在建新房子,還建起了好多的別墅,所以現在的農村被稱為新農村。 今天給大家帶來的5套二層別墅設計,花錢不多,家家戶戶都能建。 第一套
正面效果圖
背面效果圖
鳥瞰圖 占地面積:15.2m*11.0m,160平方米左右; 建筑高度:9.8米(含屋頂); 設計功能: 一層戶型:客廳、餐廳、廚房、衛生間、主臥(帶衛生間)、樓梯間、車庫; 二層戶型:休閑廳、主臥(帶衛生間)、臥室x2、衛生間、陽臺x2、大露臺;
一層平面圖
二層平面圖
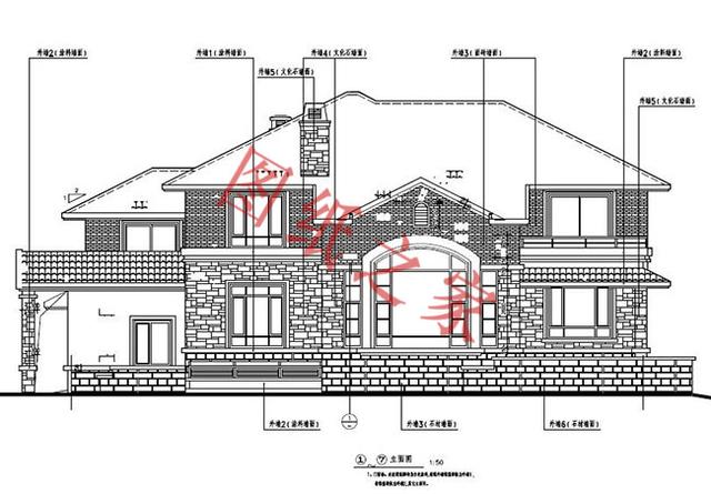
立面圖 第二套
正面效果圖
背面效果圖
鳥瞰圖 占地面積:16.5m*12.2m,200平方米左右; 建筑高度:9.4米(含屋頂); 設計功能: 一層戶型:客廳、主臥(帶衛生間)、臥室x2、衛生間、會客廳、餐廳、廚房、儲藏間; 二層戶型:客廳、臥室x2(帶衛生間)、臥室x2、健身房;
一層平面圖
二層平面圖
立面圖 第三套
正面效果圖
背面效果圖
鳥瞰圖 占地面積:9.34m*11.24m,105平方米左右; 建筑高度:8.1米(含屋頂); 設計功能: 一層戶型:客廳、餐廳、廚房、衛生間、臥室、儲物間; 二層戶型:客廳、臥室x2、書房、衛生間;
一層平面圖
二層平面圖
立面圖 第四套
別墅效果圖 占地面積:18.9m*15.3m,一層建筑面積235平方米左右; 建筑高度:9.00米(含屋頂); 設計功能: 地下戶型:活動室、傭人房、健身房、棋牌室、視聽室、衛生間、儲藏間;(地下層功能自定義) 一層戶型:門廳、客廳、餐廳、廚房、臥室、洗衣房、衛生間、走廊x2、車庫; 二層戶型:客廳上空、客廳、臥室x3(其中2個臥室有衛生間)、書房、衛生間、露臺x3;
地下室平面圖
一層平面圖
二層平面圖
立面圖 第五套
別墅效果圖 占地面積:11.1m*11.4m,125平方米左右; 建筑高度:7.90米(含屋頂); 結構形式:磚混結構; 設計功能: 一層戶型:門廳、客廳、臥室x2、廚房、餐廳、儲藏間、衛生間 二層戶型:主臥(帶衛生間)、臥室(帶衛生間)、露臺x2、花壇
一層平面圖
二層平面圖
立面圖 這5套別墅的設計圖,你最喜歡哪一套? 圖紙之家-專注農村別墅/自建房設計18年,集合國內200余位經驗豐富的設計師,被評為口碑最好的農村建筑設計公司! |

鄉下二層樓房住宅設計圖紙及效果圖,農村二層小洋樓
占地:140平方米
簡單漂亮實用的三層自建房設計圖,帶露臺,占地170平方米
占地:170平方米
小戶型徽派建筑別墅設計方案大全,三層別墅設計圖推薦
占地:95平方米
鄉村兩層半150平帶閣樓別墅房屋設計圖,客廳大、臥室多
占地:150平方米
農村17萬元一層自建別墅設計圖,外觀簡潔,戶型方正
占地:163平方米
預算10萬的簡單二層半別墅房屋設計圖,外觀簡單,造價低
占地:90平方米
新農村三層房屋cad建筑設計圖紙,磚混結構
占地:138平方米
農村二層L戶型農村別墅!設計圖簡約時尚又大氣,住著超舒適
占地:170.55平方米
全套歐式二層別墅設計cad圖紙,含效果圖,帶車庫
占地:211平方米
新中式農村自建房三層設計圖,外觀布局均滿分
占地:142.18平方米
110平房子設計圖,經典的農村自建房屋設計圖
占地:110平方米
2026新款四層樓房設計圖,占地120平方米左右,客廳中空
占地:120平方米
面寬20多米二層新中式雙拼別墅設計圖,外觀漂亮時尚
占地:246.66平方米左
新農村中式二層樓房設計圖紙及效果圖,125,150,170三個戶型可行
占地:多種戶型
造價25萬農村二層小別墅設計圖,外觀效果圖美觀、精致
占地:165平方米
被包工頭夸爆的二層別墅戶型!建好未來幾年必火
占地:189.98平方米
占地百平農村三層戶型方案,簡約實用,獨具特色,理想新居等你
占地:105.61平方米
農村超級好看的現代風格兩層小樓圖,清新優雅
占地:多種戶型
鄉下建房一層戶型圖,一層住宅設計圖紙,誰說一層平房不能叫別
占地:200平方米
新款農村三拼三戶別墅設計圖及效果圖三層戶型,外觀靚麗新穎
占地:360平方米
推薦:10套新農村自建房設計圖,2026年最新設計
閱讀次數:4825737次
100套鄉村別墅圖片大全,2026年最新設計
閱讀次數:2492203次
6款農村蓋一層平房的設計圖,10萬元就能建起來
閱讀次數:1852637次
這11個一層農村自建房別墅火爆了朋友圈!我最喜歡戶型十!你呢
閱讀次數:750268次
農村6萬元建一層小別墅圖,你敢相信嗎
閱讀次數:567686次
農村5萬塊就能自建房,6套普通房子設計圖分享,你沒看錯!
閱讀次數:419410次
8套農村漂亮三間平房圖片,非常適合在農村修建!
閱讀次數:411197次
農村自建房化糞池怎么做?附方案及施工過程
閱讀次數:391783次
農村一層三間平房設計圖,告別土氣養老房,讓人忍不住點贊
閱讀次數:350581次
新農村二層樓房圖片造價12萬,挑一套回家建房吧!
閱讀次數:349126次
