
|
以前住著陳舊的老房子,很羨慕別人能住新房。現在自己要建房子了,卻不知道要把房子建成什么樣。現在可不像以前一樣對房屋也沒有選擇的余地。大家的生活條件好了,每個人都希望自己的房子美觀大氣、經濟適用,而且獨一無二。 下邊給大家介紹6套農村三層別墅設計,來看看哪款是最適合你的吧! 第一套
正面效果圖
背面效果圖
鳥瞰圖 占地面積:14.1m*10.0m,一層占地140平方米左右(含外門庭); 建筑高度:12.1米(含屋頂); 設計功能: 一層戶型:客廳、廚房、餐廳、臥室×2、衛生間、車庫; 二層戶型:客廳、臥室(帶衛生間,衣帽間)、臥室x2、衛生間、陽臺; 三層戶型:臥室(帶衛生間,衣帽間)、臥室、衛生間、露臺;
一層平面圖
二層平面圖
三層平面圖
第二套
正面效果圖
背面效果圖
鳥瞰圖 占地面積:14.8m*12.6m,一層占地150平方米左右(含外門庭); 建筑高度:11.9米(含屋頂); 設計功能: 一 層:客廳、廚房、餐廳、臥室、娛樂室、衛生間×2、土灶房; 二 層:客廳上空、客廳、臥室(帶衣帽間、衛生間)、臥室、衛生間、陽臺、露臺; 三 層:臥室x2、衛生間、儲藏間、大露臺;
一層平面圖
二層平面圖
三層平面圖
立面圖 第三套
正面效果圖
背面效果圖
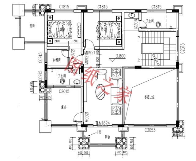
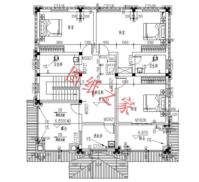
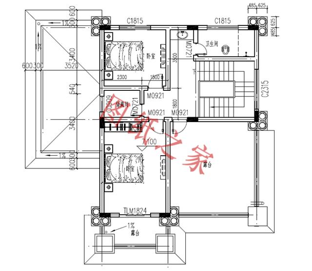
鳥瞰圖 占地面積:11.6m*14.1m,一層占地150平方米左右(含外門庭); 建筑高度:12.8米(含屋頂); 設計功能: 一層:客廳、廚房、餐廳、臥室、臥室×2、衛生間; 二層:臥室(帶衛生間)、臥室、書房、衛生間、陽臺; 三層:休閑空間、臥室(帶衛生間)、臥室x2、衛生間、洗衣房、大露臺、陽臺;
一層平面圖
二層平面圖
三層平面圖
立面圖 第四套
正面效果圖
背面效果圖
鳥瞰圖 占地面積:15.4m*13.9m,一層占地190平方米左右(含外門庭); 建筑高度:13.05米(含屋頂); 設計功能: 一 層:堂屋、客廳、廚房、餐廳、臥室(帶衛生間)、臥室、衛生間、儲藏室; 二 層:客廳上空、起居室、臥室(帶衛生間)、臥室x3、衛生間、露臺; 三 層:臥室(帶衛生間)、臥室、設備用房、大露臺;
一層平面圖
二層平面圖
三層平面圖
立面圖 第五套
正面效果圖
背面效果圖
鳥瞰圖 占地面積:10.1m*8.6m,一層占地86平方米左右(含外門庭); 建筑高度:10.5米(含屋頂); 設計功能: 一層:客廳、廚房、餐廳、臥室、衛生間; 二層:客廳上空、臥室x2、衛生間、陽臺; 三層:臥室x2、衛生間、大露臺;
一層平面圖
二層平面圖
三層平面圖
立面圖
圖紙之家-專注農村別墅/自建房設計18年,集合國內200余位經驗豐富的設計師,被評為口碑最好的農村建筑設計公司! |

240平方米新農村漂亮的兄弟雙拼別墅設計圖紙,單戶120平
占地:239平方米
田園風格別墅設計圖紙及效果圖,三層鄉村小別墅設計方案
占地:166.4平方米
好看實用農村2開間二層別墅設計圖,主體19萬
占地:117.36平方米
帶車庫四層別墅外觀效果圖及設計圖紙,戶型方正通透
占地:115平方米
160平方米左右二層自建別墅設計圖,對稱設計,23萬建好
占地:157平方米左右
全網都在抄的二層別墅!爆款12米面寬設計戶型太實用
占地:139.51平方米
80平方米二層房屋設計圖,造價10萬左右
占地:80平方米
農村最漂亮二層歐式別墅設計圖,面寬16.5米(含車庫)
占地:180.366
復式三層帶車庫簡歐小別墅設計圖,農村三層房屋設計圖
占地:126平方米
新中式一層別墅設計圖紙,農村自建平房戶型方案圖
占地:183.7平方
150平米農村兩層樓房設計圖,簡單大氣時尚
占地:150平方米
帶雙車庫的新中式二層四合院別墅設計圖,戶型布局實用
占地:321平方米
新中式二層農村別墅設計圖紙及外觀圖,面寬15米左右
占地:148.86平方米
帶車庫徽派風格三層別墅房屋設計圖,新農村住宅設計推薦
占地:140平方米
農村27萬二層自建別墅設計圖,占地140平米左右,戶型極好
占地:140平方米
農村二間二層小別墅設計方案,精而美的經典樣式不容錯過
占地:115.32平方米
最美中式農村別墅二層三間的房子圖,帶土灶房,娛樂室,大露臺
占地:180平方米
農村三層帶露臺、帶車庫房屋設計圖,含外觀圖片
占地:155平方米
新中式農村三層房屋效果圖及施工圖,140平方米左右
占地:140平方米
新農村田園風格兩層半別墅設計圖,外觀造型非常漂亮
占地:147.8平方米
推薦:10套新農村自建房設計圖,2026年最新設計
閱讀次數:4825737次
100套鄉村別墅圖片大全,2026年最新設計
閱讀次數:2492203次
6款農村蓋一層平房的設計圖,10萬元就能建起來
閱讀次數:1852637次
這11個一層農村自建房別墅火爆了朋友圈!我最喜歡戶型十!你呢
閱讀次數:750268次
農村6萬元建一層小別墅圖,你敢相信嗎
閱讀次數:567686次
農村5萬塊就能自建房,6套普通房子設計圖分享,你沒看錯!
閱讀次數:419410次
8套農村漂亮三間平房圖片,非常適合在農村修建!
閱讀次數:411197次
農村自建房化糞池怎么做?附方案及施工過程
閱讀次數:391783次
農村一層三間平房設計圖,告別土氣養老房,讓人忍不住點贊
閱讀次數:350581次
新農村二層樓房圖片造價12萬,挑一套回家建房吧!
閱讀次數:349126次
