
|
在城市里待的時間久了,就有些想念寧靜的故鄉。現在的農村可和以前不一樣了,各項基礎措施不斷提升,住在村里的舒適方便程度一點也不低。所以很多人都會選擇回農村修建別墅,畢竟多年在外打拼為的就是想擁有一棟自己的房子。在農村建別墅,經濟實用、外觀也不必城里的商品房差,根本不需要猶豫嗎! 今天給大家介紹5套二層別墅設計,簡單又優秀,快來看看吧! 第一套
正面效果圖
背面效果圖
鳥瞰圖 占地面積:9.8m*12m,110平方米左右; 建筑高度:9.8米(含屋頂); 設計功能: 地下室:儲藏間、雜物間、書房; 一層戶型:客廳、餐廳、廚房、衛生間、臥室(臥室、衛生間、衣帽間)、; 二層戶型:主臥(帶衛生間、衣帽間)、臥室x2、衛生間、陽臺x2;
地下平面圖
一層平面圖
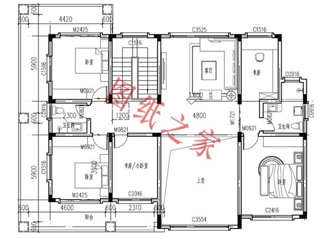
二層平面圖
立面圖 第二套
正面效果圖
背面效果圖
鳥瞰圖 占地面積:12.4m*8.0m,100平方米左右; 建筑高度:9.0米(含屋頂); 設計功能: 一層戶型:客廳、餐廳、廚房、衛生間、臥室×2; 二層戶型:休閑廳、、臥室、衛生間、陽臺、大露臺;
一層平面圖
二層平面圖
立面圖 第三套
正面效果圖
背面效果圖
鳥瞰圖 占地面積:17.1m*11.4m,180平方米左右; 建筑高度:9.3米(含屋頂); 設計功能: 一層戶型:門廳、客廳、餐廳、廚房、衛生間、主臥(帶衛生間)、臥室×2; 二層戶型:客廳上空、客廳、書房、臥室×3、衛生間×2;
一層平面圖
二層平面圖
立面圖 第四套
正面效果圖
背面效果圖
鳥瞰圖 占地面積:15.2m*11.6m,180平方米左右; 建筑高度:11米(含屋頂); 設計功能: 一層戶型:客廳、餐廳、廚房、衛生間、主臥(帶衛生間)、臥室; 二層戶型:臥室(帶衛生間、衣帽間)×2、臥室(帶衛生間)×2、洗衣房、露臺; 屋頂戶型:露臺
一層平面圖
二層平面圖
屋頂平面圖
立面圖 第五套
正面效果圖
鳥瞰圖 占地面積:10.5m*11.1m,120平方米左右; 建筑層高:二層; 建筑高度:9.1米(含屋頂); 設計功能: 一層戶型:客廳、餐廳、廚房、衛生間、臥室×3; 二層戶型:起居室、臥室x4、衛生間、書房、陽臺;
一層平面圖
一層平面圖
立面圖
圖紙之家-專注農村別墅/自建房設計18年,集合國內200余位經驗豐富的設計師,被評為口碑最好的農村建筑設計公司! |

帶車庫二層165平別墅房屋設計圖,含效果圖
占地:165平方米
240平方米新農村四合院兩層樓房施工設計圖紙帶外觀圖
占地:234平方米
13X13米新農村中式風三層別墅設計方案,內部布局緊湊溫馨
占地:168.43平方米
高顏值農村二層別墅設計圖,顏值在線造價不高,建房好選擇!
占地:216.93平方米
農村中式一層合院別墅設計圖,帶小院子規劃設計
占地:202平方米左右
農村一層中式三合院別墅設計圖,戶型經典實用,19米乘15米
占地:243.21平方米
100平復式三層別墅房屋設計圖,客廳挑高,采光好,臥室多
占地:100平方米
帶車位的鄉村二層別墅建筑結構設計圖,全套施工圖140平
占地:139.85平方米
165平方米農村帶陽光房的二層小別墅設計圖紙帶外觀圖18.16米*9.
占地:166平方米
廚房在前,簡約歐式二層農村自建別墅設計圖,戶型個性
占地:143.69平方米
面寬10米高品質二層別墅設計方案,造價不高顏值很高,非常適合
占地:137.63平方米
對稱設計二層歐式別墅設計圖,優雅時尚有品位
占地:151.85平方米
農村三層中式仿古別墅設計圖紙,中國風自建房戶型
占地:158.64平方米
2款現代風格農村兩層別墅設計圖,時尚漂亮
占地:多戶型可選
人氣頗高的三層新中式別墅方案,五種戶型,五種尺寸
占地:120-165平方米
平頂新中式三層農村別墅設計圖,最適合鄉村自建占地150平米
占地:150.35平方米
二層農村兄弟雙拼別墅設計圖,一墻之隔互不干擾,鄰居看了都喜
占地:164.24平方米
五間兩層農村自建房設計圖,大門居中真氣派,空間寬敞生活質量
占地:219.94平方米
中國最美建筑四合院設計圖紙及效果圖,顏值爆棚
占地:152平方米左右
130平新農村二層住宅設計圖,外觀精致、漂亮
占地:130平方米
推薦:10套新農村自建房設計圖,2026年最新設計
閱讀次數:4825737次
100套鄉村別墅圖片大全,2026年最新設計
閱讀次數:2492203次
6款農村蓋一層平房的設計圖,10萬元就能建起來
閱讀次數:1852637次
這11個一層農村自建房別墅火爆了朋友圈!我最喜歡戶型十!你呢
閱讀次數:750268次
農村6萬元建一層小別墅圖,你敢相信嗎
閱讀次數:567686次
農村5萬塊就能自建房,6套普通房子設計圖分享,你沒看錯!
閱讀次數:419410次
8套農村漂亮三間平房圖片,非常適合在農村修建!
閱讀次數:411197次
農村自建房化糞池怎么做?附方案及施工過程
閱讀次數:391783次
農村一層三間平房設計圖,告別土氣養老房,讓人忍不住點贊
閱讀次數:350581次
新農村二層樓房圖片造價12萬,挑一套回家建房吧!
閱讀次數:349126次
