
|
在這個飛速發展的時代里,很多農村的年輕人都去城市發展,在城里買房買車養兒育女。不是不想把兩老接來照顧,但是很多老人已經習慣了農村的青山綠水,可以每天打牌、種菜、養花,這種怡然自得的生活。這種情況下在老家給父母建一棟養老別墅是個不錯的選擇。 下邊給大家介紹6套三層別墅設計,這么好的房子就別猶豫了! 第一套
正面效果圖
背面效果圖
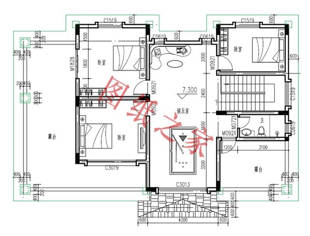
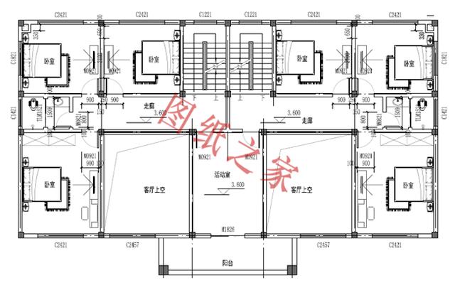
鳥瞰圖 占地面積:22.2m*13.1m,250平方米左右,單戶125平左右; 建筑高度:12.2米(含屋頂); 設計功能: 一層:中堂、客廳、餐廳、廚房、臥室、衛生間、儲藏間; 二層:客廳上空、臥室×3、衛生間、共用(活動室、陽臺); 三層:臥室、棋牌室、衛生間、露臺;
一層平面圖
二層平面圖
立面圖 第二套
正面效果圖
背面效果圖
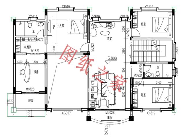
鳥瞰圖 占地面積:13.3m*12.7m,一層占地180平方米左右(含外門庭); 建筑高度:14.0米(含屋頂); 設計功能: 一層:客廳、廚房、餐廳、臥室(帶衛生間)、臥室、衛生間; 二層:客廳上空、臥室(帶衛生間)×3、影音室、露臺; 三層:起居室、書房、臥室(帶衛生間)×3;
一層平面圖
二層平面圖
三層平面圖
立面圖 第三套
正面效果圖
背面效果圖
鳥瞰圖 占地面積:12.7m*13.2m,一層占地170平方米左右(含外門庭); 建筑高度:12.1米(含屋頂); 設計功能: 一層:堂屋、客廳、廚房、餐廳、臥室×2、衛生間; 二層:客廳上空、臥室(帶衛生間、陽臺)、臥室x2、衛生間、陽臺; 三層:起居室、臥室x2、衛生間、大露臺×2;
一層平面圖
二層平面圖
三層平面圖
立面圖 第四套
正面效果圖
背面效果圖
鳥瞰圖 占地面積:16.2m*11.2m,一層占地160平方米左右(含外門庭); 建筑高度:12.8米(含屋頂); 設計功能: 一層:客廳、廚房、餐廳、老人房(衛生間)、臥室、雜物間、衛生間、車庫; 二層:小客廳、主臥(帶衛生間,衣帽間,書房,陽臺)、臥室x2、茶室、衛生間、陽臺; 三層:臥室×4、娛樂室、衛生間、露臺×2;
一層平面圖
二層平面圖
三層平面圖
立面圖 第五套
正面效果圖
背面效果圖
鳥瞰圖 占地面積:24.2m*12.7m,270平方米左右,單戶135平左右; 建筑高度:11.1米(含屋頂); 設計功能: 一層:客廳、餐廳、廚房、臥室(帶衛生間)、衛生間; 二層:客廳上空、臥室(帶衛生間)、臥室×2、衛生間、休閑區; 三層:臥室×3、衛生間、活動區、露臺;
一層平面圖
二層平面圖
三層平面圖
立面圖 第六套
正面效果圖
背面效果圖
鳥瞰圖 占地面積:9.5m*10.0m,一層占地90平方米左右(含外門庭); 建筑高度:10.7米(含屋頂); 設計功能: 一層:客廳、廚房、餐廳、臥室、衛生間、車庫; 二層:臥室(帶衣帽間)、臥室x2、衛生間、書房、儲藏間、陽臺; 三層:臥室(帶衣帽間)、臥室、活動室、衛生間、大露臺;
一層平面圖
二層平面圖
三層平面圖
立面圖
圖紙之家-專注農村別墅/自建房設計18年,集合國內200余位經驗豐富的設計師,被評為口碑最好的農村建筑設計公司! |

農村自建超漂亮中式四合院別墅設計圖,22X25米
占地:473平方米
人氣最旺的二層半別墅設計圖紙,復式挑空二層半自建房
占地:122.679平方米
新農村三層房屋設計圖紙(含效果圖),農村小別墅圖紙推薦
占地:116.15平方米
農村小別墅設計圖二層,占地不大顏值高,最適合農村建造。
占地:108.66平方米
農村三層半自建房子效果圖及設計圖,戶型占地90平方米左右
占地:92.17平方米
歐式復式型三層別墅施工設計圖紙及效果圖大全
占地:164平方米
占地90平新中式經濟二層小別墅自建房設計圖,僅15萬
占地:89.3平方米
好看又簡單的二層樓房設計圖紙,戶型還實用
占地:150平方米
簡歐式三層小別墅設計圖,帶地下室,客廳中空,占地150平米
占地:150平方米
120平方米農村四層別墅設計圖,含全套施工圖
占地:120平方米
新農村共用堂屋和樓梯的雙拼別墅設計圖紙,戶型布局空間利用率
占地:207平方米左右
一層中式仿古三合院設計圖,實用又大氣,百年不過時
占地:366.67平方米
2026最美三層別墅設計圖紙及效果圖,十佳最美農村別墅
占地:151平方米
簡單大氣的農村二層樓設計圖,二層歐式農村別墅設計圖
占地:180平方米
200多平方米新農村雙拼別墅設計圖紙,堂屋和樓梯共用
占地:207平方米左右
12.8x10米二層自建房別墅設計圖,大氣美觀實用,建造無憂
占地:128平方米
四層雙拼豪華別墅設計圖及外觀效果圖,貴族氣質爆棚
占地:188.5平方米
大二間三層別墅戶型圖,三層新農村自建房設計圖紙及效果圖
占地:116平方米
12x9米自建一層小別墅設計圖,占地不大造價低,簡單舒適人人夸
占地:108.36平方米
農村別墅220-240平米的雙拼自建房設計圖,屋頂帶老虎窗
占地:220平方米
推薦:10套新農村自建房設計圖,2026年最新設計
閱讀次數:4825737次
100套鄉村別墅圖片大全,2026年最新設計
閱讀次數:2492203次
6款農村蓋一層平房的設計圖,10萬元就能建起來
閱讀次數:1852637次
這11個一層農村自建房別墅火爆了朋友圈!我最喜歡戶型十!你呢
閱讀次數:750268次
農村6萬元建一層小別墅圖,你敢相信嗎
閱讀次數:567686次
農村5萬塊就能自建房,6套普通房子設計圖分享,你沒看錯!
閱讀次數:419410次
8套農村漂亮三間平房圖片,非常適合在農村修建!
閱讀次數:411197次
農村自建房化糞池怎么做?附方案及施工過程
閱讀次數:391783次
農村一層三間平房設計圖,告別土氣養老房,讓人忍不住點贊
閱讀次數:350581次
新農村二層樓房圖片造價12萬,挑一套回家建房吧!
閱讀次數:349126次
