
|
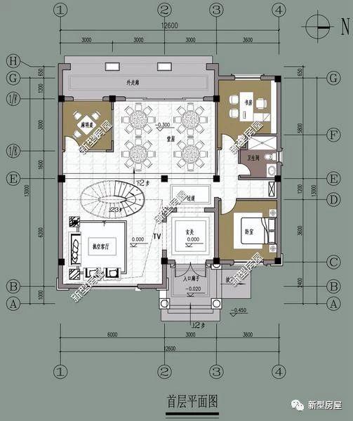
看過那么多不同的農村別墅設計,大家覺得什么風格最適合農村呢?時尚個性的現代別墅,古典雅韻的中式小院,還是大氣經典的歐式洋樓,今天3種不同風格都有,趕緊來挑選你喜歡的款式吧! 第1套:24x26米現代別墅 這是一套現代風格的農村別墅設計,建筑立面線條流暢,多設玻璃窗,帶來通透時尚感,80后的最愛~
占地尺寸:24.54m*26.2m 占地面積:456㎡ 建筑面積:844㎡ 總 高 度:13.56m 建筑情況:共設7室 4廳 9衛 1廚房 1電梯 1車庫 1農居房 1沖涼房 1玄關 1儲藏 5陽臺 5露臺 4衣帽間 2書房 1佛堂
第2套:11x12米田園別墅 外墻全采用文化石裝飾,在鄉村環境中很是惹眼,不會千篇一律。
占地尺寸:12.04m*11.24m 占地面積:120㎡ 建筑面積:198㎡ 總 高 度:9.77m(屋脊) 建筑情況:共設4室 2衛 2廳 1小廳 1廚 1玄關 1陽臺 1露臺
第3套:12x12米四層別墅 部分農村家庭人口較多,或者幾兄弟一起建造時,則可選擇這套4層別墅,全家住在一起,生活卻又分開,滿足農村家庭所需。
占地尺寸:12.74m*12.58m 占地面積:147㎡ 建筑面積:541㎡ 總 高 度:14.6m 建筑情況:共設7室 7衛 3廳 3起居室 1廚房 1茶室 1備用房 2書房 3陽臺 1洗衣間 2露臺
第4套:13x14米歐式別墅 素雅大氣的外觀,外墻可選用天然石材或真石漆裝飾,以達到歐式奢美簡約的特點。
占地尺寸:13.44m*14.24m 占地面積:155㎡ 建筑面積:382㎡ 總 高 度:12.95m 建筑情況:共設5室 5廳 6衛 1廚 1涼亭 1露臺
第5套:12x14米鄉村別墅 最最經典的農村別墅外觀,選用了紅黃配色,甚是喜慶,經典實用造價低,是最適合農村自建房的戶型。
占地尺寸:12.8m*14m 占地面積:162㎡ 建筑面積:270㎡ 總 高 度:12.28m 建筑情況:共設5室 1堂屋 2廳 1書房 1娛樂室 1玄關 2衛 2陽臺 1露臺
![]()
圖紙之家-專注農村別墅/自建房設計18年,集合國內200余位經驗豐富的設計師,被評為口碑最好的農村建筑設計公司! |

新中式農村兄弟合建三層雙拼別墅全套設計圖紙,3款戶型方案
占地:多種戶型
農村一層雙拼別墅設計方案,豐富的室內空間配置,滿足您的生活
占地:358.46平方米
帶車庫二層別墅設計圖及效果圖,帶車庫的農村二層樓房推薦
占地:123平方米
簡單實用的二層雙拼別墅設計圖,總占地150平米左右,雙拼房屋
占地:150平方米MB
農村三室二廳一層小平房設計圖,簡單實用型
占地:113.4平方米
13X13米新農村中式風三層別墅設計方案,內部布局緊湊溫馨
占地:168.43平方米
歐式四層(三層半)獨棟別墅設計圖復式,設計豪華時尚
占地:194平方米
新中式一層合院別墅圖,15米×15.8米,主體造價低至15萬
占地:183.08平方米
普通簡單的平屋頂二層房子設計,造價低施工簡單
占地:151.04平方米
帶閣樓的一層半平房設計圖,比樓房還舒適,12米×13米
占地:170.1平方米
帶車庫的三層房屋方案設計圖,帶堂屋全套圖紙
占地:163.8平方米
農村四間一層房屋設計圖,160平方米,用來養老正合適!
占地:160平方米
農村兄弟雙拼別墅三層,美觀氣派,室內布局合理實用
占地:300平方米
150平方米農村二層房屋建筑設計圖,15.2x9.4米
占地:148平方米
簡約大氣四開間二層自建房設計圖,16x10米,經典耐看高顏值
占地:160平方米
80平方米二層房屋設計圖,造價10萬左右
占地:80平方米
超實用的農村一層別墅設計圖,經濟實惠養老自住都不錯,
占地:128.35平方米
帶堂屋設計一層三合院設計圖,白墻黛瓦古韻悠悠,比高層舒服接
占地:179.37平方米
200平米左右二層樓房設計圖,外觀看著舒服、布局住著坦然
占地:190平方米
190平方米新農村三層(二層半)雙拼房屋設計圖紙,兄弟合建
占地:192平方米左右
推薦:10套新農村自建房設計圖,2026年最新設計
閱讀次數:4825737次
100套鄉村別墅圖片大全,2026年最新設計
閱讀次數:2492203次
6款農村蓋一層平房的設計圖,10萬元就能建起來
閱讀次數:1852637次
這11個一層農村自建房別墅火爆了朋友圈!我最喜歡戶型十!你呢
閱讀次數:750268次
農村6萬元建一層小別墅圖,你敢相信嗎
閱讀次數:567686次
農村5萬塊就能自建房,6套普通房子設計圖分享,你沒看錯!
閱讀次數:419410次
8套農村漂亮三間平房圖片,非常適合在農村修建!
閱讀次數:411197次
農村自建房化糞池怎么做?附方案及施工過程
閱讀次數:391783次
農村一層三間平房設計圖,告別土氣養老房,讓人忍不住點贊
閱讀次數:350581次
新農村二層樓房圖片造價12萬,挑一套回家建房吧!
閱讀次數:349126次
