
|
現在農村里家家戶戶基本上都在建新房,但是建造的水平真的是參差不齊,有的丑出了新高度,有的卻漂亮的一塌糊涂,所以一款好的設計圖紙非常重要。 在別墅的設計與造型中,要論大氣感,選擇復式的設計毫無疑問是最佳的,因為復式的設計會讓別墅的整體空間顯得十分大氣。因為客廳樓上與樓下架空想通,除了讓房子更顯大氣之外,還會讓通風采光更加有優勢。這15款復式客廳別墅, 經濟實用,美觀大氣,下面我們就一起來看看吧。 編號DC0205:復式三層帶車庫
主體造價: 25-30萬 開間: 13.4米 進深: 10.2米 占地面積: 119平方米 建筑面積: 297.6平方米 首層戶型:
一 層:入口玄關、客廳、廚房、餐廳、衛生間、車庫 二 層:起居室、臥室(附陽臺)、臥室、書房、衛生間 三 層:起居室、主臥(附陽臺)、臥室(附陽臺)、書房、衛生間、露臺 編號DC0353:復式三層帶露臺
主體造價: 40-45萬 開間: 14米 進深: 13.8米 占地面積: 196.66平方米 建筑面積: 434.81平方米 首層戶型:
一 層:走廊、堂屋、客廳(中空)、會客室(附內陽臺)、臥室(附衛生間)、廚房、餐廳、衛生間 二 層:小客廳(附陽臺)、臥室(附衛生間,露臺)、臥室(附書房)、臥室、衛生間 三 層:活動室、臥室(附衛生間)、臥室(附書房)、衛生間、陽臺、露臺
編號DC0361:簡歐復式三層帶露臺
主體造價: 30-35萬 開間: 11米 進深: 12米 占地面積: 138.34平方米 建筑面積: 351.69平方米 首層戶型:
一 層:門廳、客廳(中空)、臥室(附衛生間)、臥室、廚房、餐廳、衛生間 二 層:客廳(附露臺)、臥室(附衛生間,陽臺)、臥室(附書房)、臥室、衛生間 三 層:健身房、臥室(附衛生間)、臥室、衛生間、露臺 編號DC0370:歐式三層小別墅
主體造價: 30-35萬 結構形式: 框架結構 開間: 11.42米 進深: 11.22米 占地面積: 115.18平方米 建筑面積: 313.68平方米 首層戶型:
二層戶型:
三層戶型:
一 層:門廳、客廳(中空)、臥室、廚房、餐廳、衛生間 二 層:起居室(附陽臺)、3臥室、衛生間、陽臺 三 層:娛樂室、3臥室、衛生間、露臺 編號DC0380:歐式三層旋轉樓梯別墅
主體造價: 40-50萬 結構形式: 框架結構 開間: 12.2米 進深: 12.8米 占地面積: 150.95平方米 建筑面積: 364.41平方米
一 層:堂屋、客廳(中空)、臥室(附衛生間)、臥室(附衣帽間)、廚房、餐廳、衛生間 二 層:起居廳(附陽臺)、臥室(附衣帽間,衛生間)、臥室、衛生間、露臺 三 層:起居廳、臥室(附露臺)、臥室、衛生間、露臺 編號DC0211:經典三層帶露臺
主體造價: 20-25萬 開間: 11.9米 進深: 10.3米 占地面積: 120.8平方米 建筑面積: 290.99平方米 首層戶型:
一 層:堂屋、客廳、老人房(附衛生間)、麻將室(附雜物間)、雜物間、廚房(兼餐廳)、衛生間 二 層:小客廳、主臥(附衛生間,陽臺)、臥室(附陽臺)、臥室、衛生間 三 層:臥室(附衛生間)、臥室(附陽臺)、臥室、衛生間、露臺 編號DC0217:漂亮的三層復式
主體造價: 35-40萬 開間: 11.94米 進深: 13.64米 占地面積: 150.77平方米 建筑面積: 398.05平方米 首層戶型:
一 層:客廳、休閑廳(中空)、臥室、廚房、餐廳、儲藏室、衛生間 二 層:主臥(附衣帽間,衛生間)、2臥室、衛生間 三 層:活動室、2臥室、書房、衛生間、露臺 編號DC0309:復式三層帶車庫
主體造價: 40-45萬 開間: 17.4米 進深: 11.7米 占地面積: 177.42平方米 建筑面積: 537.85平方米 首層戶型:
一 層:門廳、客廳(中空)、臥室(附衛生間)、廚房、餐廳、衛生間、車庫 二 層:起居室、臥室(附書房,衣帽間,衛生間,陽臺,露臺)、臥室(附陽臺)、衛生間 三 層:健身房、臥室(附衛生間,露臺)、臥室(附露臺)、2臥室(附陽臺)、衛生間 編號DC0314:復式三層農村別墅
主體造價: 38-42萬 開間: 16.5米 進深: 10.5米 占地面積: 165.88平方米 建筑面積: 479.52平方米 首層戶型:
一 層:門廳、客廳(中空)、2臥室、棋牌室、儲存間、廚房、餐廳、2衛生間 二 層:臥室(附書房,衣帽間,衛生間)、2臥室、衛生間、露臺 三 層:3臥室、家庭影院、2衛生間、露臺 編號DC0326:復式三層旋轉樓梯
主體造價: 50萬以上 開間: 16.5米 進深: 13.8米 占地面積: 229.61平方米 建筑面積: 486.15平方米 首層戶型:
一 層:堂屋、客廳(中空)、臥室(附書房,衛生間)、2臥室、廚房、餐廳、衛生間、涼亭 二 層:起居室(附露臺)、臥室(附衛生間)、2臥室、衛生間、露臺 三 層:健身廳、2臥室、衛生間、2露臺 編號DC0332:復式三層別墅
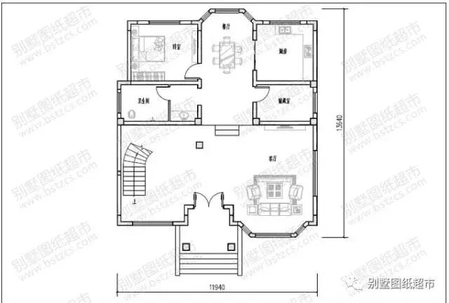
主體造價: 40-45萬 開間: 12米 進深: 12.8米 占地面積: 149.81平方米 建筑面積: 442.78平方米 首層戶型:
一 層:門廳、客廳(中空)、臥室(附衛生間)、臥室、廚房、餐廳、衛生間 二 層:起居室、休息區(附露臺)、臥室(附衛生間)、臥室(附露臺)、臥室、衛生間 三 層:健身廳、臥室(附書房,衛生間)、臥室(附露臺)、臥室、衛生間、露臺 編號DC0338:新農村復式三層帶露臺
主體造價: 38-42萬 開間: 12.9米 進深: 12米 占地面積: 160.83平方米 建筑面積: 477.39平方米 首層戶型:
一 層:門廳、客廳(中空)、臥室(附衛生間)、臥室、棋牌室、廚房、餐廳、衛生間 二 層:主臥(附書房,衣帽間,衛生間,陽臺,露臺)、臥室(附書房)、臥室、衛生間 三 層:健身房(附儲藏間)、臥室(附露臺)、臥室(附書房)、臥室、衛生間、露臺 編號DC0343:農村三層復式樓
主體造價: 40-45萬 開間: 12米 進深: 14.1米 占地面積: 146.27平方米 建筑面積: 444.19平方米 首層戶型:
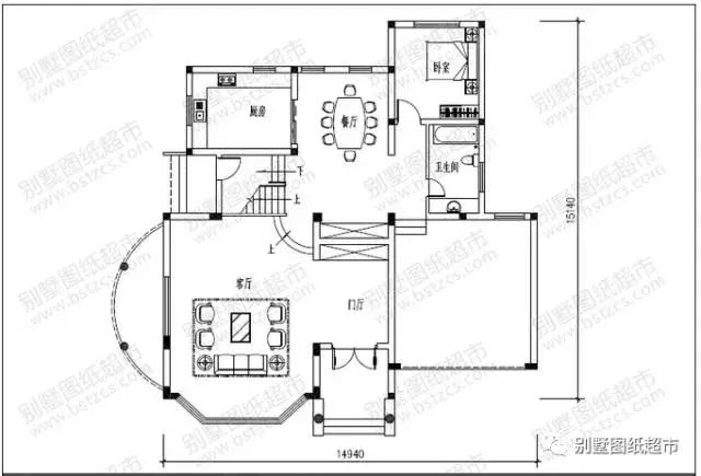
一 層:門廳、客廳(中空)、臥室(附衛生間)、臥室、廚房、餐廳、觀景平臺、衛生間 二 層:起居室、臥室(附衛生間)、臥室(附書房,陽臺)、臥室(附露臺)、衛生間 三 層:健身廳、臥室(附衛生間)、臥室(附書房,露臺)、臥室、衛生間、露臺 編號DC0176:三層帶車庫復式樓
主體造價: 35-40萬 開間: 14.94米 進深: 15.14米 占地面積: 201平方米 建筑面積: 450平方米 首層圖紙:
一 層:門廳、客廳、臥室、廚房、餐廳、衛生間、車庫 二 層:臥室(附衛生間,露臺)、臥室(附衣帽間,衛生間)、臥室(附衛生間) 三 層:臥室(附衣帽間,衛生間,露臺)、活動室、衛生間、露臺 編號DC0327:三層帶車庫露臺別墅
主體造價: 38-42萬 結構形式: 磚混結構 開間: 13.2米 進深: 12.3米 占地面積: 153.63平方米 建筑面積: 451.28平方米 首層戶型:
二層戶型:
三層戶型:
一 層:門廳、客廳(中空)、臥室、廚房、餐廳、衛生間、車庫 二 層:起居室(附陽臺)、臥室(附書房,衛生間)、2臥室、衛生間 三 層:健身房、臥室(附書房,衛生間)、2臥室、衛生間、露臺 如今,選擇在農村建別墅的人越來越多,對戶型的要求也越來越多,不僅要求外觀上要漂亮,室內布局也要求大氣實用。這15套復式別墅戶型,室內布局合理,多娛樂性用間設計,各項設計的十分到位,給人的整個感覺就是相當精致! 圖紙之家-專注農村別墅/自建房設計18年,集合國內200余位經驗豐富的設計師,被評為口碑最好的農村建筑設計公司! |

氣派的帶旋轉樓梯三層別墅房屋設計圖,戶型很好
占地:150平方米
帶地下室的一層別墅設計圖,農村自建很實用
占地:192平方米
農村二層半別墅圖片大全,二層半別墅設計圖推薦
占地:160平方米
鄉村二層簡歐小戶型別墅圖設計,占地90平方米左右
占地:92.12平方米
豪華二層別墅設計圖紙及效果圖,帶車庫,歐式別墅方案
占地:170平方米
兄弟兩戶雙拼房屋設計圖及外觀圖片,戶型合理
占地:185平方米
農村40萬房子圖片外觀設計效果圖,帶地下室,外觀時尚大氣
占地:110平方米
20萬左右歐式二層小別墅設計圖,100平米和130兩個戶型
占地:多種戶型
最新五十萬農村二層別墅設計圖紙,客廳中空
占地:195平方米
適合7字型宅基地蓋的一層別墅,中式風格設計
占地:163平方米
農村中式一層三合院自建房戶型方案圖,帶庭院設計
占地:222平方米
鄉村一層帶閣樓歐式小別墅,“L”型七字設計戶型
占地:194.218平方米
獨棟三層樓房設計圖紙及效果圖,農村蓋房推薦
占地:125平方米
二層美式花園洋房設計圖,帶堂屋戶型,外觀簡直美爆了
占地:159.32平方米
農村四間兩層樓房設計圖,外觀時尚,戶型實用
占地:180平方米
經濟、不張揚!簡單二層別墅設計圖,農村建房直接抄作業
占地:198.58平方米
新農村全套四層別墅設計圖紙占地面積:190平方米造價預算:42萬
占地:190平方米
180平方米新農村自建二層小別墅設計圖及效果圖,15X13米
占地:183平方米
120平二層別墅房屋設計圖,造型美觀、現代
占地:120平方米
農村中式二層雙拼四合院別墅設計圖,兄弟父母三戶典雅大氣
占地:360平方米
推薦:10套新農村自建房設計圖,2026年最新設計
閱讀次數:4825737次
100套鄉村別墅圖片大全,2026年最新設計
閱讀次數:2492203次
6款農村蓋一層平房的設計圖,10萬元就能建起來
閱讀次數:1852637次
這11個一層農村自建房別墅火爆了朋友圈!我最喜歡戶型十!你呢
閱讀次數:750268次
農村6萬元建一層小別墅圖,你敢相信嗎
閱讀次數:567686次
農村5萬塊就能自建房,6套普通房子設計圖分享,你沒看錯!
閱讀次數:419410次
8套農村漂亮三間平房圖片,非常適合在農村修建!
閱讀次數:411197次
農村自建房化糞池怎么做?附方案及施工過程
閱讀次數:391783次
農村一層三間平房設計圖,告別土氣養老房,讓人忍不住點贊
閱讀次數:350581次
新農村二層樓房圖片造價12萬,挑一套回家建房吧!
閱讀次數:349126次
