
|
在咱們中國人的觀您中,房子是值得奮斗一生去追求的東西。但是現在城市的商品房,高昂的房價讓人承擔不起,各種限購政策又給大家增添了許多麻煩。相比之下,在農村老家自家房就很劃算了,只要商品房的首付錢,就能在農村蓋起一棟漂亮的小別墅。 今天給大家分享5套農村三層自建房,心動不如行動,讓城里人羨慕去吧! 第一套
正面效果圖
鳥瞰圖 占地面積:11.65m*11.20m,130平方米左右; 建筑層高:三層; 建筑高度:12.34米(含屋頂); 設計功能: 一層戶型設計:客廳、餐廳、廚房、衛生間、臥室x2 二層戶型設計:客廳、書房、主臥、臥室x2、衛生間、露臺 三層戶型設計:臥室x2、書房(娛樂室)、衛生間、陽臺、露臺
一層平面圖
二層平面圖
三層平面圖 第二套
別墅效果圖 占地面積:8.60m*10.00m,86平方米左右; 建筑層高:三層; 建筑高度:10.85米(含屋頂); 設計功能: 一層戶型設計:客廳、廚房、餐廳、臥室、衛生間、洗衣房、儲藏間 二層戶型設計:起居室(客廳)、書房(小起居室)、臥室(帶衛生間和衣帽間)、臥室(帶衛生間)、陽臺 三層戶型設計:起居室、臥室(帶衛生間和衣帽間)、臥室、衛生間、露臺、陽臺
一層平面圖
二層平面圖
三層平面圖 第三套
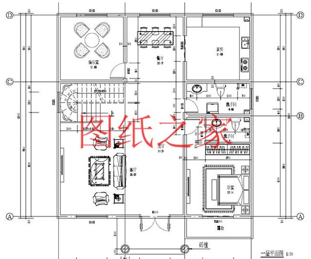
別墅效果圖 占地面積:13.96m*14.74m,200平方米左右; 建筑層高:三層; 建筑高度:11.83米(含屋頂); 設計功能: 一層戶型設計:客廳、餐廳、廚房、臥室、主臥(帶衛生間)、衛生間、入戶花園、雜物間; 二層戶型設計:客廳、主臥(衛生間)、臥室x3(其中1個臥室帶陽臺)、書房、衛生間; 三層戶型設計:活動室、臥室x2、書房、衛生間、大露臺x2;
一層平面圖
二層平面圖
三層平面圖 第四套
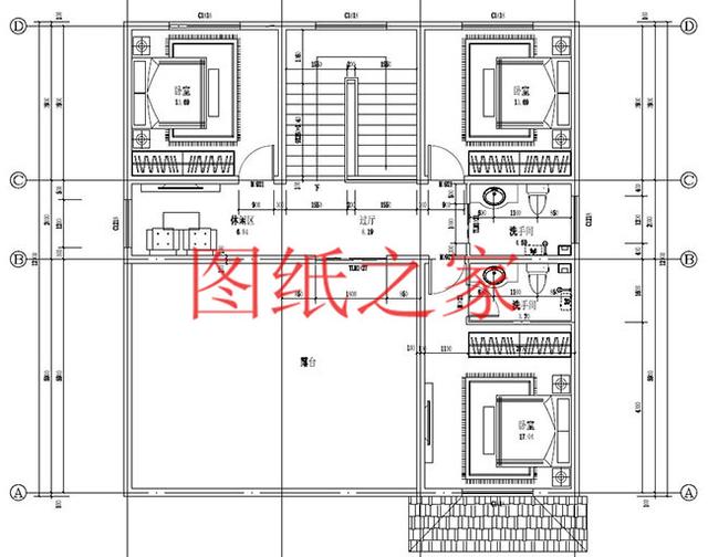
別墅效果圖 占地面積:11.5m*12.0m,138平方米左右; 建筑層高:三層; 建筑高度:12.0米(含屋頂); 設計功能: 一層戶型設計:過廳、客廳、餐廳、廚房、衛生間、主臥(帶衛生間)、娛樂室(次臥); 二層戶型設計:過廳、休閑區、主臥(帶衛生間)、臥室x2、衛生間、小露臺x2; 三層戶型設計:過廳、休閑區、主臥(帶衛生間)、臥室x2、衛生間、大露臺;
一層平面圖
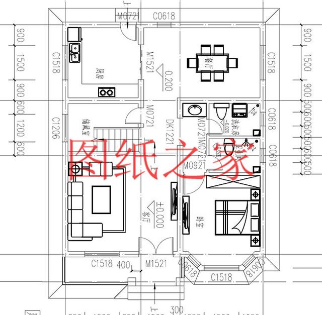
二層平面圖
三層平面圖 第五套
別墅效果圖 占地面積:15.25m*11.4m,一層建筑150平方米左右; 建筑層高:三層半; 建筑高度:14.88米(含屋頂); 設計功能: 一層戶型設計:客廳、餐廳、廚房、主臥(帶衛生間)、大廳(功能自定義)、衛生間、車庫; 二層戶型設計:客廳上空、茶吧、主臥(帶衣帽間和衛生間)、臥室(帶衛生間)、臥室、衛生間、走廊、陽臺x2; 三層戶型設計:臥室(帶衣帽間和衛生間)、臥室(帶衛生間)、臥室、衛生間、休閑廳、露臺、陽臺; 屋頂戶型設計:功能自定義、涼亭、露臺x2;
一層平面圖
二層平面圖
三層平面圖
屋頂平面圖
圖紙之家-專注農村別墅/自建房設計18年,集合國內200余位經驗豐富的設計師,被評為口碑最好的農村建筑設計公司! |

8萬元二層農村房子圖片及設計圖,簡易二層小樓,占地50平米
占地:50平方米
農村三層雙拼別墅設計圖,帶外觀效果圖,推薦
占地:190平方米
鄉村兩層半別墅設計圖,一層160平,主體30萬左右
占地:168平方米左右
260平方米兩層帶車庫四合院房屋設計圖紙及效果圖
占地:260平方米
160平方米二層小別墅設計圖紙及效果圖大全,12X13米
占地:162平方米
100平左右農村一層平房小洋樓建筑設計圖紙,14米×8米
占地:98平方米
160平方米現代新農村四合院兩層別墅施工圖紙及效果圖
占地:157平方米
180平方現代風三層別墅設計圖,經典大氣,百看不厭
占地:180.48平方米
帶堂屋新農村三層房屋別墅設計圖紙,帶外觀效果圖
占地:214平方米
18X12米農村二層溫馨小別墅設計圖,美式風格
占地:203平方米
115平旋轉樓梯三層復式別墅房屋設計圖,含外觀效果圖
占地:115平方米
150平二層別墅房屋設計圖,現代風格,造型精致
占地:150平方米
豪華大氣農村三層別墅圖紙,帶車庫、露臺,占地200平方米左右
占地:207平方米
農村二層舒適好房,這款四開間別墅設計圖真的很不錯
占地:220.46平方米
2026兩層半20多萬農村自建房圖,簡歐風格,美觀大氣
占地:120平方米
三層歐式自建房別墅設計方案,11x11米洋氣實用,飽受大家好評
占地:127平方米
90平農村自建房二層新款,占地不大但很實用,
占地:88平方米
農村15萬元二層小樓設計圖,外觀簡潔、樸素,造價低
占地:138平方米
三層現代平頂別墅設計圖,簡約時尚百看不厭,外觀令人驚艷!
占地:125.142平方米
180平方農村二層別墅施工設計圖紙,15.8x11.7米
占地:180平方米
推薦:10套新農村自建房設計圖,2026年最新設計
閱讀次數:4825737次
100套鄉村別墅圖片大全,2026年最新設計
閱讀次數:2492203次
6款農村蓋一層平房的設計圖,10萬元就能建起來
閱讀次數:1852637次
這11個一層農村自建房別墅火爆了朋友圈!我最喜歡戶型十!你呢
閱讀次數:750268次
農村6萬元建一層小別墅圖,你敢相信嗎
閱讀次數:567686次
農村5萬塊就能自建房,6套普通房子設計圖分享,你沒看錯!
閱讀次數:419410次
8套農村漂亮三間平房圖片,非常適合在農村修建!
閱讀次數:411197次
農村自建房化糞池怎么做?附方案及施工過程
閱讀次數:391783次
農村一層三間平房設計圖,告別土氣養老房,讓人忍不住點贊
閱讀次數:350581次
新農村二層樓房圖片造價12萬,挑一套回家建房吧!
閱讀次數:349126次
