
|
農村自建房現在流行豪宅,流行高大的豪宅,所以現在很多家庭在考慮自建房時,都以三層結構為基礎,四層、五層甚至更高層的自建房都不在少數。這就是新農村的改變,是新農村的實際情況,但是我們也應該結合更多的實際情況,畢竟不是所有的家庭都能建成豪宅,都有那個實力建成豪宅。而且每個家庭都有自己的情況,就算有經濟實力建豪宅,也要結合自己家庭的住房狀況,畢竟實用才是最基本的。本期,我們推薦三款二層自建小別墅,磚混結構的設計,美觀的外形,至少四間臥室的設計方案,真的很實用。 第一款:
東西對稱的經典小別墅,豪華的拱形入戶門廳非常氣派,寬體大窗設計保證采光的同時還能保證美觀性,雙側設計的開放式陽臺非常豪華,豪華羅馬柱做支撐非常穩重;建筑裝飾較簡潔,橙色屋頂搭配文化石和真石漆共同裝飾的建筑外墻,整體造型靚麗十足;建筑設計尺寸:開間12米,進深11.6米,戶型很方正,建筑占地135.56平米,總建筑面積300.98平米。
建筑入戶設門廳,左側設客廳,右側設計一間老人房,套房式設計更加實用,廚房、餐廳樓梯間功能齊全;二層設起居室和三間臥室,陽面兩間臥室帶露臺,其中一間還是套房設計,另預留帶露臺的棋牌室,休閑娛樂功能性強。 第二款:
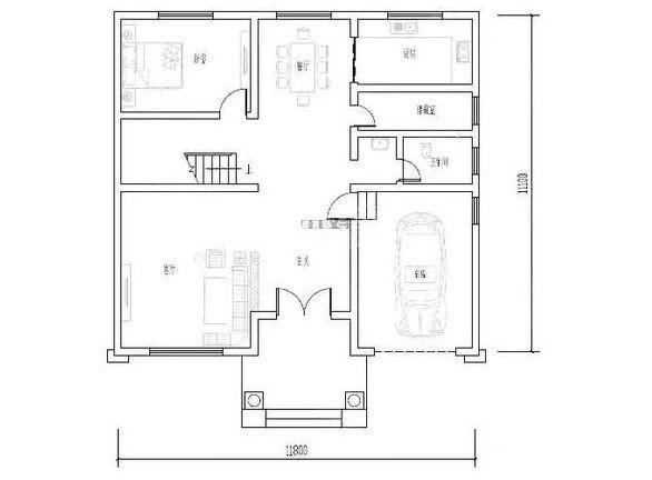
二層的建筑很常見,但是簡單豪華的還真是不多見,這一款就是其中的典型,建筑帶車庫,豪華的入戶門廳雙層羅馬柱豪華性和落地大窗都是經典的設計元素,還采用二分式小羅馬柱,非常經典,整個建筑外墻均采用豪華石材裝飾。建筑設計尺寸:開間11.8米,進深11.1米,建筑占地132.86平米,總建筑面積325.38平米。
建筑入戶設玄關,一層設兩室兩廳一廚一衛和一間小儲藏室,二層設三室一廳兩衛,其中一間是套房,另有帶露臺的棋牌室,功能很全。 第三款:
略顯小清新的二層設計方案,兩種突出式的窗型設計很有特點,方形小飄窗很有立體感,八角小飄窗很有設計感,藍色屋頂,白色和橙色的外墻設計,非常的清新雅致;建筑設計尺寸:開間10.8米,進深12.9米,建筑占地138.1平米,總建筑面積322.6平米。
建筑入戶設門廳,右側設客廳,廚房、餐廳均于同側設計,樓梯間設儲藏室,左側設兩間臥室,二層設起居室和三間臥室,一間棋牌室,功能齊全。 三款均采用磚混結構,功能齊全,最少四間臥室的設計思路非常完美。 ![]() 圖紙之家-專注農村別墅/自建房設計18年,集合國內200余位經驗豐富的設計師,被評為口碑最好的農村建筑設計公司! |

驚艷全村的三層別墅設計圖,12×16米美觀大氣布局超合理
占地:179.8平方米
兄弟四間三層雙拼別墅設計圖,造價40萬左右
占地:210平方米
田園風格別墅設計圖紙及效果圖,三層鄉村小別墅設計方案
占地:166.4平方米
三層帶車庫農村別墅設計圖紙(含外觀效果圖)
占地:147.7平方米
農村二層L戶型農村別墅!設計圖簡約時尚又大氣,住著超舒適
占地:170.55平方米
現代二層農村別墅全套設計圖,大旋轉露臺+超大中空客廳
占地:133平方米
農村四間三層豪華別墅設計方案圖,造型輕奢雅致
占地:200平方米
140平方米兩層別墅CAD設計圖紙及效果圖,13x11米
占地:138平方米
造價40萬內三層別墅房屋設計方案,設計圖+外觀效果圖
占地:150平方米
130平米帶小院一層自建房屋設計圖,省錢實用,養老房首選
占地:130平方米左右
帶獨立堂屋的農村自建房設計,二層別墅設計方案圖
占地:109平方米左右
農村四層樓房設計圖及外觀效果圖,造價60萬左右
占地:163.84平方米
最新網紅二層別墅,寬敞時尚沉穩大氣,布局實用正好滿足您的需
占地:110平方米
農村120方三層自建房子圖,好看又不貴的三層農村別墅
占地:120平方米
新中式風格農村自建房二層設計圖,15.5米乘12米
占地:186平方米
戶型獨特的、二層臥室挑高的別墅房屋設計圖,外觀簡歐風格
占地:250平方米
農村高端中式三層雙拼全套房屋施工設計圖,效果圖很大氣
占地:340平方米
二層新農村自建房設計圖,帶外觀效果圖
占地:140平方米
二層小別墅設計方案圖,平頂設計帶cad施工圖和外觀效果圖
占地:147平方米
150平左右新農村自建房設計圖,含外觀效果圖
占地:150平方米
推薦:10套新農村自建房設計圖,2026年最新設計
閱讀次數:4825737次
100套鄉村別墅圖片大全,2026年最新設計
閱讀次數:2492203次
6款農村蓋一層平房的設計圖,10萬元就能建起來
閱讀次數:1852637次
這11個一層農村自建房別墅火爆了朋友圈!我最喜歡戶型十!你呢
閱讀次數:750268次
農村6萬元建一層小別墅圖,你敢相信嗎
閱讀次數:567686次
農村5萬塊就能自建房,6套普通房子設計圖分享,你沒看錯!
閱讀次數:419410次
8套農村漂亮三間平房圖片,非常適合在農村修建!
閱讀次數:411197次
農村自建房化糞池怎么做?附方案及施工過程
閱讀次數:391783次
農村一層三間平房設計圖,告別土氣養老房,讓人忍不住點贊
閱讀次數:350581次
新農村二層樓房圖片造價12萬,挑一套回家建房吧!
閱讀次數:349126次
