
|
現在的農村自建房的外觀造型可以說是千姿百態,有的房屋為了追求外觀新穎而放棄了實用性,實際是得不償失的。建房最重要的就是房屋的實用性,滿足人的需要之后再考慮外觀造型,滿足人對美的追求。 今天給大家推薦5套農村三層自建房設計,實用和美觀兼顧,大家都喜歡。 第一套
別墅效果圖 占地面積:11.10m*9.70m,一層建筑面積100平方米左右; 建筑層高:三層; 建筑高度:12.14米(含屋頂); 一層房屋戶型:玄關、客廳、廚房、餐廳、臥室、衛生間、洗衣房; 二層房屋戶型:客廳上空、小客廳、臥室x3、衛生間、露臺; 三層房屋戶型:小客廳、臥室x3、衛生間、大露臺;
一層平面圖
二層平面圖
三層平面圖 第二套
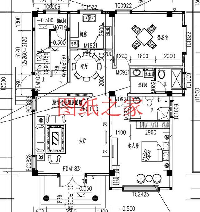
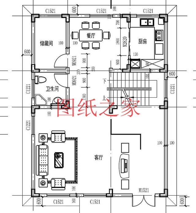
別墅效果圖 占地面積:10.0m*13.5m,135平方米左右; 建筑層高:三層; 建筑高度:12.00米(含屋頂); 一層房屋戶型:客廳、主臥(帶衛生間)、品茶室(可做臥室)、廚房、餐廳、衛生間、儲藏間(樓梯下); 二層房屋戶型:客廳、主臥(帶衛生間)、臥室x2、衛生間(附淋浴房); 三層房屋戶型:家庭活動房(健身房、棋牌室、家庭影院等)、主臥(帶衛生間)、臥室、屋面露臺;
一層平面圖
二層平面圖
三層平面圖 第三套
別墅效果圖 占地面積:11.40m*12.00m,一層建筑面積130平方米左右; 建筑層高:三層; 建筑高度:11.54米(含屋頂); 一層房屋戶型:門廳、客廳、廚房、餐廳、臥室、衛生間、車庫; 二層房屋戶型:客廳上空、主臥、臥室x3、衛生間、陽臺; 三層房屋戶型:臥室x4、衛生間、曬衣間、露臺、陽臺;
一層平面圖
二層平面圖
三層平面圖 第四套
別墅效果圖 占地面積:11.00m*11.60m,128平方米左右; 建筑層高:三層; 建筑高度:11.97米(含屋頂); 一層房屋戶型:玄關、客廳、廚房、餐廳、臥室、衛生間、車庫(可做臥室); 二層房屋戶型:娛樂廳(可做小客廳)、客廳(可做大臥室)、臥室x3、書房、衛生間、陽臺; 三層房屋戶型:娛樂廳、臥室x3、衛生間、大露臺(屋頂花園);
一層平面圖
二層平面圖
三層平面圖 第五套
別墅效果圖 占地面積:8.9m*12.0m,106平方米左右; 建筑層高:三層; 建筑高度:12.00米(含屋頂); 一層房屋戶型:客廳、餐廳、廚房、儲藏間、衛生間; 二層房屋戶型:客廳、主臥(帶衛生間)、臥室、衛生間、露臺; 三層房屋戶型:起居室、臥室x3(帶衛生間)、大露臺;
一層平面圖
二層平面圖
三層平面圖 這幾套別墅的設計圖,你最喜歡哪一套? 圖紙之家-專注農村別墅/自建房設計18年,集合國內200余位經驗豐富的設計師,被評為口碑最好的農村建筑設計公司! |

120平方房子設計圖,農村120平建房設計圖推薦
占地:122平方米
簡單實用新農村三層住宅房屋設計圖,時尚大氣,低調
占地:140平方米
新農村中式一層三合院效果圖及全套設計圖,喜歡合院的有福了
占地:118平方米
2026新款三層小別墅設計圖,占地150平米,帶地下室
占地:150平方米
新中式一層合院別墅圖,15米×15.8米,主體造價低至15萬
占地:183.08平方米
12x10米帶閣樓的農村一層半別墅設計圖,外觀洋氣
占地:110.54平方米
豪華高端三層帶地下室別墅設計圖,可帶電梯
占地:210平方米
150平方米農村二層房屋建筑設計圖,15.2x9.4米
占地:148平方米
140平方米歐式三層別墅建筑設計圖紙,復式結構
占地:140平方米
120多平米三層農村別墅設計圖,把實用做到極致,造價適中
占地:126.85平方米
三層小別墅40萬造價,大氣農村三層新中式自建房設計圖紙
占地:171.656平方米
二層農村小別墅自建房設計圖,布局實用,占地150平
占地:149.05平方米
鄉村仿古一層別墅圖片及設計圖,經典實用,占地170平
占地:170平方米
新中式120平米農村20萬元二層小樓圖,外觀柔和而雅致
占地:120平方米
18米乘10米一層農村自建房設計圖,大方耐看符合傳統對稱美
占地:180平方米
方方正正的二層農村別墅設計圖,普通農村人都能建
占地:201.05平方米
140平三層別墅房屋設計圖,含外觀圖片,外觀現代時尚
占地:143平方米
高端歐式四層別墅房屋施工圖紙及效果圖,圓弧大窗
占地:170平方米
農村自建四層百萬豪宅別墅設計圖,客廳中空
占地:170平方米
現代三層復式小別墅設計圖及外觀圖片,25萬造價
占地:105平方米
推薦:10套新農村自建房設計圖,2026年最新設計
閱讀次數:4825737次
100套鄉村別墅圖片大全,2026年最新設計
閱讀次數:2492203次
6款農村蓋一層平房的設計圖,10萬元就能建起來
閱讀次數:1852637次
這11個一層農村自建房別墅火爆了朋友圈!我最喜歡戶型十!你呢
閱讀次數:750268次
農村6萬元建一層小別墅圖,你敢相信嗎
閱讀次數:567686次
農村5萬塊就能自建房,6套普通房子設計圖分享,你沒看錯!
閱讀次數:419410次
8套農村漂亮三間平房圖片,非常適合在農村修建!
閱讀次數:411197次
農村自建房化糞池怎么做?附方案及施工過程
閱讀次數:391783次
農村一層三間平房設計圖,告別土氣養老房,讓人忍不住點贊
閱讀次數:350581次
新農村二層樓房圖片造價12萬,挑一套回家建房吧!
閱讀次數:349126次
