圖紙介紹:本戶型為豪華三層帶地下室別墅設計圖,可帶電梯,外觀豪華、高端,客廳為復式結構,戶型合理,舒適,本方案適合高端客戶使用,能建一棟這樣的別墅足夠了。
占地面積:13.64m*15.63m,占地210平方米左右;
建筑層高:三層(帶地下室);
建筑高度:11.69米(含屋頂);
設計功能:
地下層:車位、儲藏間、電梯;
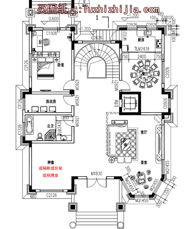
一 層:客廳、茶廳、餐廳、廚房、衛生間、洗衣房、臥室、神龕(可隔斷成臥室或棋牌室)、電梯;
二 層:客廳上空、活動區、臥室x3(帶衛生間)、電梯;
三 層:活動區、臥室x3(帶衛生間)、電梯、大露臺、電梯;
圖紙目錄:
建 筑 圖:建筑施工總說明、建筑構造設計說明、一層平面圖、二層平面圖、三層平面圖、閣樓平面圖、屋頂平面圖、正立面圖、背立面圖、左立面圖、右立面圖、1-1剖面圖、樓梯大樣圖、門頭大樣圖、節點大樣圖、門窗詳圖、門窗表等;
結 構 圖:結構設計總說明、大樣圖、基礎平面布置圖、基礎大樣圖、一層頂板結構平面圖、二層頂板結構平面圖、悶頂板結構平面圖、屋頂板結構平面圖、一層頂梁結構平面圖、二層頂梁結構平面圖、悶頂梁結構平面圖、樓梯配筋圖等;
給排水圖:給排水設計說明、一層給排水平面圖、二層給排水平面圖、三層給排水平面圖、屋頂給排水平面圖、衛生間大樣圖、給排水系統圖等;
電 氣 圖:電氣設計說明、設備材料表、等電位聯結做法、配電系統圖、弱電系統圖、配電干線系統圖、一層照明平面圖、二層照明平面圖、三層照明平面圖、一層插座平面圖、二層插座平面圖、三層插座平面圖、一層弱電平面圖、二層弱電平面圖、三層弱電平面圖、接地平面圖、屋頂防雷平面圖等;
全套A3設計圖+效果圖,拿到即可施工。








































































































