
|
如果說家里的新房修建得漂亮大氣,一家老小住得舒適方便,那么房子的造價高一點也是值得的。以前的農村人,都是拼盡全力在城里買房,但是現在農村的生活環境不比城里差,完全可以拿買房的錢在村里蓋一棟別墅。 今天給大家推薦6套農村二層別墅,建好之后絕對是十里八鄉最漂亮的房子。 第一套
別墅效果圖
鳥瞰圖 占地面積:12.30m*13.50m,165平方米左右; 建筑層高:二層; 建筑高度:8.47米(含屋頂); 設計功能: 一層戶型:客廳、餐廳、廚房、衛生間、臥室(帶衛生間)、車庫(可以做臥室); 二層戶型:主臥(帶衛生間)、臥室(帶書房、衣帽間、露臺)、臥室、室內露臺;
一層平面圖
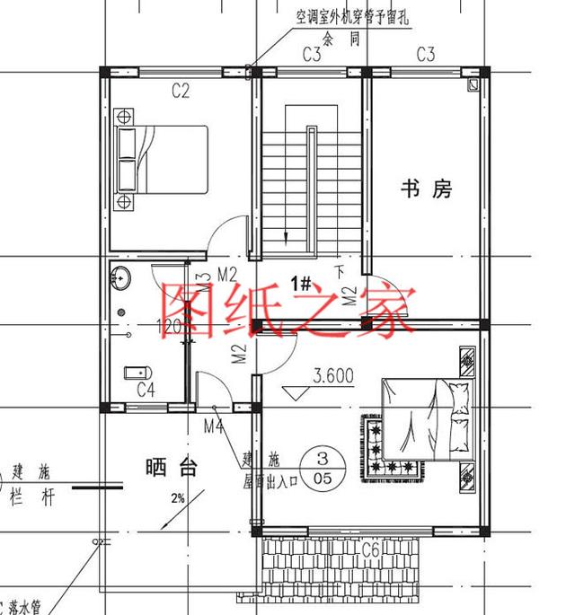
二層平面圖 第二套
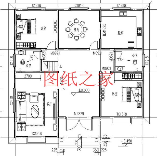
別墅效果圖 占地面積:11.04m*8.54m,95平方米左右; 建筑層高:二層; 建筑高度:8.34米(含屋頂); 設計功能: 一層戶型:客廳、臥室、廚房、餐廳、衛生間、雜物間; 二層戶型:客廳、臥室x3、書房、衛生間、陽臺;
一層平面圖
二層平面圖 第三套
別墅效果圖 占地面積:11.0m*10.0m,110平方米左右; 建筑層高:二層; 建筑高度:9.57米(含屋頂); 設計功能: 一層戶型:客廳、廚房、餐廳、臥室、衛生間 二層戶型:客廳、臥室x2、書房、衛生間
一層平面圖
二層平面圖 第四套
別墅效果圖 占地面積:8.5m*11.2m(不含院子),95平方米左右; 建筑層高:二層; 建筑高度:8.40米(含屋頂); 設計功能: 一層戶型:門廳、客廳、廚房、餐廳、儲藏間、臥室x2、衛生間; 二層戶型:臥室x2、書房、衛生間、露臺;
一層平面圖
二層平面圖 第五套
別墅效果圖 占地面積:10.20m*12.90m,130平方米左右; 建筑層高:二層半(帶閣樓); 建筑高度:9.54米(含屋頂); 設計功能: 一層戶型:客廳、餐廳、廚房、臥室、衛生間、儲物間; 二層戶型:主臥(帶衛生間和衣帽間)、臥室x2、衛生間、小露臺; 閣樓戶型:功能自定義;
一層平面圖
二層平面圖 第六套
別墅效果圖 占地面積:13.5m*13.5m,一層建筑平房170平左右; 建筑層高:二層(帶悶頂層); 建筑高度:10.00米(含屋頂); 設計功能: 一層戶型:客廳、餐廳、廚房、臥室x2、衛生間、衛生間(樓梯下,可以做儲藏間); 二層戶型:起居室、書房、臥室x3、大露臺、陽臺; 悶頂戶型:功能自定義;
一層平面圖
二層平面圖
悶頂平面圖 圖紙之家-專注農村別墅/自建房設計18年,集合國內200余位經驗豐富的設計師,被評為口碑最好的農村建筑設計公司! |

面寬12米新中式三層別墅設計圖,回家建房就選它,全家人都愛的
占地:180平方米
簡單實用的二層雙拼別墅設計圖,總占地150平米左右,雙拼房屋
占地:150平方米MB
農村二層中式小三合院別墅全套設計圖,民族特色風格
占地:122平方米
新農村歐式時尚二層別墅設計圖紙,120平方米自建房
占地:多種戶型
普通簡單的平屋頂二層房子設計,造價低施工簡單
占地:151.04平方米
260平方米歐式四層別墅設計圖20X18米,造價108萬
占地:260平方米
三層現代簡約農村雙拼小別墅圖,好看精致,開間17米
占地:187平方米
240平方米新農村四合院兩層樓房施工設計圖紙帶外觀圖
占地:234平方米
13.5米乘11米兩層半別墅設計圖,中式與現代相融合
占地:148.5平方米
最新五十萬農村二層別墅設計圖紙,客廳中空
占地:195平方米
農村2開間三層經濟別墅設計圖,9.6米面寬,實用布局
占地:127.68平方米
三層新農村別墅設計圖片及全套圖紙,外形對稱,帶露臺,這個戶
占地:160平方米
三層歐式自建房別墅設計方案,11x11米洋氣實用,飽受大家好評
占地:127平方米
歐式兩層別墅樓房設計圖紙施工方案,高端豪華外觀圖片
占地:138平方米
復式、旋轉樓梯三層別墅設計方案圖,戶型合理、實用
占地:138平方米
160平方米新農村自建二層樓房設計圖紙及效果圖,15x11米
占地:160平方米
鄉村三層別墅CAD建筑設計圖,110平方米戶型,帶效果圖和全套施工
占地:110平方米
農村4間3層樓房設計圖,帶車庫,挑空客廳,坡屋頂設計
占地:160平方米
面寬8米農村二間二層小別墅設計方案,施工簡單造價低
占地:73.77平方米
農村120平米兩層樓的房子設計圖,外觀新穎
占地:120平方米
推薦:10套新農村自建房設計圖,2026年最新設計
閱讀次數:4825737次
100套鄉村別墅圖片大全,2026年最新設計
閱讀次數:2492203次
6款農村蓋一層平房的設計圖,10萬元就能建起來
閱讀次數:1852637次
這11個一層農村自建房別墅火爆了朋友圈!我最喜歡戶型十!你呢
閱讀次數:750268次
農村6萬元建一層小別墅圖,你敢相信嗎
閱讀次數:567686次
農村5萬塊就能自建房,6套普通房子設計圖分享,你沒看錯!
閱讀次數:419410次
8套農村漂亮三間平房圖片,非常適合在農村修建!
閱讀次數:411197次
農村自建房化糞池怎么做?附方案及施工過程
閱讀次數:391783次
農村一層三間平房設計圖,告別土氣養老房,讓人忍不住點贊
閱讀次數:350581次
新農村二層樓房圖片造價12萬,挑一套回家建房吧!
閱讀次數:349126次
