
|
對于我們農村建房來說,建房是一輩子的人生大事,必須得建好。一層相對于我們來說太小只有一層,不實用;三層對于我們家里有老人的家庭來說,又太麻煩,太不實用了,爬樓梯都要累死。所以綜合考慮二層別墅是最好的,最實用的,也是最受農村人歡迎的要是再帶一個小院的話就是最完美的了! 下面就來看看那下面這五套吧! 第一套:歐式風格二層帶老人房別墅。一層兩臥和茶室,很適合家里有老人的做老人房;二層帶陽臺,空中花園,很適合養花種樹之類的休閑活動! 占地尺寸:15.7X10.5米 占地面積:164.85平方米 建筑面積:310.814平方米 主體造價:25-31萬左右
第二套:二層簡歐風格帶車庫別墅。一層帶入室車庫,兩個臥室;二層帶客廳,大書房,陽臺。休閑娛樂,看書靜養最佳! 占地尺寸:16.2X11.4米 占地面積:191.36平方米 建筑面積:382.72平方米 主體造價:30-38萬左右
第三套:二層帶健身房娛樂室別墅。一層帶健身房,娛樂室,兩個臥室;二層帶衣帽間,4個臥室! 占地尺寸:16.2X10.3米 占地面積:224平方米 建筑面積:448平方米 主體造價:45-53萬左右
第四套:二層農家小院別墅。在農村有此小院小孩玩樂,大人做家務豈不樂哉?一層帶柴火房,二層帶大露臺! 占地尺寸:12.4X14.6米 占地面積:181.04平方米 建筑面積:358.3平方米 造價預算:28-35萬左右
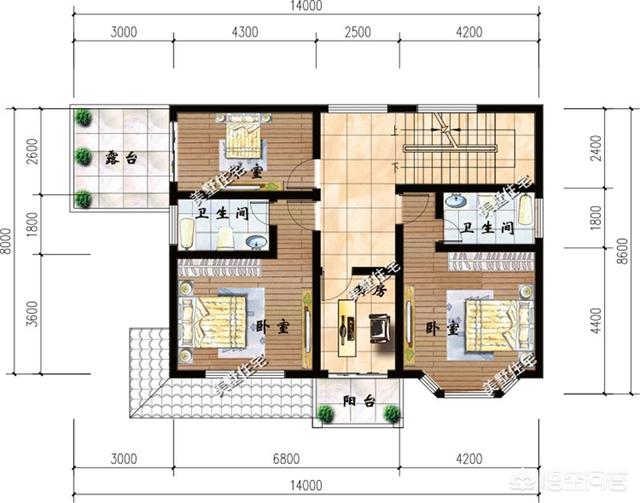
第五套:二層鄉村美墅。一層帶入室大車庫,和臥室;二層帶大露臺,陽臺! 占地尺寸:14X8.6米 占地面積:120.4平方米 建筑面積:301.79平方米 主體造價:24-30萬左右
![]()
圖紙之家-專注農村別墅/自建房設計18年,集合國內200余位經驗豐富的設計師,被評為口碑最好的農村建筑設計公司! |

農村最好看18萬左右兩層小樓圖,外觀、造型簡潔大方
占地:120平方米
一層鄉村自建別墅設計方案推薦,含外觀圖片
占地:148平方米
三層平頂現代別墅設計圖,實用不花冤枉錢,建好倍有面子
占地:113.02平方米
農村一層獨棟別墅設計圖,帶閣樓,設計感十足
占地:250平方米
100平簡單三層房屋設計圖紙,新農村自建推薦圖紙
占地:100平方米
農村二層樓建房造型圖及全套施工圖紙,占地110平米左右,帶地下
占地:110平方米
鄉下一層自建養老平房戶型圖及全套圖紙,占地面積200左右
占地:200平方米
中國最美的四合院別墅設計圖方案,復式挑空客廳戶型
占地:343.57平方米
面寬8米也能建別墅,小面寬農村三層別墅設計圖
占地:93.83平方米
農村兩層新中式別墅圖紙設計圖,外觀圖片大氣,21萬左右
占地:108平方米
二層歐式小別墅設計方案,全套建筑設計圖紙+外觀效果圖
占地:146平方米
帶小院七字形一層自建房戶型設計圖,平屋頂圖紙
占地:201.08平方米
中式四合院風格別墅設計圖,平屋頂,書房、茶室、健身房一應俱
占地:370平方米
120平方米現代新農村二層自建房設計圖,造型時尚好看
占地:120平方米
經典一層帶閣樓三合院別墅設計圖,18米乘9.5米
占地:118.63平方米
新中式復式三層別墅設計圖紙,最美的新中式別墅
占地:130平方米
農村最漂亮二層歐式別墅設計圖,面寬16.5米(含車庫)
占地:180.366
西班牙風格農村二層樓房設計圖及效果圖,實用美觀
占地:170平方米
豪華歐式三層別墅住宅設計圖紙,占地面積150平方米
占地:150平方米
普通農村二層房子設計圖 ,復式結構,帶車庫,占地160平米左右
占地:160平方米
推薦:10套新農村自建房設計圖,2026年最新設計
閱讀次數:4825737次
100套鄉村別墅圖片大全,2026年最新設計
閱讀次數:2492203次
6款農村蓋一層平房的設計圖,10萬元就能建起來
閱讀次數:1852637次
這11個一層農村自建房別墅火爆了朋友圈!我最喜歡戶型十!你呢
閱讀次數:750268次
農村6萬元建一層小別墅圖,你敢相信嗎
閱讀次數:567686次
農村5萬塊就能自建房,6套普通房子設計圖分享,你沒看錯!
閱讀次數:419410次
8套農村漂亮三間平房圖片,非常適合在農村修建!
閱讀次數:411197次
農村自建房化糞池怎么做?附方案及施工過程
閱讀次數:391783次
農村一層三間平房設計圖,告別土氣養老房,讓人忍不住點贊
閱讀次數:350581次
新農村二層樓房圖片造價12萬,挑一套回家建房吧!
閱讀次數:349126次
