
|
隨著農村生活質量的提升,大家對自建房的要求也從原來的只注重建筑的實用性,變成了現在要求實用和美觀并重,好多人就喜歡經典大氣又舒適實用的款式。今天給大家帶來的6款農村三層別墅,就是非常受大家歡迎的設計,建成后肯定能迷倒全村人! 第一套
正面效果圖
背面效果圖
鳥瞰圖 占地面積:11.37m*10.10m,115平方米左右; 建筑層高:三層(帶悶頂層); 建筑高度:12.53米(含屋頂); 一層戶型設計:客廳、餐廳、廚房、臥室、棋牌室、衛生間; 二層戶型設計:起居室、主臥(含衛生間)、臥室x2、書房、陽臺; 三層戶型設計:活動室、臥室x2、衛生間、儲藏間、大露臺; 悶頂戶型設計:功能自定義;
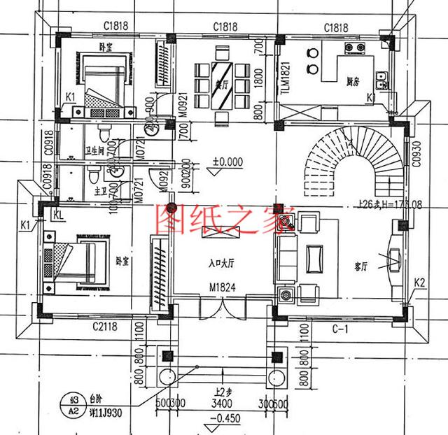
一層平面圖
二層平面圖
三層平面圖
悶頂平面圖 第二套
正面效果圖
背面效果圖
鳥瞰圖 占地面積:11.0m*9.7m,105平方米左右; 建筑層高:三層; 建筑高度:13.5米(含屋頂); 一層戶型設計:客廳、餐廳、廚房、臥室、衛生間; 二層戶型設計:客廳上空、起居室、臥室x2、儲物間(衣帽間)、衛生間、陽臺; 三層戶型設計:大露臺、起居室、臥室x2、衛生間;
一層平面圖
二層平面圖
三層平面圖 第三套
正面效果圖
背面效果圖
鳥瞰圖 占地面積:17.0m*12.0m,一層占地193平方米左右(含外門庭),單戶96平米左右; 建筑層高:三層; 建筑高度:14.2米(含屋頂); 一層戶型設計:堂屋、客廳、廚房、餐廳、臥室、衛生間; 二層戶型設計:起居室、臥室(帶書衛生間)、臥室、衛生間、陽臺; 三層戶型設計:起居室上空、臥室×2、衛生間、露臺;
一層平面圖
二層平面圖
三層平面圖 第四套
正面效果圖
鳥瞰圖 占地面積:14.0m*12.3m(進深含門廳),一層建筑面積150平方米左右; 建筑層高:三層; 建筑高度:14.1米(含屋頂); 一層戶型設計:門廳、客廳、餐廳、廚房、主臥(帶衛生間)、次臥、衛生間; 二層戶型設計:客廳、休閑廳、書房、主臥(帶衛生間)、臥室x2(帶衣帽間)、衛生間、陽臺; 三層戶型設計:客廳、休閑廳、臥室x2、衛生間、露臺;
一層平面圖
二層平面圖
三層平面圖 第五套
正面效果圖
鳥瞰圖 占地面積:13.5m*14.3m,建筑面積193平方米左右; 建筑層高:三層; 建筑高度:11.77米(含屋頂); 一層戶型設計:門廳、客廳、餐廳、廚房、雜物間、主臥(帶衛生間)、衛生間、臥室; 二層戶型設計:休閑廳、主臥(帶衣帽間和衛生間)、臥室(帶衛生間)、衛生間、臥室、陽臺; 三層戶型設計:洗衣房、涼亭、主臥(帶衣帽間和衛生間)、露臺;
一層平面圖
二層平面圖
三層平面圖 第六套
別墅效果圖 占地面積:13.0m*11.50m,150平方米左右; 建筑層高:三層; 建筑高度:12.4米(含屋頂); 一層戶型設計:門廳、客廳、餐廳、廚房、臥室、主臥(帶衛生間)、棋牌室、衛生間、儲藏間; 二層戶型設計:客廳上空、休息區、多功能房(功能自定義)、主臥(帶衛生間)、臥室、衛生間、露臺; 三層戶型設計:健身房、主臥(帶衛生間)、臥室x2、書房、露臺x2;
一層平面圖
二層平面圖
三層平面圖 這幾套別墅的設計圖,你最喜歡哪一套? 我們提供數千套自建別墅設計圖,讓您建房無憂。需要查看詳情或更多圖紙請關注【圖紙之家】或點擊下面圖片。 圖紙之家-專注農村別墅/自建房設計18年,集合國內200余位經驗豐富的設計師,被評為口碑最好的農村建筑設計公司! |

農村四間房屋設計圖經典戶型,這樣設計美觀、實用
占地:169平方米
12×11米兩層農村建房圖紙,農村建房最佳戶型,簡單的風格
占地:140平方米
140平方米新農村二層自建平屋頂房屋設計圖紙帶外觀效果圖
占地:140平方米左右
150平米經典二層中式別墅設計圖 ,現代中式相結合
占地:154平方米左右
方方正正的二層農村別墅設計圖,普通農村人都能建
占地:201.05平方米
面寬12米三層自建房別墅設計圖,廚房在前面,農村施工隊都能建
占地:138.18平方米
10套農村經典二層樓房設計圖紙,多戶型,多尺寸,總有一款適合
占地:多種
面寬16米三層法式別墅設計圖,設計新穎別致,建成后美不勝收
占地:162.07平方米
三十萬農村別墅設計圖帶外觀圖片,30萬造價別墅展示
占地:125平方米
新中式一層別墅設計圖紙,農村自建平房戶型方案圖
占地:183.7平方
農村現代三層建房子設計圖及圖片,平屋頂的設計
占地:150平方米
50萬農村自建三間三層別墅設計圖,占地130平米左右
占地:135平方米
農村兩間兩層樓房設計圖,造價15萬左右,獨立的廚房設計,干凈
占地:95平方米
鄉下建房一層戶型圖,一層住宅設計圖紙,誰說一層平房不能叫別
占地:200平方米
面寬8米兩開間四層歐式風別墅,布局實用,小占地大精彩!
占地:100.86平方米
14x11米一層平房戶型設計圖,帶前后門設計,好看不貴還實用!
占地:143.59平方米
歐式三層雙拼別墅設計圖,精致大氣布局實用,兄弟建房上上之選
占地:234平方米
帶地下室的一層別墅設計圖,農村自建房比較合適
占地:206平方米
三層農村小別墅設計圖,一層帶商鋪,占地110平米,經濟實用
占地:110平方米
帶開放式車庫二層農村自建別墅設計方案,造價僅15萬
占地:89.412平方米
推薦:10套新農村自建房設計圖,2026年最新設計
閱讀次數:4825737次
100套鄉村別墅圖片大全,2026年最新設計
閱讀次數:2492203次
6款農村蓋一層平房的設計圖,10萬元就能建起來
閱讀次數:1852637次
這11個一層農村自建房別墅火爆了朋友圈!我最喜歡戶型十!你呢
閱讀次數:750268次
農村6萬元建一層小別墅圖,你敢相信嗎
閱讀次數:567686次
農村5萬塊就能自建房,6套普通房子設計圖分享,你沒看錯!
閱讀次數:419410次
8套農村漂亮三間平房圖片,非常適合在農村修建!
閱讀次數:411197次
農村自建房化糞池怎么做?附方案及施工過程
閱讀次數:391783次
農村一層三間平房設計圖,告別土氣養老房,讓人忍不住點贊
閱讀次數:350581次
新農村二層樓房圖片造價12萬,挑一套回家建房吧!
閱讀次數:349126次
