
|
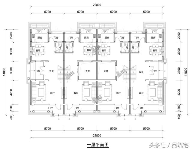
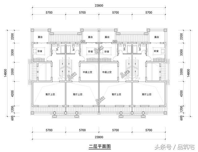
四聯拼法式別墅,建筑整體造型層層進退,突出莊重氣勢。四戶室內戶型對稱布置,基本一致,南北均設入口門廳,帶入戶庭院;中間兩戶設中庭,打破原有的封閉感,增加采光通透性;兩側兩戶側入口,更大氣。
▲一層建筑平面功能:北側是廚房、餐廳,南側是挑空客廳。
▲二層建筑平面功能:一間臥室、公衛。
▲三層建筑平面功能:三層建筑平面功能:南側一間臥室套房、北側大露臺。
▲南立面人視圖
▲北立面人視圖
▲側立面人視圖
▲西南角度透視
▲東北角度透視
▲南側入口近景
▲北側門廳近景 圖紙之家-專注農村別墅/自建房設計18年,集合國內200余位經驗豐富的設計師,被評為口碑最好的農村建筑設計公司! |

兩戶250平方米農村豪華歐式三層兄弟雙拼別墅設計圖
占地:251平方米
小戶型現代新農村三層房屋設計建筑圖及效果圖
占地:108平方米
L字型自建房屋設計圖,一層別墅類型,外觀效果圖漂亮
占地:188.62平方米
140平米二層半帶露臺別墅圖片及圖紙,戶型極佳
占地:140平方米
省錢美觀一層自建房子設計圖,父母養老住很適合
占地:117平方米
三層農村自建別墅設計圖紙及效果圖,占地110平米,外觀精致又大
占地:110平方米
四開間一層半別墅設計圖,帶閣樓設計的戶型方案
占地:190.7平方米
鄉村兄弟二層小戶型雙拼房屋別墅設計圖,造價低,面積小
占地:多種戶型
新農村二層半房屋設計圖紙及效果圖,別墅設計圖精選
占地:113平方米
帶車庫的三層房屋方案設計圖,帶堂屋全套圖紙
占地:163.8平方米
簡簡單單的二層樓房的設計圖,24萬就能搞定
占地:120平方米
農村三層雙拼別墅設計圖,帶外觀效果圖,推薦
占地:190平方米
農村三間兩層樓房設計圖,帶外觀效果圖
占地:140平方米
新農村三層房屋設計圖紙(含效果圖),農村小別墅圖紙推薦
占地:116.15平方米
歐式小別墅設計圖紙帶效果圖,二層歐式小別墅設計方案展示
占地:166平方米
新農村二層住宅設計圖紙,簡單別墅設計圖(含效果圖)
占地:77.6平方米
帶地下室的一層別墅設計圖,農村自建房比較合適
占地:206平方米
140平三層別墅房屋設計圖,含外觀圖片,外觀現代時尚
占地:143平方米
120平米農村40萬三層別墅自建房款式,簡歐風格
占地:120平方米
農村一層四開間自建別墅,美麗住宅如詩如畫里15米乘10米
占地:142平方米
推薦:10套新農村自建房設計圖,2026年最新設計
閱讀次數:4825737次
100套鄉村別墅圖片大全,2026年最新設計
閱讀次數:2492203次
6款農村蓋一層平房的設計圖,10萬元就能建起來
閱讀次數:1852637次
這11個一層農村自建房別墅火爆了朋友圈!我最喜歡戶型十!你呢
閱讀次數:750268次
農村6萬元建一層小別墅圖,你敢相信嗎
閱讀次數:567686次
農村5萬塊就能自建房,6套普通房子設計圖分享,你沒看錯!
閱讀次數:419410次
8套農村漂亮三間平房圖片,非常適合在農村修建!
閱讀次數:411197次
農村自建房化糞池怎么做?附方案及施工過程
閱讀次數:391783次
農村一層三間平房設計圖,告別土氣養老房,讓人忍不住點贊
閱讀次數:350581次
新農村二層樓房圖片造價12萬,挑一套回家建房吧!
閱讀次數:349126次
