
|
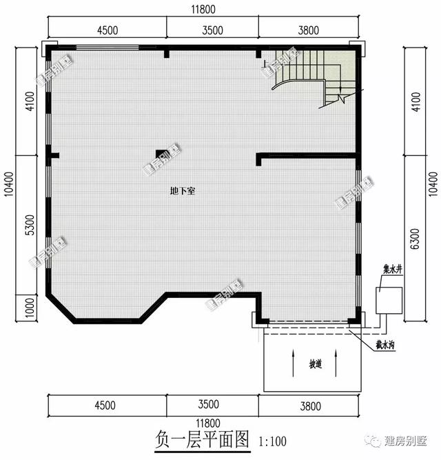
帶地下室設計的農村別墅,兩棟都很豪華,適合各地農村來建。很多地方農村建房子,喜歡用地下室的,地下室的用途也蠻大,所以這里就推薦兩款外觀靚,布局好的,帶地下室的農村自建房戶型。 第一款帶地下室的三層自建房戶型,外墻用面磚裝飾的戶型,屋頂蓋藍瓦,入戶設計很上檔次,11.8×10.4米。
平面布局說明:地下室直角樓梯,沒有具體布局,功能可以隨意決定;一層一室兩廳一廚一衛,室內設有小臺階,很顯檔次的一種設計方式;二層三室一廳兩衛,主臥不僅有多邊形采光窗,還有獨衛和衣帽間,還有兩個陽臺;三層兩間臥室,一個客廳和書房,還有外配的大露臺。
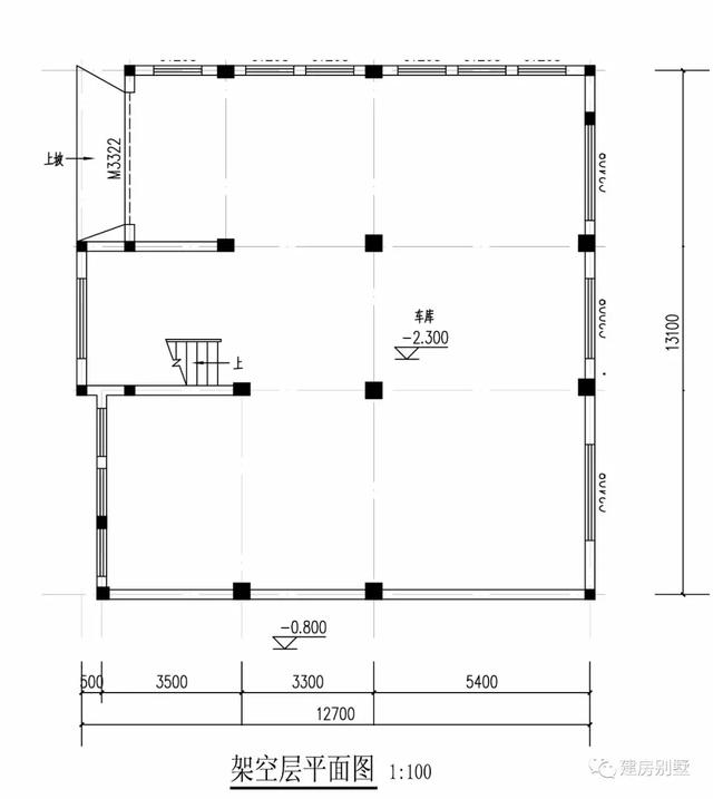
第二棟外觀氣勢上有絕對優勢的別墅戶型,12.7×13.1米,外墻用淺黃色真石漆來裝飾,屋頂蓋藍瓦。
平面布局說明:地下室做車庫;一層一室兩廳一廚一衛,廚房面積大,餐廳旁還有陽臺很方便,室內也有小臺階,還有很多的休閑待客空間;二層兩間豪華主臥室,南北都有陽臺;三層跟二層的布局基本上是一樣的,也是兩個豪華臥室設計。
地下室的造價相對于地面上的一層來說,造價要高上一些。 圖紙之家-專注農村別墅/自建房設計18年,集合國內200余位經驗豐富的設計師,被評為口碑最好的農村建筑設計公司! |

帶堂屋設計一層三合院設計圖,白墻黛瓦古韻悠悠,比高層舒服接
占地:179.37平方米
經典三層歐式造型別墅圖紙,功能房豐富,挑空客廳
占地:180平方米
面寬不到8米的農村二層半別墅建筑圖紙及效果圖
占地:96平方米左右
農村最好看18萬左右兩層小樓圖,外觀、造型簡潔大方
占地:120平方米
新農村三層房屋設計圖紙(含效果圖),農村小別墅圖紙推薦
占地:116.15平方米
帶配房的二層鄉村歐式別墅設計圖,尺寸15.84×13.84米
占地:149.19平方米
大氣農村三層歐式雙拼別墅全套施工圖紙,帶堂屋設計,外觀圖片
占地:196.056平方米
帶地下室KTV三層農村自建別墅設計圖,12米乘12.5米
占地:131.7平方米
簡單實用的二層雙拼別墅設計圖,總占地150平米左右,雙拼房屋
占地:150平方米MB
二間二層小型別墅設計圖,美觀、經濟、實用!
占地:96平方米
美爆的三層經典復式別墅設計圖紙及效果圖,建好更漂亮
占地:130平方米左右
簡約偏現代三層別墅設計圖紙及效果圖,鄉村蓋房推薦方案
占地:130平方米左右
一層農村自建房別墅設計方案,左右對稱布局好
占地:154平方米
農村7字形漂亮房子設計圖及外觀效果圖
占地:189.3平方米
農村二層半樓房設計圖及效果圖,歐式風格
占地:150平方米
復式三層雙拼別墅設計圖,客廳中空,旋轉樓梯
占地:350平方米
帶車位的鄉村二層別墅建筑結構設計圖,全套施工圖140平
占地:139.85平方米
農村兩層新中式仿古四合院別墅戶型圖,小型占地不到200平
占地:193平方米
150平米二層鄉村小別墅圖,戶型合理,外觀清新淡雅
占地:150平方米
新農村二層歐式別墅設計圖,外觀漂亮,主體18萬起建
占地:115.2平方米
推薦:10套新農村自建房設計圖,2026年最新設計
閱讀次數:4825737次
100套鄉村別墅圖片大全,2026年最新設計
閱讀次數:2492203次
6款農村蓋一層平房的設計圖,10萬元就能建起來
閱讀次數:1852637次
這11個一層農村自建房別墅火爆了朋友圈!我最喜歡戶型十!你呢
閱讀次數:750268次
農村6萬元建一層小別墅圖,你敢相信嗎
閱讀次數:567686次
農村5萬塊就能自建房,6套普通房子設計圖分享,你沒看錯!
閱讀次數:419410次
8套農村漂亮三間平房圖片,非常適合在農村修建!
閱讀次數:411197次
農村自建房化糞池怎么做?附方案及施工過程
閱讀次數:391783次
農村一層三間平房設計圖,告別土氣養老房,讓人忍不住點贊
閱讀次數:350581次
新農村二層樓房圖片造價12萬,挑一套回家建房吧!
閱讀次數:349126次
