
|
在很多人都在等著排隊貸款買房的時候,已經有很多人選擇了回到農村建一棟自己的小別墅,現在城市房價一天比一天高,而農村的發展確實一天比一天好,農村建房的成本比城市買房要低得多,而且農村的居住空間和生活環境也要比城市好,以前很多人都不愿在農村建房,除了農村的發展比較差以外,還有就是因為農村住房的造型太過單一,內部功能也比較簡單,但現在農村住房有了天翻地覆的變化,看完下面的兩款圖紙你就明白為什么大家都愿意在農村生活了! 款式一:
第一款是一棟二層別墅,別墅的外觀采用的黃色的真石漆,相較于傳統的瓷磚,真石漆更加安全而且更加美觀,黃色的外墻也更符合農村的自然環境,紅色的坡屋頂讓別墅更加生機勃勃,也想真快居住者對生活的向往于期盼,南側大面積的開窗保證了室內能夠獲得更加充足的采光與通風,門樓的設計也十分有氣勢,讓別墅更有特色。
在平面功能上,一層進門處設有入戶平臺作為室內外的緩沖空間,進門后是一間客廳,可以作為接待客人以及室內活動的場所,左右兩側都有一間帶有單獨衛生間的臥室,可以做為主臥室以及老人房,在往內是餐廳以及相鄰的廚房,兩者相鄰更方便日常就餐,一層還有一間客房以及一間共用衛生間。
二層有四間臥室與三間衛生間,四間臥室彼此不相鄰,能夠更好的保護居住者的隱私,書房可以作為小孩學習以及大人辦公的場所,二層還有一間共用衛生間和一間客廳,客廳可以做為室內活動場所,室外的陽臺更方便室內外的溝通與交流。 款式二:
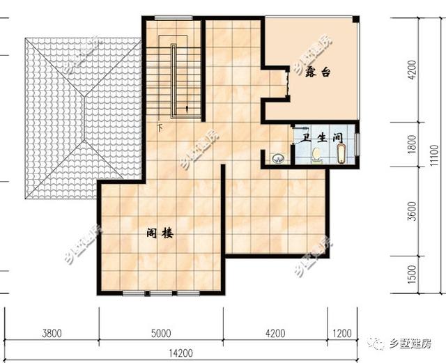
第二款是一棟三層的別墅,三層也是農村很多認比較喜歡的款式,別墅主體仍然是時尚與質樸的結合,既有著流行的時尚特色,又符合的農村的質樸環境。
一層進門處設有入戶長廊,進門后是一個大堂,再往內是客廳以及餐廳和廚房,一層還有兩間臥室與兩間衛生間。
二層有三間臥室與一間客廳,還有一間衛生間和一個室外陽臺和一個露臺。
三層的閣樓可以存放家中雜物,還有一間衛生間與一個室外露臺。 看完這兩款別墅你是不是能夠明白為什么現在這么多人都愿意回農村建房了呢?在城市做房奴,在農村住小別墅,你會選擇哪種呢? 圖紙之家-專注農村別墅/自建房設計18年,集合國內200余位經驗豐富的設計師,被評為口碑最好的農村建筑設計公司! |

歐式三層別墅設計圖,低調奢華,實用布局,好設計不容錯過
占地:134.1平方米
新農村兩層樓房設計圖,占地110平米,戶型簡單實用
占地:110平方米
占地70平方米的三層獨棟別墅設計圖,小戶型自建房屋效果圖
占地:70平方米左右
農村二層樓房設計圖紙,含全套設計方案(施工圖+效果圖)
占地:98平方米
110平農村二層房屋設計圖,戶型特別接地氣,造價經濟還實用
占地:110.05平方米
帶雙車庫的新中式二層四合院別墅設計圖,戶型布局實用
占地:321平方米
帶庭院的農村一層別墅圖紙設計,外觀時尚好看
占地:多戶型可選
鄉村20萬內三層別墅房屋設計圖,面積適中、戶型經典
占地:100平方米
樓中樓客廳挑高二層別墅設計圖,復式別墅方案推薦
占地:122平方米
120平帶車庫二層農村別墅施工圖,簡約時尚的外觀
占地:119.13平方米
2026二層農村新款別墅新式二層樓房設計圖,非常時尚
占地:多種戶型
三層蓋房子歐式挑空客廳別墅設計圖,外觀漂亮戶型實用
占地:多種戶型
2款現代風格農村兩層別墅設計圖,時尚漂亮
占地:多戶型可選
13×10米現代簡約風格三層別墅圖,坡屋頂和平屋頂完美結合
占地:120平方米
120平方米農村漂亮實用的兩層別墅設計圖紙,含外觀圖片
占地:120平方米
新款三層豪華大氣歐式別墅設計圖,3種戶型設計方案
占地:125平方米左右
三層新農村小別墅設計圖紙,占地120平米,客廳中空,帶大露臺
占地:120平方米
爆款農村一層別墅圖紙設計,看過的都說漂亮實用
占地:144.91平方米
三層歐式豪華別墅設計方案,全套圖紙+效果圖
占地:168平方米
農村兩層新中式別墅圖紙設計圖,外觀圖片大氣,21萬左右
占地:108平方米
推薦:10套新農村自建房設計圖,2026年最新設計
閱讀次數:4825737次
100套鄉村別墅圖片大全,2026年最新設計
閱讀次數:2492203次
6款農村蓋一層平房的設計圖,10萬元就能建起來
閱讀次數:1852637次
這11個一層農村自建房別墅火爆了朋友圈!我最喜歡戶型十!你呢
閱讀次數:750268次
農村6萬元建一層小別墅圖,你敢相信嗎
閱讀次數:567686次
農村5萬塊就能自建房,6套普通房子設計圖分享,你沒看錯!
閱讀次數:419410次
8套農村漂亮三間平房圖片,非常適合在農村修建!
閱讀次數:411197次
農村自建房化糞池怎么做?附方案及施工過程
閱讀次數:391783次
農村一層三間平房設計圖,告別土氣養老房,讓人忍不住點贊
閱讀次數:350581次
新農村二層樓房圖片造價12萬,挑一套回家建房吧!
閱讀次數:349126次
