
|
原來有一個說法“人活七十古來稀”,但是隨著咱們的生活水平越來越好,全國的人均壽命也不斷上升,現在三世同堂、四世同堂的家庭也不少,很多家庭的人口數更是龐大。為了改善生活環境,很多人就會在老家建一棟三四層的房子。 今天給大家介紹的5套農村四層別墅,居住空間大,適合人口多的家庭。 第一套
正面效果圖
鳥瞰圖
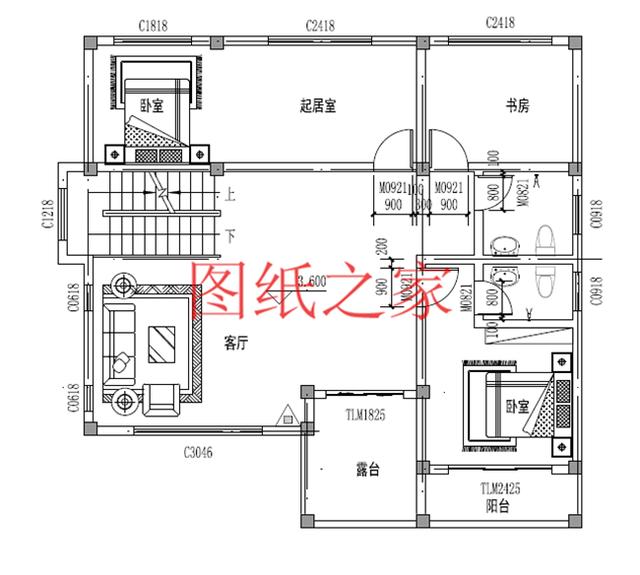
背面效果圖 占地面積:11.6m*16.0m,185平方米左右; 建筑高度:15.873米(含屋頂); 設計功能: 一層戶型:大客廳、神位、廚房、餐廳、衛生間、臥室X2; 二層戶型:主臥(帶衛生間、衣帽間)、臥室X2、衛生間; 三層戶型:主臥(帶衛生間、衣帽間)、臥室、衛生間、餐廳、廚房、臥室(帶衣帽間)、起居室; 四層戶型:臥室X2、衛生間、休閑空間、大露臺;
一層平面圖
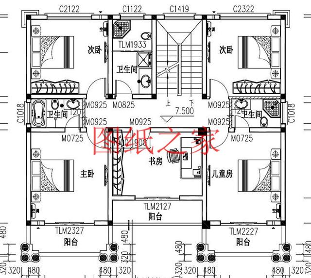
二層平面圖
三層平面圖
四層平面圖 第二套
正面效果圖
鳥瞰圖
背面效果圖 占地面積:8.5m*12.2m,103平方米左右; 建筑高度:15.3米(含屋頂); 設計功能: 一層戶型:門廳、玄關、客廳、廚房、餐廳、衛生間、老人房; 二層戶型:主臥(帶書房、陽臺)、起居室、衛生間、臥室(帶衣帽間); 三層戶型:與二層相同; 四層戶型:空中花園、涼亭、起居室、衛生間、臥室(帶衣帽間);
一層平面圖
二、三層平面圖
四層平面圖 第三套
正面效果圖
鳥瞰圖
背面效果圖 占地面積:12.2m*9.3m,110平方米左右(不包含圍墻); 建筑高度:11.9米(含屋頂); 設計功能: 地下戶型:地下車庫、娛樂室、儲藏間×2、衛生間; 一層戶型:玄關、客廳、廚房、餐廳、臥室(帶衛生間)、棋牌室、衛生間; 二層戶型:客廳、臥室(帶衛生間)、臥室(帶起居室)、書房、衛生間、露臺、陽臺; 三層戶型:臥室(帶衛生間、陽臺)、臥室、健身房、露臺、衛生間;
地下平面圖
一層平面圖
二層平面圖
三層平面圖 第四套
別墅效果圖 占地面積:12.4m*11.6m,143平方米左右; 建筑高度:17.55米(含屋頂); 設計功能: 一層戶型:門廳、客廳、餐廳、廚房、儲藏室、衛生間、老人房、主臥(帶衣帽間、衛生間) 二層戶型:書房、衛生間、次臥、主臥(帶衣帽間、衛生間)、露臺; 三層戶型:主臥(帶衛生間)、次臥X2、衛生間、兒童房(帶衛生間)、書房、陽臺X3; 四層戶型:家庭影院、健身房、衛生間、衣帽間、陽光房、露臺;
一層平面圖
二層平面圖
三層平面圖
四層平面圖 第五套
別墅效果圖 占地面積:17.0m*14.7m,250平方米左右; 建筑高度:16.52米(含屋頂); 設計功能: 一層戶型:客廳、餐廳、廚房、父母房(帶衛生間)、大餐廳(可做臥室)、棋牌室(可自定義功能)、儲藏間(可自定義功能)、衛生間; 二層戶型:客廳上空、起居室、臥室(帶衣帽間和衛生間)、臥室(帶衛生間)、臥室x2;衛生間、露臺; 三層戶型:起居室、臥室(帶衛生間和衣帽間)、臥室x2(帶衛生間)、露臺; 四層戶型:臥室x2(帶衛生間)、露臺x2;
一層平面圖
二層平面圖
三層平面圖
四層平面圖 這幾套別墅的設計圖,你最喜歡哪一套? 圖紙之家-專注農村別墅/自建房設計18年,集合國內200余位經驗豐富的設計師,被評為口碑最好的農村建筑設計公司! |

2026二層農村新款別墅圖片及施工圖,新中式風格古典大氣
占地:200平方米
小型中式一層三合院別墅設計圖,小宅基地照樣建合院
占地:119.73平方米
二層農村自建小別墅設計圖,歐式風格,占地160平方米
占地:160平方米
面寬14.5米三層獨棟別墅設計圖,經典設計,大氣之作
占地:123.85平方米
新農村中式三層四合院別墅設計戶型圖,農村自建四合院效果圖
占地:多種戶型
經典農村三層樓房設計圖,10個不同尺寸戶型,各種戶型供您選擇
占地:多種
180平方農村二層別墅施工設計圖紙,15.8x11.7米
占地:180平方米
26萬二層平頂別墅樓設計圖,客廳中空,占地120平米
占地:120平方米
戳中年輕人喜好!時尚三層自建房,簡約時尚設計,住著舒適自然
占地:169.76平方米
農村兩層半樓房設計圖,平面功能分區明確,布置合理
占地:180平方米
農村二層小洋樓設計圖,帶外觀效果圖,外觀新穎,漂亮
占地:130平方米
最新農村20萬元二層半別墅設計圖,占地僅110多平
占地:110平方米
2026新款農村四層別墅設計圖紙戶型圖,帶挑空客廳
占地:150平方米
150平米經典二層中式別墅設計圖 ,現代中式相結合
占地:154平方米左右
兄弟兩戶雙拼房屋設計圖及外觀圖片,戶型合理
占地:185平方米
110平左右三間兩層農村別墅房屋設計圖,含外觀效果圖
占地:107平方米
新農村住宅設計圖紙含效果圖,方方正正的別墅方案
占地:134平方米左右
三層新中式別墅建筑設計圖紙及圖片,11.66m*9.76m,典雅耐看
占地:114平方米
經典的農村三層小樓房設計圖,外觀圖片時尚、精致
占地:100平方米
戶型獨特的、二層臥室挑高的別墅房屋設計圖,外觀簡歐風格
占地:250平方米
推薦:10套新農村自建房設計圖,2026年最新設計
閱讀次數:4825737次
100套鄉村別墅圖片大全,2026年最新設計
閱讀次數:2492203次
6款農村蓋一層平房的設計圖,10萬元就能建起來
閱讀次數:1852637次
這11個一層農村自建房別墅火爆了朋友圈!我最喜歡戶型十!你呢
閱讀次數:750268次
農村6萬元建一層小別墅圖,你敢相信嗎
閱讀次數:567686次
農村5萬塊就能自建房,6套普通房子設計圖分享,你沒看錯!
閱讀次數:419410次
8套農村漂亮三間平房圖片,非常適合在農村修建!
閱讀次數:411197次
農村自建房化糞池怎么做?附方案及施工過程
閱讀次數:391783次
農村一層三間平房設計圖,告別土氣養老房,讓人忍不住點贊
閱讀次數:350581次
新農村二層樓房圖片造價12萬,挑一套回家建房吧!
閱讀次數:349126次
