
|
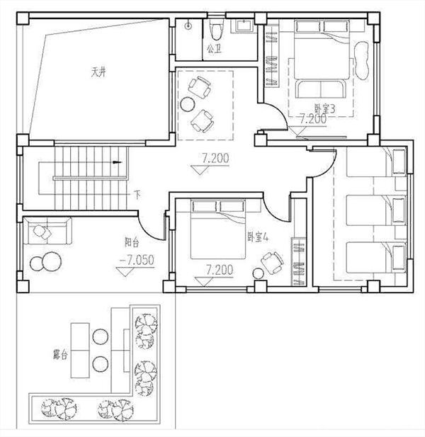
擁有一棟現代簡約風別墅是一個夢想也是一個挑戰,雖然隨著日子推移,現代風別墅不專屬于城里開發商的豪宅系列,但在農村一個村能有一棟就算不錯了,建的好可以花最少的錢擁有最大效果,村里鶴立雞群,很多建房年輕人都心動不已,今天帶來的這款現代風別墅,設計的別具一格不落俗套,建毀的機率很小,造價30w左右,品質人生首選一起看看吧!
簡約而極具層級感與設計感的別墅,水泥與木質材質反差,和諧美觀而削弱了冰冷的感覺,有了家的溫度,配合大量綠植,很有生活氣息,本套戶型窗戶設計的都極大,室內通透采光度很好,增加了時尚感,配合小院帶車庫的設計,年輕人最愛。
室內設計完善而很有自己的特色,及其考究, 景觀區與生活區的穿插,品位十足,很多區域都是為了提升 品質的設計,不是簡單的把臥室堆上去,值得學習。 這樣的現代風別墅你喜歡么? 圖紙之家-專注農村別墅/自建房設計18年,集合國內200余位經驗豐富的設計師,被評為口碑最好的農村建筑設計公司! |

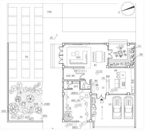
農村建房二樓設計圖,占地百平帶配房設計,顏值高布局好
占地:103.11平方米
150平米左右歐式三層鄉村別墅設計圖,客廳中空
占地:150平方米
簡歐復式四層別墅房屋設計圖,外觀圖高端、大氣
占地:143平方米
10X13米新款歐式三層別墅樓房設計圖,外觀清新明亮
占地:140平方米
100平方米自建房二層設計圖紙及效果圖,12x9米
占地:100平方米
120平方米新農村全套二層施工設計圖紙大全11X11米
占地:120平方米
120平二層別墅房屋設計圖,造型美觀、現代
占地:120平方米
150平米一層7字型別墅設計方案,功能齊全舒適簡約,設計感十足
占地:154.48平方米
150平米一層農村別墅設計圖,養老自住都很不錯,關鍵是造價也很
占地:156平方米
130-140平方米簡歐風格二層別墅設計施工圖紙,簡約大氣
占地:137平方米左右
復式三層雙拼別墅設計圖,客廳中空,旋轉樓梯
占地:350平方米
獨棟兩層歐式別墅設計圖紙(效果圖+建筑施工圖)
占地:125平方米
平屋頂二層自建房帶商鋪別墅設計圖紙及外觀圖
占地:225平方米
2026最好看的農村三層樓房圖片及施工圖紙,客廳寬敞
占地:120平方米
110平左右農村復式二層小樓設計圖,外觀非常受歡迎
占地:112平方米
100平復式三層別墅房屋設計圖,客廳挑高,采光好,臥室多
占地:100平方米
三層帶露臺21萬別墅設計圖,占地面積100平米左右
占地:106平方米
農村自建房別再做傳統客廳!“客廳+茶室”一體設計,寬敞明亮
占地:143.73平方米
二層農村房屋設計圖紙,帶效果圖和全套施工方案圖
占地:多種戶型
農村新中式別墅設計圖及效果圖,造價25萬左右
占地:95平方米
推薦:10套新農村自建房設計圖,2026年最新設計
閱讀次數:4825737次
100套鄉村別墅圖片大全,2026年最新設計
閱讀次數:2492203次
6款農村蓋一層平房的設計圖,10萬元就能建起來
閱讀次數:1852637次
這11個一層農村自建房別墅火爆了朋友圈!我最喜歡戶型十!你呢
閱讀次數:750268次
農村6萬元建一層小別墅圖,你敢相信嗎
閱讀次數:567686次
農村5萬塊就能自建房,6套普通房子設計圖分享,你沒看錯!
閱讀次數:419410次
8套農村漂亮三間平房圖片,非常適合在農村修建!
閱讀次數:411197次
農村自建房化糞池怎么做?附方案及施工過程
閱讀次數:391783次
農村一層三間平房設計圖,告別土氣養老房,讓人忍不住點贊
閱讀次數:350581次
新農村二層樓房圖片造價12萬,挑一套回家建房吧!
閱讀次數:349126次
