
|
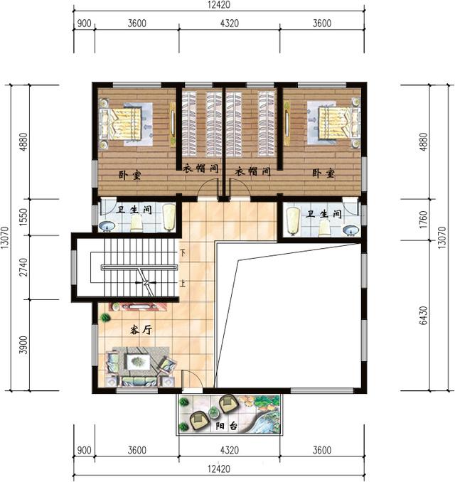
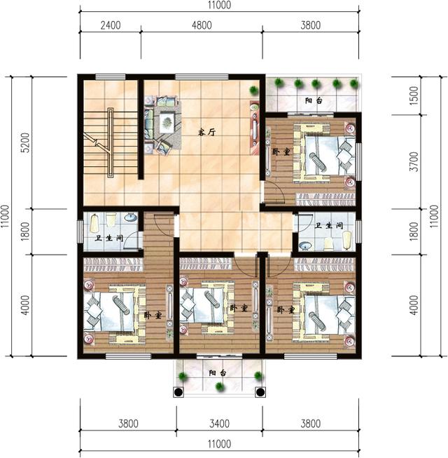
現在年輕人都喜歡住好房子,在農村一樣,建造漂亮的農村別墅來居住,只有這樣,農村的大姑娘和小媳婦才愿意在農村待著,要不能大家都想在城里買房。其實在農村建一棟別墅,她們更加歡天喜地。下面看看村里的人都喜歡的農村別墅設計圖,漂亮實用的戶型。 此戶型開間11米,進深11米,占地面積126.3平方米,建筑面積342.8平方米,建筑高度12.1米,建造磚混結構造價35萬左右。
對此你怎么看,有沒合適你的 圖紙之家-專注農村別墅/自建房設計18年,集合國內200余位經驗豐富的設計師,被評為口碑最好的農村建筑設計公司! |

面寬16米三層法式別墅設計圖,設計新穎別致,建成后美不勝收
占地:162.07平方米
歐式二層別墅設計圖,漂亮實用性價比還高,13米乘10米
占地:130平方米
農村一層中式三合院別墅戶型圖,這才是適合中國人建的好房子
占地:218.77平方米
豪華二層別墅設計圖紙及效果圖,帶車庫,歐式別墅方案
占地:170平方米
農村兄弟倆雙拼別墅房屋設計圖,外觀質樸
占地:195平方米
105平一層簡單農村別墅設計圖,造價8萬左右
占地:105平方米
新農村兄弟合建三層雙拼房屋設計方案圖,開間18米有全套圖紙
占地:237.21平方米
農村建房二樓設計圖,占地百平帶配房設計,顏值高布局好
占地:103.11平方米
復式三層別墅設計圖片及全套圖紙,客廳中空,外觀為歐式建筑的
占地:175平方米
農村120平三層樓房設計圖,造型現代,帶屋頂花園
占地:120平方米
簡約實用農村自建房戶型圖,美觀經濟又通透,南北通透住得爽!
占地:160.6平方米
240平方米新農村漂亮的兄弟雙拼別墅設計圖紙,單戶120平
占地:239平方米
造價40萬三層大氣自建房設計圖紙,鄉村別墅建造圖
占地:159.609平方
100平方米自建三層半別墅設計圖紙,帶地下車庫
占地:100平方米
農村一層平房設計圖,人字坡戶型簡單大方,養老自住都不錯
占地:139.2平方米
占地170平米2026新款三層別墅設計圖片及設計方案
占地:170平方米
120平方米農村一層平房別墅設計圖紙,含外觀效果圖
占地:125平方米
農村10萬元一層小別墅設計圖紙,戶型實用又合理
占地:130平方米
簡單農村二層自建房子設計圖,主體18萬就能建好,太心動了!
占地:124.53
帶地下室三層別墅設計圖紙(含外觀效果圖),別墅設計方案
占地:134平方米
推薦:10套新農村自建房設計圖,2026年最新設計
閱讀次數:4825737次
100套鄉村別墅圖片大全,2026年最新設計
閱讀次數:2492203次
6款農村蓋一層平房的設計圖,10萬元就能建起來
閱讀次數:1852637次
這11個一層農村自建房別墅火爆了朋友圈!我最喜歡戶型十!你呢
閱讀次數:750268次
農村6萬元建一層小別墅圖,你敢相信嗎
閱讀次數:567686次
農村5萬塊就能自建房,6套普通房子設計圖分享,你沒看錯!
閱讀次數:419410次
8套農村漂亮三間平房圖片,非常適合在農村修建!
閱讀次數:411197次
農村自建房化糞池怎么做?附方案及施工過程
閱讀次數:391783次
農村一層三間平房設計圖,告別土氣養老房,讓人忍不住點贊
閱讀次數:350581次
新農村二層樓房圖片造價12萬,挑一套回家建房吧!
閱讀次數:349126次
