?
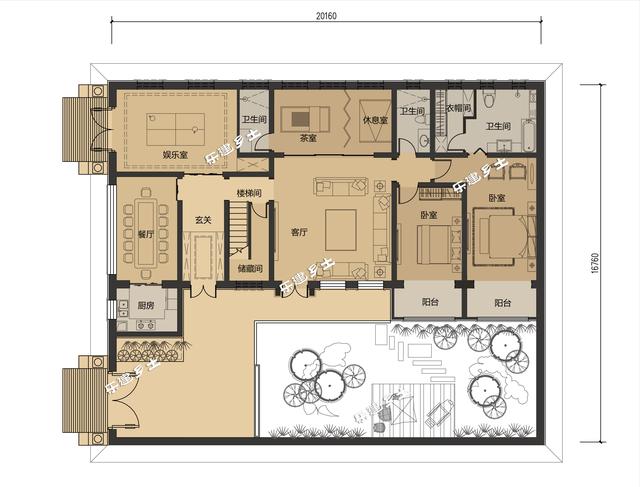
該案例位于河北省任丘市,占地尺寸為20乘16米。本案例的亮點是根據家庭成員的需要,設計了露臺、兒童樂園、娛樂室等豐富的公共活動空間。
效果圖
從建筑整體外觀上看,該住宅樸實自然,與其他住宅并沒有什么過多的不同,符合鄉村風貌,整體配色看起來也非常低調。
住宅屋頂的寬敞露臺令人眼前一亮,家人平日便可在此喝茶賞景,其樂融融。使住戶能夠在農村充分地沐浴陽光欣賞風景。
平面圖
一層臥室居住部分布置在整個住宅的里側,安靜舒適;客廳設計的開敞大氣,符合鄉村生活習慣;娛樂室直接對外開門,合理分區,使用便捷。
▲ 首層平面圖
因為家中有兒童,二層專門設計了兒童樂園,并單獨設置了影音室,充分考慮休閑娛樂功能,注重生活品質。
▲ 二層平面圖
住宅設計結構緊湊,功能齊全,提升了整體居住品質。可見宅院的主人一定是一個懂得安排生活,享受生活的人。
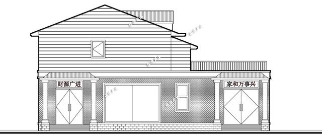
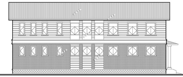
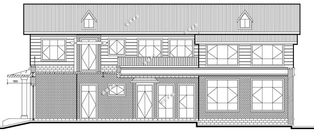
立面圖
▲ 南立面
▲ 北立面
▲ 東立面
▲ 西立面
這套美式風格的自建房設計,貼近生活,內部布局緊湊且功能多樣,充分貼合了家庭成員的需要,提升了居住品質,外觀精致,內部實用。







































