
|
農村自建房最重要的還是實用性,不需要設計的多么奢華復雜,外觀造型只要美觀大氣就可以了。今天給大家介紹的6套農村三層別墅,戶型設計得非常簡潔實用,室內空間得到了充分利用,住在里邊舒適方便,而且施工簡單、造價也不高,非常受大家的歡迎。 第一套
正面效果圖
鳥瞰圖
背面效果圖 占地面積:13.0m*12.6m,一層占地160平方米左右(含外門庭); 建筑層高:三層; 建筑高度:13.08米(含屋頂); 設計功能: 一 層:客廳、廚房、餐廳、臥室、棋牌室、衛生間、車庫(不需要車庫可以做成臥室); 二 層:客廳、臥室(帶書房)、臥室x3、衛生間、陽臺; 三 層:健身房、臥室x3、衛生間、大露臺、陽臺;
一層平面圖
二層平面圖
三層平面圖 第二套
正面效果圖
鳥瞰圖
背面效果圖 占地面積:8.3m×13m,一層占地110平方米左右; 建筑層高:三層; 建筑高度:12.6米(含屋頂); 設計功能: 一 層:客廳、廚房、餐廳、臥室、衛生間、堂屋、洗衣房; 二 層:客廳、、臥室x3、書房、衛生間、陽臺; 三 層:臥室x3、書房、衛生間、大露臺;
一層平面圖
二層平面圖
三層平面圖 第三套
正面效果圖
鳥瞰圖
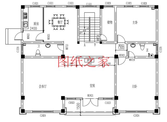
背面效果圖 占地面積:18.0m*13.2m,一層占地230平方米左右(含外門庭); 建筑層高:三層; 建筑高度:13.36米(含屋頂); 設計功能: 一 層:客廳、廚房、餐廳、父母房(帶衛生間、衣帽間)、KTV房(帶衛生間)、儲藏間; 二 層:客廳上空、臥室(帶衛生間)×3、書房; 三 層:臥室(帶衛生間)×2、活動室、健身房、書房、衛生間、露臺;
一層平面圖
二層平面圖
三層平面圖 第四套
正面效果圖
鳥瞰圖
背面效果圖 占地面積:13.0m*12.6m,一層占地160平方米左右(含外門庭); 建筑層高:三層; 建筑高度:13.08米(含屋頂); 設計功能: 一 層:客廳、廚房、餐廳、臥室、棋牌室、衛生間、車庫(不需要車庫可以做成臥室); 二 層:客廳、臥室(帶書房)、臥室x3、衛生間、陽臺; 三 層:健身房、臥室x3、衛生間、大露臺、陽臺;
一層平面圖
二層平面圖
三層平面圖 第五套
正面效果圖
鳥瞰圖
背面效果圖 占地面積:15.6m*10.7m(尺寸含門廊),一層165建筑平方米; 建筑層高:三層; 建筑高度:12.3米(含屋頂); 設計功能: 一 層:堂屋、會客廳、廚房、餐廳、主臥(帶衛生間)、臥室、儲藏室、衛生間; 二 層:客廳,臥室(帶衛生間)、臥室×2(帶衣帽間)、臥室、衛生間; 三 層:臥室(帶衣帽間)、臥室、衛生間×2、露臺×2;
一層平面圖
二層平面圖
三層平面圖 第六套
別墅效果圖 占地面積:12.0m*11.4m,135平方米左右; 建筑層高:三層; 建筑高度:12.01米(含屋頂); 設計功能: 一 層:客廳、餐廳、廚房、臥室、衛生間、儲藏間; 二 層:客廳上空、臥室x3、衛生間、陽臺x2; 三 層:套間(帶衛生間和衣帽間和書房)、臥室(帶衛生間)、露臺;
一層平面圖
二層平面圖
三層平面圖 這幾套別墅的設計圖,你最喜歡哪一套? 我們提供數千套自建別墅設計圖,讓您建房無憂。需要查看詳情或更多圖紙請關注【圖紙之家】或點擊下面圖片。 圖紙之家-專注農村別墅/自建房設計18年,集合國內200余位經驗豐富的設計師,被評為口碑最好的農村建筑設計公司! |

復式別墅新農村二層房屋設計圖紙,屋頂錯落有致
占地:多戶型可選
歐式小型二層別墅效果圖片,帶全套Cad別墅設計圖紙
占地:120平方米
農村10萬元一層小別墅設計圖,農村一層自建房屋設計圖
占地:多種戶型
新農村三層房屋住宅設計圖紙大全(含效果圖)
占地:122平方米
185平方米二層自建別墅設計施工圖紙及外觀效果圖,15x13米
占地:186平方米
面寬18米二層農村大別墅設計圖,可帶電梯,舒適又實用
占地:138.29平方米
現代風平屋頂三層半農村小別墅設計圖,面寬僅7米
占地:90平方米
豪華三層別墅設計圖紙,全套施工方案帶效果圖
占地:130平方米
農村三合院設計圖及效果圖,自建三合院圖紙
占地:470平方米
農村10萬自建一層平房設計圖,占地面積120平米
占地:120平方米
?13.5x9米這尺寸火了!好多人家照著建這款二層別墅,簡單實用
占地:115.11平方米
南方新農村三層別墅設計圖紙,含效果圖,帶車庫
占地:120平方米
占地200平農村二層自建房設計方案戶型,陽面臥室多
占地:208平方米
經濟小戶型二層中式四合院(三合院)設計圖紙,帶堂屋和庭院
占地:143.544平方米
簡單農村二層自建房子設計圖,主體18萬就能建好,太心動了!
占地:124.53
雅致的鄉下二層蓋別墅設計圖紙,造價35萬左右
占地:178平方米
10X13米新款歐式三層別墅樓房設計圖,外觀清新明亮
占地:140平方米
農村二層半帶露臺別墅圖片及設計圖,戶型方案比較經典
占地:123平方米
面寬13米簡簡單單一層農村自建別墅設計圖,方正大氣經濟宜居
占地:126.1平方米
農村二間二層房子設計方案圖,造型小巧精致,10米乘12米
占地:110平方米
推薦:10套新農村自建房設計圖,2026年最新設計
閱讀次數:4825737次
100套鄉村別墅圖片大全,2026年最新設計
閱讀次數:2492203次
6款農村蓋一層平房的設計圖,10萬元就能建起來
閱讀次數:1852637次
這11個一層農村自建房別墅火爆了朋友圈!我最喜歡戶型十!你呢
閱讀次數:750268次
農村6萬元建一層小別墅圖,你敢相信嗎
閱讀次數:567686次
農村5萬塊就能自建房,6套普通房子設計圖分享,你沒看錯!
閱讀次數:419410次
8套農村漂亮三間平房圖片,非常適合在農村修建!
閱讀次數:411197次
農村自建房化糞池怎么做?附方案及施工過程
閱讀次數:391783次
農村一層三間平房設計圖,告別土氣養老房,讓人忍不住點贊
閱讀次數:350581次
新農村二層樓房圖片造價12萬,挑一套回家建房吧!
閱讀次數:349126次
