
|
很多從農村走出來的人雖然在城市里定居,心里仍然懷念著自己的家鄉,那里不僅有自己難忘的回憶,還有割舍不斷的親情。更何況在農村住得更舒服,吃得也更健康,好處不止一點。在農村老家建一棟漂亮的房子,可以讓父母安享晚年,自己閑的時候也能回家休假。 下邊給大家推薦3套農村二層別墅,占地110平方米左右,造價只要20萬,快來看看吧! 第一套
正面效果圖
鳥瞰效果圖
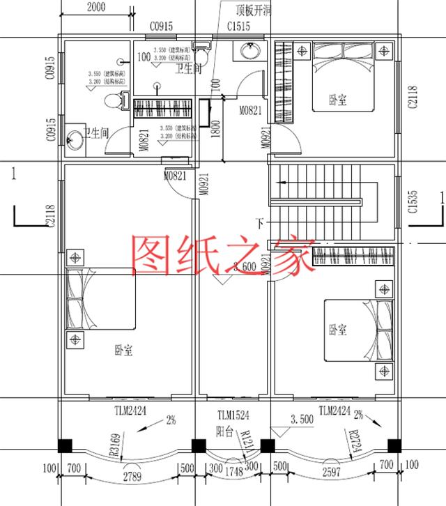
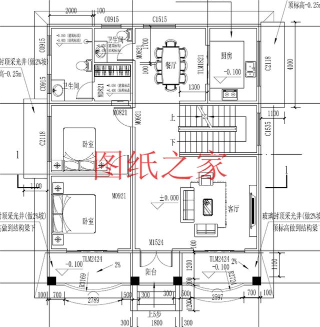
背面效果圖 占地面積:11.5m*9.5m,110平方米左右; 建筑層高:二層; 建筑高度:9.9米(含屋頂); 設計功能: 一層戶型:客廳、餐廳、廚房、衛生間、主臥(帶衛生間); 二層戶型:客廳、臥室(帶衛生間)、臥室、書房、衛生間、陽臺、廚房(可做儲藏間);
一層平面圖
二層平面圖 第二套
正面效果圖
鳥瞰效果圖
背面效果圖 占地面積:13.0m*9.5m,110平方米左右; 建筑層高:二層; 建筑高度:9.8米(含屋頂); 設計功能: 一層戶型:客廳、餐廳、廚房、衛生間、臥室; 二層戶型:客廳、臥室×4、陽臺;
一層平面圖
二層平面圖 第三套
正面效果圖
鳥瞰效果圖
背面效果圖 占地面積:9.8m*12.0m,110平方米左右; 建筑層高:二層; 建筑高度:9.9米(含屋頂); 設計功能: 地下戶型:藏酒間、雜物間、書房、采光井X2 一層戶型:客廳、餐廳、廚房、衛生間、臥室(帶衛生間、衣帽間)、臥室; 二層戶型:臥室(帶衛生間、衣帽間)、衛生間、臥室X2、陽臺;
地下平面圖
一層平面圖
二層平面圖 這幾套別墅的設計圖,你最喜歡哪一套? 我們提供數千套自建別墅設計圖,讓您建房無憂。需要查看詳情或更多圖紙請關注【圖紙之家】或點擊下面圖片。 圖紙之家-專注農村別墅/自建房設計18年,集合國內200余位經驗豐富的設計師,被評為口碑最好的農村建筑設計公司! |

四開間二層別墅設計圖,造型精美經典舒適,火爆全村的戶型
占地:150.882平方米
陽臺封閉的簡約實用二層別墅設計圖,15x12.8米
占地:165平方米
農村二層舒適好房,這款四開間別墅設計圖真的很不錯
占地:220.46平方米
新中式農村自建二層別墅設計圖,占地160平米左右,客廳中空
占地:160平方米
三層帶露臺21萬別墅設計圖,占地面積100平米左右
占地:106平方米
新中式高端三層雙拼自建房別墅設計圖,豪華霸氣的外觀
占地:256.02平方米左
130平米新農村自建房屋施工建筑圖紙及效果圖
占地:132平米
帶車庫徽派風格三層別墅房屋設計圖,新農村住宅設計推薦
占地:140平方米
一層中式四合院別墅設計方案圖,含外觀效果圖
占地:360平方米含院子
高顏值農村二層別墅設計圖,顏值在線造價不高,建房好選擇!
占地:216.93平方米
150平米一層農村別墅設計圖,養老自住都很不錯,關鍵是造價也很
占地:156平方米
新中式三層豪華大氣三層別墅自建房屋設計圖,帶地下室,土豪專
占地:194平方米
110平方米新農村三層房屋設計圖紙,含效果圖,帶車庫
占地:113平方米
35萬內三層自建別墅設計圖,外觀美觀,戶型舒適
占地:135平方米
170平方米農村二層房屋設計施工圖,外觀圖時尚、好看
占地:172平方米
130平米最新氣派農村四層樓房設計圖,四層樓房圖片
占地:130平方米
農村四間二層別墅設計方案圖,外觀精致、時尚
占地:152平方米
大氣農村一層自建別墅方案,絕對讓人羨慕的“平房”
占地:158.39平方米
農村27萬二層自建別墅設計圖,占地140平米左右,戶型極好
占地:140平方米
高端二層新中式四合院別墅設計圖,含全套CAD施工圖
占地:217平方米
推薦:10套新農村自建房設計圖,2026年最新設計
閱讀次數:4825737次
100套鄉村別墅圖片大全,2026年最新設計
閱讀次數:2492203次
6款農村蓋一層平房的設計圖,10萬元就能建起來
閱讀次數:1852637次
這11個一層農村自建房別墅火爆了朋友圈!我最喜歡戶型十!你呢
閱讀次數:750268次
農村6萬元建一層小別墅圖,你敢相信嗎
閱讀次數:567686次
農村5萬塊就能自建房,6套普通房子設計圖分享,你沒看錯!
閱讀次數:419410次
8套農村漂亮三間平房圖片,非常適合在農村修建!
閱讀次數:411197次
農村自建房化糞池怎么做?附方案及施工過程
閱讀次數:391783次
農村一層三間平房設計圖,告別土氣養老房,讓人忍不住點贊
閱讀次數:350581次
新農村二層樓房圖片造價12萬,挑一套回家建房吧!
閱讀次數:349126次
