
|
年輕人總是在努力地工作生活,偶爾也會停下腳步,想象到未來兒孫滿堂的自己,就難免想要建造一個溫馨舒適的家。回農村老家修建一棟別墅吧,等年老之后可以安穩的回憶人生。 下邊給大家推薦3套占地150平方米的二層別墅,都是不會過時的經典戶型,一起來來欣賞! 第一套
正面效果圖
鳥瞰效果圖
背面效果圖 占地面積:12.3m*13.8m,147平方米左右; 建筑高度:9.9米(含屋頂); 設計功能: 一層戶型:客廳、餐廳、廚房、衛生間、臥室(帶衛生間)、臥室; 二層戶型:家庭影院、主臥(帶衛生間)、臥室、書房、麻將室、衛生間、陽臺、大露臺;
一層平面圖
二層平面圖 第二套
正面效果圖
鳥瞰效果圖
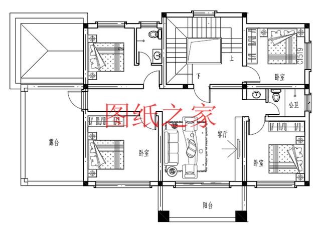
背面效果圖 占地面積:16.1m*11.3m,建筑面積150平方米左右; 建筑高度:9.3米(含屋頂); 設計功能: 一層戶型:玄關、客廳、餐廳、廚房、衛生間、主臥(帶衛生間)、臥室、棋牌室、儲藏間; 二層戶型:客廳、主臥(帶衛生間)、臥室、衛生間、大露臺;
一層平面圖
二層平面圖 第三套
正面效果圖
鳥瞰效果圖
背面效果圖 占地面積:16.0m*11.6m,占地面積156平方米左右; 建筑高度:9.8米(含屋頂); 設計功能: 一層戶型:客廳、餐廳、廚房、衛生間、臥室、車庫、伙房、雜物間; 二層戶型:客廳、臥室(帶衛生間)、臥室x3、衛生間、陽臺、大露臺;
一層平面圖
二層平面圖 這幾套別墅的設計圖,你最喜歡哪一套? 我們提供數千套自建別墅設計圖,讓您建房無憂。需要查看詳情或更多圖紙請關注【圖紙之家】或點擊下面圖片。 圖紙之家-專注農村別墅/自建房設計18年,集合國內200余位經驗豐富的設計師,被評為口碑最好的農村建筑設計公司! |

小平米四層自建房屋設計圖紙,戶型簡單實用,占地80平方米
占地:80平方米
140平方米歐式三層別墅建筑設計圖紙,復式結構
占地:140平方米
50萬左右農村豪華二層別墅設計圖 ,大廳中空,外觀精美
占地:210平方米
四間兩層別墅房屋設計圖,外觀效果圖好看
占地:235平方米
農村三層帶露臺、帶車庫房屋設計圖,含外觀圖片
占地:155平方米
田園風格別墅設計圖及外觀圖片,樓中樓結構
占地:140平方米
時尚大氣的三層現代風別墅設計圖,露臺+挑空客廳
占地:321平方米
經典小戶型雙拼二層新農村房屋住宅設計圖,含效果圖
占地:80平方米
農村15萬元一層半小樓圖,最新的戶型設計
占地:182.31平方米
2026戶型方正三層農村小別墅設計圖紙(含外觀圖片)
占地:150平方米
120平帶車庫二層農村別墅施工圖,簡約時尚的外觀
占地:119.13平方米
13×10米現代簡約風格三層別墅圖,坡屋頂和平屋頂完美結合
占地:120平方米
100平方米左右新農村二層房屋設計建筑CAD圖紙帶外觀效果圖
占地:多戶型可選
兩層半20萬農村自建房,占地120平米左右
占地:120平方米
農村四層雙拼別墅房屋設計圖,造型現代、大氣
占地:220平方米
大平方大面積別墅設計方案圖,樓中樓客廳中空
占地:247平方米
175平大客廳三層別墅房屋設計圖,含外觀造型現代,美觀
占地:175平方米
倆兄弟蓋房子的雙拼設計圖,小宅基地設計方案
占地:151.91平方米
面寬10米高品質二層別墅設計方案,造價不高顏值很高,非常適合
占地:137.63平方米
農村三層四合院別墅設計圖紙,自建房建這棟面子十足
占地:227.49平方米
推薦:10套新農村自建房設計圖,2026年最新設計
閱讀次數:4825737次
100套鄉村別墅圖片大全,2026年最新設計
閱讀次數:2492203次
6款農村蓋一層平房的設計圖,10萬元就能建起來
閱讀次數:1852637次
這11個一層農村自建房別墅火爆了朋友圈!我最喜歡戶型十!你呢
閱讀次數:750268次
農村6萬元建一層小別墅圖,你敢相信嗎
閱讀次數:567686次
農村5萬塊就能自建房,6套普通房子設計圖分享,你沒看錯!
閱讀次數:419410次
8套農村漂亮三間平房圖片,非常適合在農村修建!
閱讀次數:411197次
農村自建房化糞池怎么做?附方案及施工過程
閱讀次數:391783次
農村一層三間平房設計圖,告別土氣養老房,讓人忍不住點贊
閱讀次數:350581次
新農村二層樓房圖片造價12萬,挑一套回家建房吧!
閱讀次數:349126次
