
|
現在農村自建房的人大都是80后和90后,雖然自家在城市里工作生活,但是心里仍然有著深厚的鄉土情結。賺錢之后就想著在農村修建一棟自己的房子,讓留在老家的父母安心養老的同時也給自己留一個依靠,更能在村里揚眉吐氣! 現在給大家推薦2套農村三層別墅,占地130平造價不高,多個臥室非常實用,外形簡單又富有設計感,年輕人和老人都喜歡! 第一套
正面效果圖
鳥瞰效果圖
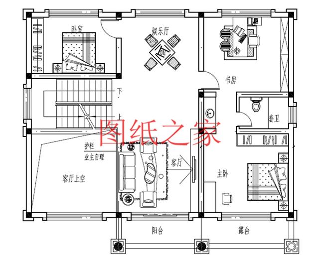
背面效果圖 占地面積:12.7m*12.6m,一層占地136平方米左右; 建筑高度:12.2米(含屋頂); 設計功能: 一層戶型:玄關、客廳、廚房、餐廳、臥室、娛樂室、儲藏間、衛生間; 二層戶型:客廳上空、家庭廳、臥室(帶衛生間)、兒童房、書房,露臺、衛生間、陽臺; 三層戶型:臥室(帶衛生間)、臥室x2、健身房、衛生間、大露臺;
一層平面圖
二層平面圖
三層平面圖 第二套
正面效果圖
鳥瞰效果圖
背面效果圖 占地面積:13.0m*11.5m,一層占地136平方米左右; 建筑高度:12.78米(含屋頂); 設計功能: 一層戶型:客廳、廚房、餐廳、臥室×2、衛生間; 二層戶型:客廳上空、客廳、臥室(帶書房,衛生間)、臥室、娛樂廳、陽臺; 三層戶型:茶室、娛樂廳、臥室x3、衛生間、大露臺;
一層平面圖
二層平面圖
三層平面圖 這兩套別墅的設計圖,你最喜歡哪一套? 圖紙之家-專注農村別墅/自建房設計18年,集合國內200余位經驗豐富的設計師,被評為口碑最好的農村建筑設計公司! |

二層樓房圖片及施工圖紙,占地160平米左右,帶車庫
占地:160平方米
復式大客廳帶旋轉樓梯二層別墅設計圖,大廳很闊氣
占地:193平方米左右
新農村二層客廳挑高樓房設計圖,外觀歐式風格
占地:178平方米
四開間一層自建房設計圖,四臥二廳+棋牌室+書房
占地:181.29平方米
被包工頭夸爆的二層別墅戶型!建好未來幾年必火
占地:189.98平方米
125平方米新農村三層自建別墅施工設計圖,13x10米
占地:125平方米
建房老師傅力薦!這塊二層簡歐設計圖,花錢少、顏值高,必火
占地:131.65平方米
自建二層獨棟別墅建筑施工圖,含效果圖和全套設計圖紙
占地:198.72平方米
爆款農村兄弟雙拼自建房設計圖,占地不大舒適宜居
占地:147.2平方米
農村四間兩層樓房設計圖,帶車庫,時尚經濟,最適合農村施工的
占地:180平方米
16米乘12米農村二層別墅設計圖,布局舒適寬敞、客廳挑空
占地:188.18平方米
新農村四層獨棟復式別墅設計圖,設計豪華時尚
占地:140平方米
新農村私人別墅建筑設計施工圖,全套別墅設計圖紙
占地:多種戶型
簡歐二層別墅設計圖紙含效果圖片,寶家鄉墅經典風格
占地:137.34平方米
新古典中式風格別墅設計圖,全套施工圖+效果圖
占地:188平方米
農村兩間兩層樓房設計圖,造價15萬左右,獨立的廚房設計,干凈
占地:95平方米
二層簡歐風格自建房別墅戶型設計圖,造價26萬
占地:132.4平方米
現代風格二層別墅設計圖,外觀時尚、大氣
占地:153平方米
農村二層半樓房效果圖及全套設計圖紙,自建房簡單實用
占地:121平方米
面寬14米農村別墅二層別墅戶型設計,經濟實用
占地:107.1平方米
推薦:10套新農村自建房設計圖,2026年最新設計
閱讀次數:4825737次
100套鄉村別墅圖片大全,2026年最新設計
閱讀次數:2492203次
6款農村蓋一層平房的設計圖,10萬元就能建起來
閱讀次數:1852637次
這11個一層農村自建房別墅火爆了朋友圈!我最喜歡戶型十!你呢
閱讀次數:750268次
農村6萬元建一層小別墅圖,你敢相信嗎
閱讀次數:567686次
農村5萬塊就能自建房,6套普通房子設計圖分享,你沒看錯!
閱讀次數:419410次
8套農村漂亮三間平房圖片,非常適合在農村修建!
閱讀次數:411197次
農村自建房化糞池怎么做?附方案及施工過程
閱讀次數:391783次
農村一層三間平房設計圖,告別土氣養老房,讓人忍不住點贊
閱讀次數:350581次
新農村二層樓房圖片造價12萬,挑一套回家建房吧!
閱讀次數:349126次
