
|
現在城里的房價越來越高,很多人都愿意回農村去建房。與城里買房不同的是,農村自建房需要從零開始,房屋的造型風格、層數、功能布局都需要設計,還有最重要的房屋的尺寸。房子的開間進深尺寸必須與宅基地相符才能修建。 下邊給大家介紹2套大戶型的農村二層別墅,都是采用平頂設計,屋頂空間可以得到充分利用,例如用來養花、觀景、晾曬,有需要的朋友們可以收藏一下哦。 第一套
正面效果圖
鳥瞰效果圖
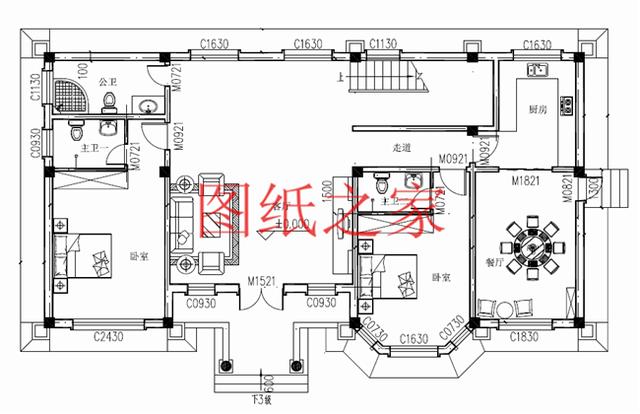
背面效果圖 占地面積:18.0m*9.0m,170平方米左右; 建筑層高:二層; 建筑高度:11.1米(含屋頂); 設計功能: 一層戶型:客廳、餐廳、廚房、衛生間、臥室(帶衛生間)×2; 二層戶型:臥室(帶衛生間、小臥室)×2、臥室(帶衛生間)×3;
一層平面圖
二層平面圖
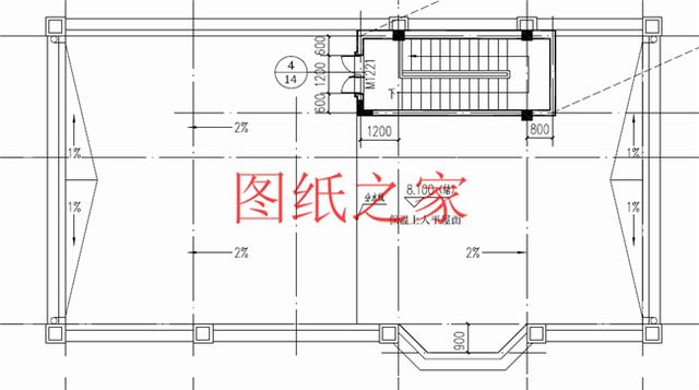
屋頂平面圖 第二套
別墅效果圖 占地面積:14.0m*13.8m,190平方米左右; 建筑層高:二層; 建筑高度:9.60米(含屋頂); 設計功能: 一層戶型:門廳、客廳、廚房、餐廳、臥室(含衛生間、衣帽間)、臥室x2、書房、衛生間、洗衣房(儲物間); 二層戶型:起居室(客廳)、臥室(帶衣帽間和衛生間)、臥室x3、書房、衛生間、陽臺;
一層平面圖
二層平面圖
屋頂平面圖 這幾套別墅的設計圖,你最喜歡哪一套? 圖紙之家-專注農村別墅/自建房設計18年,集合國內200余位經驗豐富的設計師,被評為口碑最好的農村建筑設計公司! |

全套歐式二層別墅設計cad圖紙,含效果圖,帶車庫
占地:211平方米
面寬8米也能建別墅,小面寬農村三層別墅設計圖
占地:93.83平方米
150平米田園風格二層別墅設計圖紙,沉穩大氣有內涵
占地:150平方米
80平農村房屋設計圖,小戶型自建房三層別墅推薦
占地:80平方米
簡歐漂亮農村二層別墅設計方案圖紙,12米乘9米
占地:多戶型可選
二層樓房圖片及施工圖紙,占地160平米左右,帶車庫
占地:160平方米
新農村雙拼別墅全套設計圖方案及效果圖,餐廳廚房獨立設計
占地:338.02平方米
12米面寬一層農村別墅設計圖,實用又舒適
占地:110.41平方米
農村中式兩層雙拼別墅房屋設計圖,含效果圖片
占地:200平方米
帶堂屋設計一層三合院設計圖,白墻黛瓦古韻悠悠,比高層舒服接
占地:179.37平方米
三層歐式自建房別墅設計方案,11x11米洋氣實用,飽受大家好評
占地:127平方米
復式大客廳帶旋轉樓梯二層別墅設計圖,大廳很闊氣
占地:193平方米左右
兄弟共建一層雙拼平房設計圖,省錢省心又可相互照應
占地:177.27平方米
農村三間一層別墅設計圖,經濟實用還好看
占地:139.56平方米
開間12米的三層簡歐別墅設計圖,農村建房布局實用住的舒服
占地:108.15平方米
二層雙拼別墅外觀效果圖及施工圖,帶露臺,14乘12米
占地:168平方米
二層半大客廳復式別墅房屋設計圖,客廳寬闊明亮
占地:125平方米
新農村兩層樓房設計圖,占地110平米,戶型簡單實用
占地:110平方米
農村小戶型三層別墅設計圖,平屋頂,造價20萬左右
占地:80平方米
小型新中式二層小別墅圖紙設計方案,好看造價不高
占地:232.98平方米
推薦:10套新農村自建房設計圖,2026年最新設計
閱讀次數:4825737次
100套鄉村別墅圖片大全,2026年最新設計
閱讀次數:2492203次
6款農村蓋一層平房的設計圖,10萬元就能建起來
閱讀次數:1852637次
這11個一層農村自建房別墅火爆了朋友圈!我最喜歡戶型十!你呢
閱讀次數:750268次
農村6萬元建一層小別墅圖,你敢相信嗎
閱讀次數:567686次
農村5萬塊就能自建房,6套普通房子設計圖分享,你沒看錯!
閱讀次數:419410次
8套農村漂亮三間平房圖片,非常適合在農村修建!
閱讀次數:411197次
農村自建房化糞池怎么做?附方案及施工過程
閱讀次數:391783次
農村一層三間平房設計圖,告別土氣養老房,讓人忍不住點贊
閱讀次數:350581次
新農村二層樓房圖片造價12萬,挑一套回家建房吧!
閱讀次數:349126次
