
|
每一個燈火通明的房子,都是一個寧靜、溫馨的家,每一個溫馨的家都有愛和溫暖在。所以,我們的樓房設計圖不需要多大,舒適、夠住就好。
白色的房子,紅色的屋頂、紅色的大門和門框,涼亭式的陽臺,美觀而洋氣。門前的花池、陽臺上的盆栽和爬山虎將這個素雅的別墅裝點的甜美、清爽,就像童話故事中的生活,簡單,卻讓人向往。
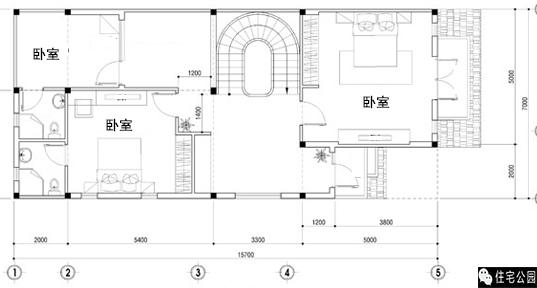
平面布局圖: 此戶型坐西朝東,面寬僅有7米,入戶門在東側,通過臺階進入,臺階的設計既可以緩解從室外進入室內,也有步步高升的美好寓意。客廳和餐廳朝向陽面,有花池點綴,臥室也在陽面,并且有獨立的衛生間和衣帽間,可以做老人房。北側是洗衣房和廚房。
二層有3個臥室、1個陽臺,安靜而祥和。 室內裝修參考: 此戶型是旋轉樓梯的設計,唯美、柔和,樓梯旁邊有綠化和吊蘭,室內空氣清晰、環境好。
木地板和嵌入式的木衣柜,自然、體感好。條紋的地毯和條紋的棉被格調統一,又帶一點調皮。 衣柜床頭對稱的設計和中間張貼的壁畫都是對居室一個很好的藝術裝飾。
這樣的居室,是你所向往的嗎? 圖紙之家-專注農村別墅/自建房設計18年,集合國內200余位經驗豐富的設計師,被評為口碑最好的農村建筑設計公司! |

三層新中式別墅建筑設計圖紙及圖片,11.66m*9.76m,典雅耐看
占地:114平方米
大面寬一層別墅設計圖紙,新中式風格兩款戶型
占地:多戶型可選
12x9米自建一層小別墅設計圖,占地不大造價低,簡單舒適人人夸
占地:108.36平方米
經典小戶型二層新農村房屋設計圖紙,客廳中空,造價20萬
占地:94平方米
一層半小別墅設計圖帶效果圖,農村自建帶閣樓一層半方案
占地:155平方米
135平三層農村樓房設計圖及效果圖,造價20萬左右
占地:135平方米
高端二層新中式四合院別墅設計圖,含全套CAD施工圖
占地:217平方米
帶地下室獨棟三層高端別墅房圖紙設計圖,復式客廳旋轉樓梯
占地:146.145平方米
面寬16米方正實用二層別墅設計圖,中式風格不輸村里的別墅洋房
占地:182.82平方米
三層新農村自建房屋設計圖紙,占地120平米左右
占地:120平方米
時尚一層別墅圖,一層這樣蓋房最漂亮
占地:160平方米
外觀看起來高端、奢華的二層小別墅設計圖,推薦
占地:130平方米
農村120方三層自建房子圖,好看又不貴的三層農村別墅
占地:120平方米
簡歐漂亮農村二層別墅設計方案圖紙,12米乘9米
占地:多戶型可選
經典小戶型雙拼二層新農村房屋住宅設計圖,含效果圖
占地:80平方米
超大氣的農村一層雙拼自建別墅設計方案,絕對讓人羨慕的“平房
占地:424平方米
170平米自建三層房屋別墅設計圖紙及效果圖
占地:170平米
140-150平方米新農村別墅設計圖紙,帶外觀效果圖,復式戶型
占地:146平方米
新農村自建三層復式結構房屋別墅設計圖紙及效果圖
占地:138平方米
135平復式別墅房屋設計圖,外觀時尚、漂亮
占地:135平方米
推薦:10套新農村自建房設計圖,2026年最新設計
閱讀次數:4825737次
100套鄉村別墅圖片大全,2026年最新設計
閱讀次數:2492203次
6款農村蓋一層平房的設計圖,10萬元就能建起來
閱讀次數:1852637次
這11個一層農村自建房別墅火爆了朋友圈!我最喜歡戶型十!你呢
閱讀次數:750268次
農村6萬元建一層小別墅圖,你敢相信嗎
閱讀次數:567686次
農村5萬塊就能自建房,6套普通房子設計圖分享,你沒看錯!
閱讀次數:419410次
8套農村漂亮三間平房圖片,非常適合在農村修建!
閱讀次數:411197次
農村自建房化糞池怎么做?附方案及施工過程
閱讀次數:391783次
農村一層三間平房設計圖,告別土氣養老房,讓人忍不住點贊
閱讀次數:350581次
新農村二層樓房圖片造價12萬,挑一套回家建房吧!
閱讀次數:349126次
