
|
一套房子就是一個家,我們要在里邊居住幾十年,所以我們建房前不僅要考慮現在的需求,還要考慮這些時間因素。希望大家在住了幾十年之后,仍然覺得自家的房子溫馨舒適、美觀大氣。今天給大家帶來4套大戶型的農村三層別墅,經典設計永不過時,滿足你一輩子的需求! 第一套
正面效果圖
鳥瞰效果圖
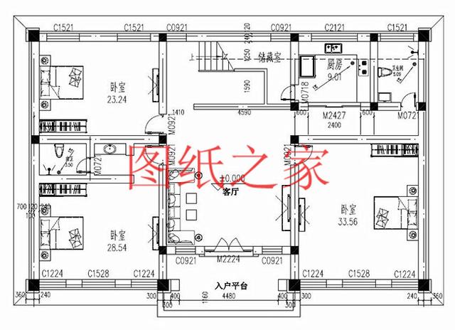
背面效果圖 占地面積:13.0m*13.0m,一層占地180平方米左右; 建筑層高:三層; 建筑高度:12.9米(含屋頂); 設計功能: 一 層:客廳、休息廳、廚房、餐廳、娛樂室、雜物間、衛生間; 二 層:客廳上空、臥室(帶衛生間)×2、臥室、衣帽間、書房、衛生間、露臺、陽臺; 三 層:休息區、臥室(衛生間)、臥室、健身房、衛生間、水箱間;
一層平面圖
二層平面圖
三層平面圖 第二套
正面效果圖
鳥瞰效果圖
背面效果圖 占地面積:13.2m*15.3m,201平方米左右; 建筑層高:三層; 建筑高度:12.51米(含屋頂); 設計功能: 一 層:前廳、客廳、老人房、臥室、儲藏室x2、廚房、餐廳、衛生間、倉庫 二 層:小廳、棋牌室、主臥x2、衣帽間、臥室x2、衛生間、陽臺 三 層:休閑廳、書房、臥室x2、衛生間、娛樂室、露臺
一層平面圖
二層平面圖
三層平面圖 第三套
別墅效果圖 占地面積:14.1m*12.9m,180平方米左右; 建筑層高:三層; 建筑高度:12.5米(含屋頂); 設計功能: 一 層:門廳、客廳、餐廳、廚房、老人房(主臥)、衛生間、棋牌室(次臥); 二 層:起居室(小客廳)、主臥(帶衣帽間、衛生間)、臥室x2、衛生間; 三 層:起居室(客廳)、主臥(帶衣帽間、帶衛生間)、書房、大露臺;
一層平面圖
二層平面圖
三層平面圖 第四套
別墅效果圖 占地面積:17.7m*11.3m,200平方米左右 建筑層高:三層; 建筑高度:12.60米(含屋頂); 設計功能: 戶型設計: 一 層:客廳(兼餐廳)、主臥(帶衛生間)、臥室x2、廚房、衛生間、儲藏間; 二 層:客廳、主臥套間(帶衛生間和書房)、臥室x2、衛生間、陽臺x3; 三 層:影音娛樂廳(健身房)、客房x2、儲藏間、衛生間、大露臺x2、陽臺;
一層平面圖
二層平面圖
三層平面圖 這幾套別墅的設計圖,你最喜歡哪一套? 圖紙之家-專注農村別墅/自建房設計18年,集合國內200余位經驗豐富的設計師,被評為口碑最好的農村建筑設計公司! |

實用型二層別墅設計方案,占地120平米簡單大方最耐看
占地:120平方米
農村一層房屋設計圖,自建一層房子圖紙推薦
占地:200平方米
新中式風格農村自建房二層設計圖,15.5米乘12米
占地:186平方米
160平方米歐式一層半別墅施工設計圖紙13X13米
占地:160平方米
歐式新農村自建三層建筑施工設計圖紙及效果圖大全
占地:106平方米
新農村自建20萬二層小樓外觀圖及戶型圖,簡單大方,漂亮接地氣
占地:130平方米
自建一層農村別墅圖,經濟實用新選擇,建房必備參考戶型!
占地:142.88平方米
鄉下復式三層房子設計圖,帶堂屋,客廳中空,輕奢風格
占地:190平方米
農村四層復式房屋設計圖紙,占地105平方米預算35萬左右
占地:105平方米
一層新中式三合院設計,建好城里大平層都不香了
占地:294.12平方米
帶地下室三層復式別墅設計方案,全套設計圖+效果圖
占地:168平方米
農村120平米兩層樓的房子設計圖,外觀新穎
占地:120平方米
農村四層樓房設計圖,含外觀圖片,自建四層房屋推薦
占地:140平方米
二層農村小別墅設計圖,造價經濟實惠,參考價30萬以內
占地:140平方米
新農村中式二層樓房設計圖紙及效果圖,125,150,170三個戶型可行
占地:多種戶型
農村三層雙拼別墅設計圖,兄弟建房開間20米,單戶80平方
占地:160平方米
廚房餐廳在配房的歐式三層農村別墅設計方案,華麗又宜居
占地:177.58平方米
經濟實用二層樓房設計圖紙,功能布局多,12×11米
占地:130平方米
復式客廳挑空三層別墅設計圖,帶外觀效果圖片,推薦
占地:150平方米
二層小型簡單四合院設計圖,戶型方正,左右對稱,傳統文化的傳
占地:470平方米
推薦:10套新農村自建房設計圖,2026年最新設計
閱讀次數:4825737次
100套鄉村別墅圖片大全,2026年最新設計
閱讀次數:2492203次
6款農村蓋一層平房的設計圖,10萬元就能建起來
閱讀次數:1852637次
這11個一層農村自建房別墅火爆了朋友圈!我最喜歡戶型十!你呢
閱讀次數:750268次
農村6萬元建一層小別墅圖,你敢相信嗎
閱讀次數:567686次
農村5萬塊就能自建房,6套普通房子設計圖分享,你沒看錯!
閱讀次數:419410次
8套農村漂亮三間平房圖片,非常適合在農村修建!
閱讀次數:411197次
農村自建房化糞池怎么做?附方案及施工過程
閱讀次數:391783次
農村一層三間平房設計圖,告別土氣養老房,讓人忍不住點贊
閱讀次數:350581次
新農村二層樓房圖片造價12萬,挑一套回家建房吧!
閱讀次數:349126次
