
|
現在的農村自建房是越來越火熱了,不光家里有宅基地的人想著回去建房,那些沒有宅基地的人也想方設法的要建房。但是現在對于宅基地的審批管理是越來越嚴格,宅基地越來越小,大家也不能隨心所欲的建房了。今天給大家介紹3套120平米的三層別墅,外觀美觀大氣、布局簡單實用,建成之后肯定有面子。 第一套
正面效果圖
鳥瞰效果圖 占地面積:12.00m*10.00m,120平方米左右; 建筑層高:三層; 建筑高度:12.29米(含屋頂); 設計功能: 一層戶型設計:客廳、餐廳、廚房、衛生間、主臥、臥室; 二層戶型設計:客廳、休閑區、主臥、臥室x2、衛生間、書房; 三層戶型設計:主臥、臥室、娛樂室、衛生間、露臺;
一層平面圖
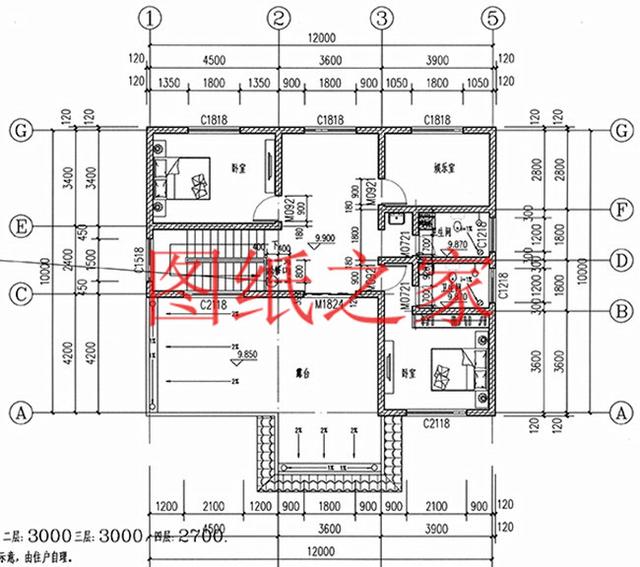
二層平面圖
三層平面圖 第二套
別墅效果圖 占地面積:11.40m*11.0m,122平方米左右; 建筑層高:三層; 建筑高度:12.57米(含屋頂); 設計功能: 一層戶型設計:門廳、客廳、廚房、餐廳、衛生間、臥室、儲藏間、車庫; 二層戶型設計:小客廳、主臥(帶衛生間)、臥室、書房、衛生間、衣帽間; 三層戶型設計:活動房、書房、衛生間、臥室、露臺(屋頂花園);
一層平面圖
二層平面圖
三層平面圖 第三套
正面效果圖
背面效果圖 占地面積:10.76m*11.76m,125平方米左右; 建筑層高:二層半; 建筑高度:10.30米(含屋頂); 設計功能: 一層戶型設計:客廳、廚房、餐廳、臥室、衛生間、儲藏間(樓梯下面)、后門門廳; 二層戶型設計:客廳上空、過道、休息廳、臥室x2、衛生間; 三層戶型設計:健身、露臺;
一層平面圖
二層平面圖
三層平面圖 這幾套別墅的設計圖,你最喜歡哪一套? 圖紙之家-專注農村別墅/自建房設計18年,集合國內200余位經驗豐富的設計師,被評為口碑最好的農村建筑設計公司! |

建一棟就成了村里的門面擔當!三層歐式別墅,左右對稱太氣派
占地:173.67平方米
240平方米新農村漂亮的兄弟雙拼別墅設計圖紙,單戶120平
占地:239平方米
農村二層中式小三合院別墅全套設計圖,民族特色風格
占地:122平方米
豪華別墅設計圖紙(含效果圖),三層歐式別墅方案精選
占地:117平方米
90平米三層農村房子設計圖,簡單大氣實用
占地:94.28平方米
農村一層自建房子設計圖紙及效果圖,戶型方正
占地:多戶型可選
帶地下室二層雙拼別墅設計圖,兄弟和睦又省錢,全家人都滿意!
占地:308平方米
簡約現代的二層別墅自建房設計圖,13米乘9米
占地:124平方米
面寬8米也能建別墅,小面寬農村三層別墅設計圖
占地:93.83平方米
旋轉樓梯挑空獨棟二層簡歐小別墅設計圖,大氣時尚
占地:189.26平方米
110平左右農村復式二層小樓設計圖,外觀非常受歡迎
占地:112平方米
三層歐式豪華別墅設計方案,全套圖紙+效果圖
占地:168平方米
農村二層住宅別墅設計圖,貼心實用,12.8米乘14.5米
占地:156.16平方米
2026新款農村四層別墅設計圖紙戶型圖,帶挑空客廳
占地:150平方米
鄉村二層別墅設計圖,含外觀效果圖,設計師推薦
占地:140平方米
120平農村三層房屋設計圖,含外觀圖片
占地:120平方米
新中式農村自建三層別墅房屋施工,12x10米簡潔雅致
占地:121.77平方米
農村一層平房設計圖及效果圖,一層房屋設計方案推薦
占地:270平方米
小占地二層徽派別墅設計圖,白墻黛瓦韻味十足,太氣派了
占地:89.6平方米
農村25萬元二層小樓圖,經典大氣建成20年不過時
占地:150平方米
推薦:10套新農村自建房設計圖,2026年最新設計
閱讀次數:4825737次
100套鄉村別墅圖片大全,2026年最新設計
閱讀次數:2492203次
6款農村蓋一層平房的設計圖,10萬元就能建起來
閱讀次數:1852637次
這11個一層農村自建房別墅火爆了朋友圈!我最喜歡戶型十!你呢
閱讀次數:750268次
農村6萬元建一層小別墅圖,你敢相信嗎
閱讀次數:567686次
農村5萬塊就能自建房,6套普通房子設計圖分享,你沒看錯!
閱讀次數:419410次
8套農村漂亮三間平房圖片,非常適合在農村修建!
閱讀次數:411197次
農村自建房化糞池怎么做?附方案及施工過程
閱讀次數:391783次
農村一層三間平房設計圖,告別土氣養老房,讓人忍不住點贊
閱讀次數:350581次
新農村二層樓房圖片造價12萬,挑一套回家建房吧!
閱讀次數:349126次
